Kerrostalo
Joukamontie 1, Kuusamo, Keskusta
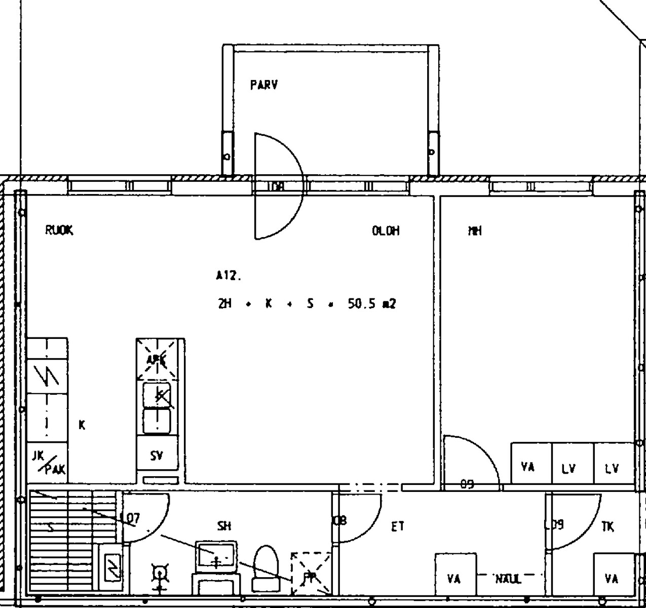
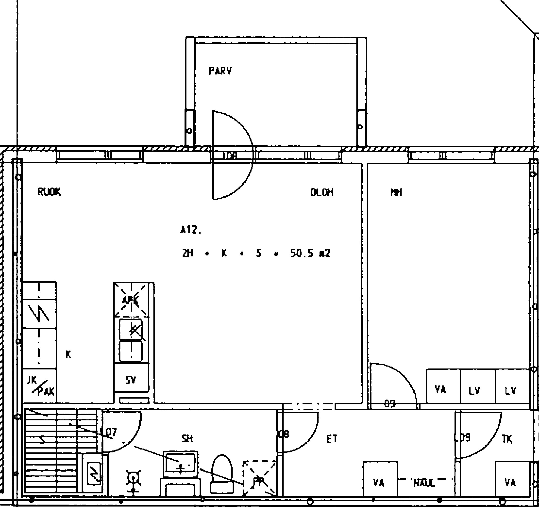
2 h+k+s, 50,50 m²
58 000 €
Myytävänä saunallinen kaksio aktiiviselle kaupunkilaiselle Kuusamon sydämessä.
Tämä kaksio sijaitsee Kuusamon ydinkeskustassa, aivan Torikeskuksen ja torin läheisyydessä. Asunnon 50,50 m² pitävät sisällään tilavan makuuhuoneen, jossa on runsaasti kaappitilaa ja avaran olohuoneen, josta kulku lasitetulle parvekkeelle, hyvä lisätila joka tarjoaa mahdollisuudet nauttia ulkoilmasta myös huonommalla säällä. Lisäksi kylpyhuone ja oma sauna, joka on monen suomalaisen kodin sydän.
Taloyhtiössä on tehty kattoremontti vuonna 2021.
Tämä koti on heti vapaa.
Ota yhteyttä, sovi esittelyaika ja tule tutustumaan!

Esittely
Kohteen seuraavaa esittelyajankohtaa ei ole tiedossa
Perustiedot
1394345
20094750
Kuusamo, Keskusta
Joukamontie 1
93600 Kuusamo
Joukamontie 1
93600 Kuusamo
Kerrostalo
Ei
Omistusasunto
2h+k+s
2
50,50 m²
50,50 m²
Yhtiöjärjestyksen mukainen, isännöitsijäntodistuksen mukainen
2/2
1990
1990
Heti
Hinta ja kustannukset
58 000 €
46 192,82 €
11 807,18 €
1 148,51 € / m²
Laskettu velattomasta myyntihinnasta.
Laskettu velattomasta myyntihinnasta.
423,95 € / kk
Hoitovastike 297,95 € / kk
Rahoitusvastike 126 € / kk
Hoitovastike 297,95 € / kk
Rahoitusvastike 126 € / kk
25 € henkilöluvun mukaan
Lisätiedot
Lasitettu, ulostyönnetty
Asunnossa on sauna
Sähkökiuas
Sähkökiuas
Hyvä
Ei tiedossa
Kaukolämpö, muu, koneellinen poisto
Kaapeli-tv
Asunnon tilat ja materiaalit
Pääasiallinen rakennusmateriaali: Puu
Varusteet: liesituuletin, mikroaaltouuni, astianpesukone
Seinien pintamateriaali: maalattu, osalaatoitus
Lattian pintamateriaali: laminaatti
Keittiön tasot: laminaatti, metalli
Liesi: sähköliesi
Seinien pintamateriaali: maalattu, osalaatoitus
Lattian pintamateriaali: laminaatti
Keittiön tasot: laminaatti, metalli
Liesi: sähköliesi
Seinien pintamateriaali: maalattu
Lattian pintamateriaali: laminaatti
Lattian pintamateriaali: laminaatti
Seinien pintamateriaali: maalattu
Lattian pintamateriaali: laminaatti
Makuuhuoneiden määrä: 1
Lattian pintamateriaali: laminaatti
Makuuhuoneiden määrä: 1
Varusteet: pesukoneliitäntä, wc-istuin, suihku, peilikaappi
Seinien pintamateriaali: kaakeli
Lattian pintamateriaali: muovi
Seinien pintamateriaali: kaakeli
Lattian pintamateriaali: muovi
Eteinen, tuulikaappi
Varusteet: sälekaihtimet/rullaverhot, verhotangot
Varusteet: sälekaihtimet/rullaverhot, verhotangot
Katto: Harjakatto
Katon pintamateriaali: Huopakate
Katon pintamateriaali: Huopakate
Taloyhtiö
As Oy Kuusamon Joukamonkulma
Urheiluvälinevarasto
12
2024 Asuinhuoneistojen kylpyhuoneiden kosteuskartoitus, peruskuntoarvio, kellarin/A4 asunnon vesivuotovahingon korjaus
2022 Autopaikan lisääminen pihalle
2021 Pihavalaistuksen uusiminen, vesikatteen uusiminen
2019 Kellarin vuotovahingon korjaus
2018 Kaukolämpöputken läpiviennin ja rännin korjaus, pihapuiden kaatoa
2017 Pihapuiden kaatoa
2016 Portin teko alakerran portaikon osalle 1 kerrokseen
2015 Ikkunoiden ulkopuolien huoltomaalaus ja ikkunatiivisteiden vaihto, ulko- ja parvekeovien säätö ja tiivisteiden uusiminen
2014 Lämmönvaihtimen uusiminen
2012 IV-kanavien puhdistus ja ilmamäärien säätötyö
2011 Kiinteistön peruskuntoarvio
2006 Parvekkeiden kaiteiden puuosat ja huoneistojen ulko-ovien ulkopuolet maalattu
2002 IV-kanavat puhdistettu
1997 Kattoa korjattu, tieto perustuu toimintakertomustietoihin
2022 Autopaikan lisääminen pihalle
2021 Pihavalaistuksen uusiminen, vesikatteen uusiminen
2019 Kellarin vuotovahingon korjaus
2018 Kaukolämpöputken läpiviennin ja rännin korjaus, pihapuiden kaatoa
2017 Pihapuiden kaatoa
2016 Portin teko alakerran portaikon osalle 1 kerrokseen
2015 Ikkunoiden ulkopuolien huoltomaalaus ja ikkunatiivisteiden vaihto, ulko- ja parvekeovien säätö ja tiivisteiden uusiminen
2014 Lämmönvaihtimen uusiminen
2012 IV-kanavien puhdistus ja ilmamäärien säätötyö
2011 Kiinteistön peruskuntoarvio
2006 Parvekkeiden kaiteiden puuosat ja huoneistojen ulko-ovien ulkopuolet maalattu
2002 IV-kanavat puhdistettu
1997 Kattoa korjattu, tieto perustuu toimintakertomustietoihin
2025:
Käyttövesiputkien uusimisen suunnittelu, palovaroittimet, pesuhuoneen lattiat ja seinät sekä saunojen saneeraus 2024 tehdyn märkätilakartoituksen mukaisesti, käyttövesiputkiston uusiminen
2026:
Huippuimureiden uusiminen, puisten julkisivupintojen huoltomaalaus, Iv-nuohous
2027:
Betonisten parvekeseinien huoltomaalaus, julkisivutiilipintojen puhdistus ja huoltomaalaus, roskakatoksen rakentaminen
2028:
Ikkunoiden huoltokierros (lukitukset, säädöt, tiivistykset, pintakäsittelyt),
2030:
Ulko-ovien uusiminen
Käyttövesiputkien uusimisen suunnittelu, palovaroittimet, pesuhuoneen lattiat ja seinät sekä saunojen saneeraus 2024 tehdyn märkätilakartoituksen mukaisesti, käyttövesiputkiston uusiminen
2026:
Huippuimureiden uusiminen, puisten julkisivupintojen huoltomaalaus, Iv-nuohous
2027:
Betonisten parvekeseinien huoltomaalaus, julkisivutiilipintojen puhdistus ja huoltomaalaus, roskakatoksen rakentaminen
2028:
Ikkunoiden huoltokierros (lukitukset, säädöt, tiivistykset, pintakäsittelyt),
2030:
Ulko-ovien uusiminen
NET Isännöinti Oy, Taloasema Kuusamo, Anuliina Sarajärvi, 045 166 7454, anuliina.sarajarvi@taloasema.fi
Huoltoyhtiö
Ruka911 Kiinteistöpalvelut Oy
Ruka911 Kiinteistöpalvelut Oy
D2018
Voimassa 08.01.2035
1 524 m²
Oma
Asemakaava
Muut lisätiedot
Autopaikat: 14
Taloyhtiön sisäpihalle










