Omakotitalo
Ajatonta arkkitehtuuria ja säväyttäviä yksityiskohtia tarjoava ydinkeskustan koti etsii uusia asukkaita. Muuttamaan pääset heti!
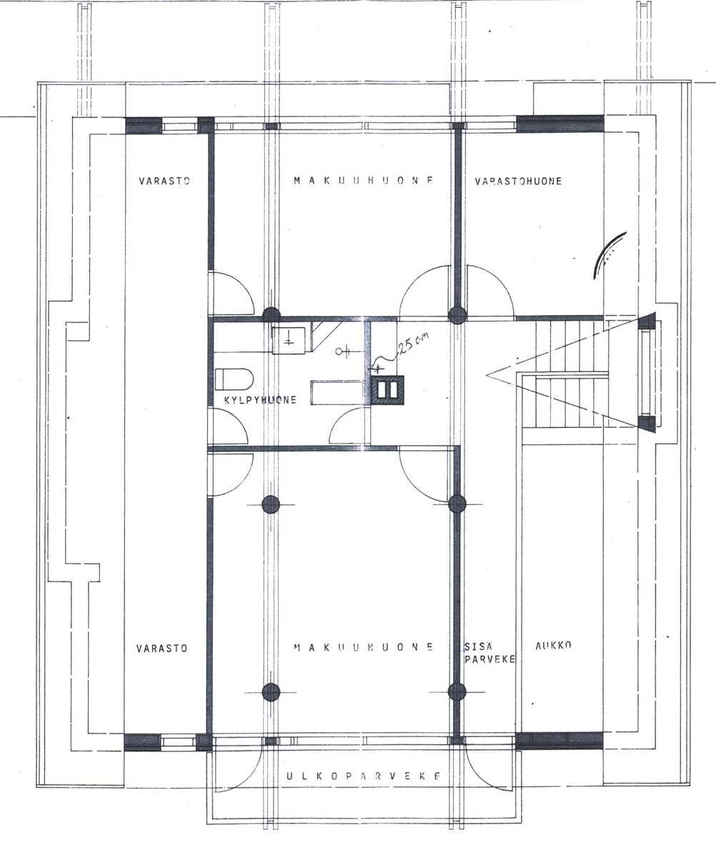
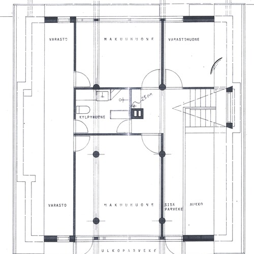
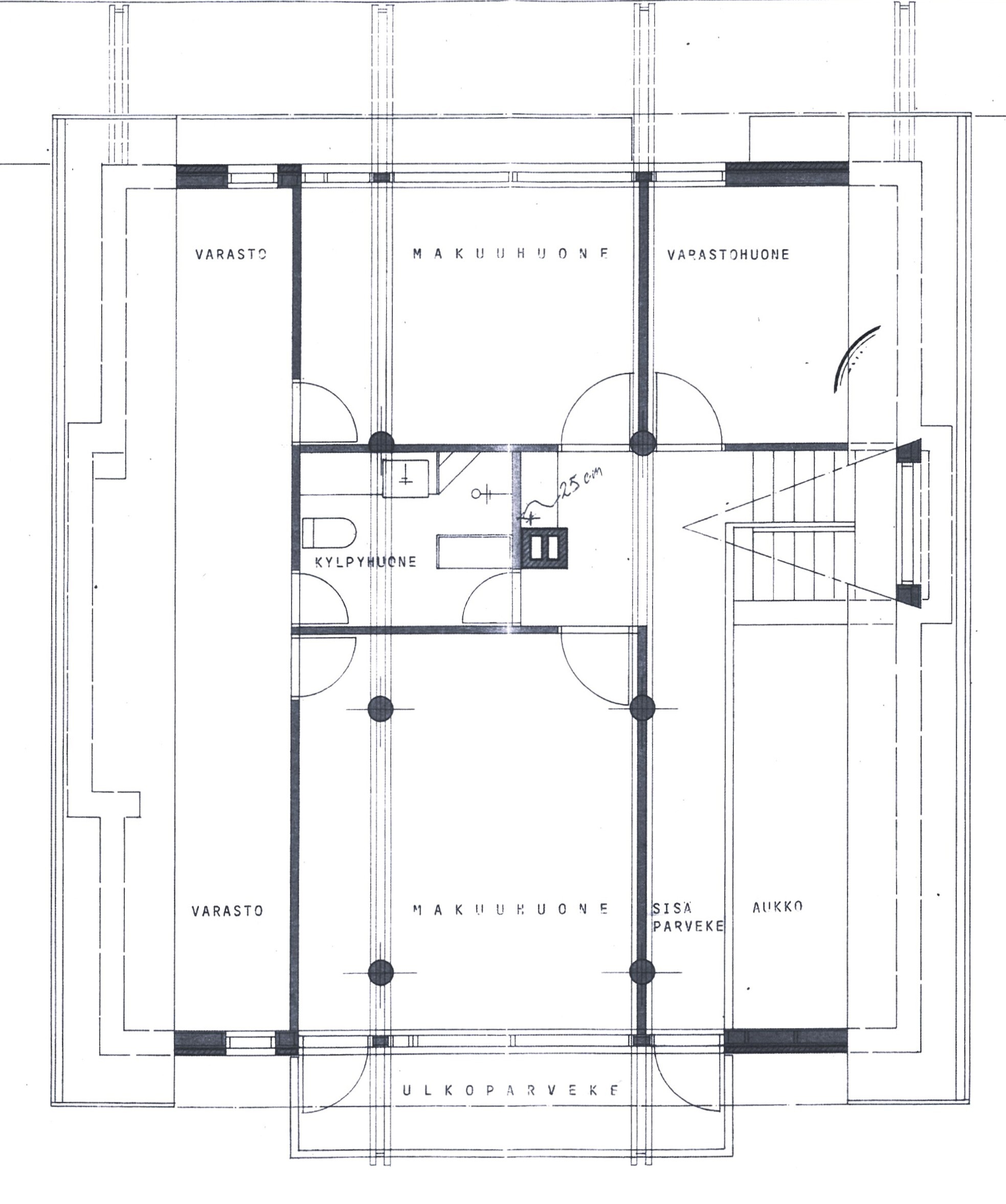
Arkkitehtitoimisto K. Petäjän piirtämä 1977 valmistunut kahden kerroksen omakotitalo mahdollistaa viihtyisän ja rauhallisen asumisen palveluiden äärellä. Kolme makuuhuonetta, 2 x wc/suihku, avarat oleskelutilat sekä suojaisa sisäpiha yhdistettynä autotalliin ja varastotiloihin luovat tästä kodista halutun vakituisen asunnon tai vaikkapa kakkoskodin lomanviettoon. Yksityiskohtina mainittakoon Oulangan kansallispuistosta hevoskyydillä kuljetetut kelopilarit, 70- luvulle tyypilliset mäntypaneelit, kattohirret ja avotakka. Lämminhenkisyyttä ja valoisuutta hehkuva koti täytyy kokea paikan päällä.
Tyylipuhtaasta klassikosta on pidetty hyvää huolta. Remontteja ja kunnostustöitä tehty säännöllisesti. Sähkölämmityskustannukset ovat maltilliset tämän kokoisessa talossa.
Aktiiviselle liikkujalle lähtee niin kuntopolut kuin hiihtoladutkin aivan kodin lähettyviltä. Alueella on useita päiväkoteja sekä kouluun pyöräilymatka. Lukio ja ammattiopisto vain 200 m etäisyydellä.
Kuntotarkastus ja energiatodistus tehty Suomen Rakennustarkastuksen toimesta. Raportti saatavilla!
Tervetuloa tutustumaan. Esittelemme yksityisnäytöin! 
Esittely
Perustiedot
Maaseläntie 19 as 2
93600 Kuusamo
Alakerran kerrosala 103 m² + yläkerta 68 m² + osittain matalaa tilaa (alle 1600 mm). Huoneistoala n. 150.
Autotalli 18 m² ja varasto 18 m².
Kauppahinta ei perustu neliöhintaan.
Hinta ja kustannukset
Laskettu velattomasta myyntihinnasta.
Lisätiedot
Sähkökiuas
Lämminvesivaraaja vaihdettu ja siirretty se yläkerrasta alakertaan kodinhoitohuoneeseen 2022.
Vaihdettu keittiön vesikaluste 2023.
Koneellinen poisto on asennettu 2002. Imuri on vaihdettu myös jäljemmin noin 2022.
Käyttövesiputkisto on uusittu 2002.
Savuhormit on nuohottu lokakuussa 2025.
Lämmönjakotapa: sähköpatterilämmitys, sähköinen lattialämmitys, sähköinen kattolämmitys
Lokakuussa 2025 asennettu myös uudet sähköpatterit yläkerran jokaiseen makuuhuoneeseen ja kaks sähköpatteriai alakerran olohuoneeseen
Kuusamon Energia- ja vesiosuuskunta.
Vesijohtoputkisto on terästä, komposiittia ja muovia suojaputkessa. Viemäriputkisto on muovia. Putkistojen materiaalista ei kaikkialta täyttä varmuutta
Kuusamon Energia- ja vesiosuuskunta
Painovoimainen ilmanvaihto, minkä lisäksi koneellinen poisto keittiöstä hormi) sekä huippuimurilla toimiva poisto kylpyhuoneesta, wc;stä, siivouskaapista sekä yläkerran kylpyhuoneesta
Asunnon tilat ja materiaalit
Pintamateriaalit: Laatta ja lattialämmitys.
Mäntyparketti, huonokuntoinen.
Seinien pintamateriaali: maalattu, osalaatoitus
Lattian pintamateriaali: laatta
Keittiön tasot: laminaatti, metalli
Liesi: keraaminen
Seinien pintamateriaali: maalattu, puu
Lattian pintamateriaali: parketti
Seinien pintamateriaali: maalattu, puu
Lattian pintamateriaali: parketti
Makuuhuoneiden määrä: 3
Seinien pintamateriaali: kaakeli
Lattian pintamateriaali: laatta
Varusteet: kylpyamme, suihku, bidee-suihku
Seinien pintamateriaali: maalattu, osalaatoitus
Lattian pintamateriaali: laatta
WC-tilojen määrä: 2
Lattian pintamateriaali: laatta
Yläkerrassa lämmintä ullakkotilaa (viistokatot).
Parveke on lasitettu ja sisältää kattolämmittimet.
Varusteet: kaapistot, sälekaihtimet/rullaverhot, verhotangot, naulakko, irralliset kaapit, kiinteät valaisimet, lämminvesivaraaja, jätesäiliö, istutukset
Katon pintamateriaali: Varttikate
Lastulevy/maalattu, paneeli/maalattu.
Katon kunto: Alkuperäinen kate
Asunnon tontti
Tontti on kuivaa tasamaata.
AO / s - 3. I u 2/3. e= 0,25.
Erillispientalojen korttelialue, jolla ympäristö säilytetään.
Laajennukset sekä uudet asuin- ja piharakennukset on rakennettava siten, että ne sijainnin, muodon, värityksen ja julkisivujen jäsentelyn osalta noudattavat alueella olevien rakennusten ominaispiirteitä. Pihapiirin tulee rakentua useammasta rakennuksesta. Pihapuita ei saa kaataa ilman pakottavaa syytä. Kaadettujen puiden tilalle tulee istuttaa uudet puuntaimet.
Kylmä varastotila 18 m² autotallin vieressä sekä erillinen pieni kylmä varastotila 4 m² sisäpihalla.
Muut lisätiedot
Päiväkodit: Maaseläntien päiväkodit n. 200 m etäisyydellä.
Muut palvelut: Kuusamon keskustan palvelut, kirjastot, urheilupalvelut kävelyetäisyydellä.
Hiihtoladulle ja SkiBus-pysäkille 400 m.

















































