Omakotitalo
Vuotungintie 312, Kuusamo, Vuotunki
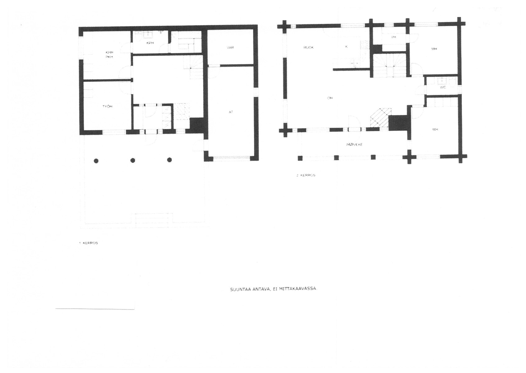
Alakerta: aula, mh/työh, khh, kph,s + yläkerta: oh, 2 mh, rt, k, wc + aitta 17 m² ja venevaja, 117 m²
159 000 €
Pohjois-Kuusamossa Kuntijoen varrella, Vuotunkijärven ja Kuntijärven läheisyydessä sijaitseva upea, piiluveistetystä pyöröhirrestä rakennettu omakotitalo, joka soveltuu loistavasti niin vakituiseen kuin vapaa-ajankäyttöön.
Rinnetalosta löytyy tunnelmalliset oleskelutilat, 3 makuuhuonetta sekä kaikki omakotitalon mukavuudet autotalleineen. Pihapiirissä myös aitta, venevaja ja grillikatos.
Oma, hiekkapohjainen uintilampi löytyy rannan tuntumasta. Kelkkareitistölle pääsee ihan lähiympäristöstä.
Ota yhteyttä, kerromme mielellämme lisää!
Tervetuloa paikan päälle tutustumaan ja ihastumaan!

Esittely
Kohteen seuraavaa esittelyajankohtaa ei ole tiedossa
Perustiedot
1301822
20539154
Kuusamo, Vuotunki
Vuotungintie 312
93600 Kuusamo
Vuotungintie 312
93600 Kuusamo
Omakotitalo
Ei
Omistusasunto
Alakerta: aula, mh/työh, khh, kph,s + yläkerta: oh, 2mh, rt, k, wc + aitta 17m² ja venevaja
117 m²
117 m²
Päärakennuksen kerrosala 174 m², huoneistoala 117 m², lisäksi parvitila. Aitan kerrosala 17 m²
2/2
1989
1989
Heti
Hinta ja kustannukset
159 000 €
159 000 €
1 358,97 € / m²
Laskettu velattomasta myyntihinnasta.
Laskettu velattomasta myyntihinnasta.
364,35 € / v
Lisätiedot
Asunnossa on sauna
Sähkökiuas
Sähkökiuas
Tyydyttävä
Ei tiedossa
D2018
Voimassa 5.9.2032
Sähkö
Lämmönjakotapa: sähköpatterilämmitys, sähköinen lattialämmitys, uuni/takka, ilmalämpöpumppu, muu, kosteissa tiloissa sekä alakerrassa osin lattialämmitys
Lämmönjakotapa: sähköpatterilämmitys, sähköinen lattialämmitys, uuni/takka, ilmalämpöpumppu, muu, kosteissa tiloissa sekä alakerrassa osin lattialämmitys
Antura ja kellarikerroksen harkkomuuratut seinät.
AP: maanvarainen teräsbetonilaatta
AP: maanvarainen teräsbetonilaatta
Vesiosuuskunta
Vuotungin vesiosuuskunta
Vuotungin vesiosuuskunta
Oma, pienpuhdistamo
Panospuhdistamo Jita Kemik, v. 2013 asennettu
Panospuhdistamo Jita Kemik, v. 2013 asennettu
Koneellinen tulo, koneellinen poisto, lämmön talteenotto
Antenni
Muu verkkoyhteys
Asunnon tilat ja materiaalit
Pääasiallinen rakennusmateriaali: Kivi, muu, hirsi
Varusteet: liesituuletin, astianpesukone
Seinien pintamateriaali: puu, osalaatoitus
Lattian pintamateriaali: lauta
Keittiön tasot: laminaatti
Liesi: sähköliesi
Seinien pintamateriaali: puu, osalaatoitus
Lattian pintamateriaali: lauta
Keittiön tasot: laminaatti
Liesi: sähköliesi
Seinien pintamateriaali: puu
Lattian pintamateriaali: lauta
Lattian pintamateriaali: lauta
Seinien pintamateriaali: puu
Lattian pintamateriaali: lauta
Makuuhuoneiden määrä: 3
Lattian pintamateriaali: lauta
Makuuhuoneiden määrä: 3
Varusteet: lattialämmitys, wc-istuin, suihku, kiinteät valaisimet
Seinien pintamateriaali: kaakeli
Lattian pintamateriaali: laatta
Seinien pintamateriaali: kaakeli
Lattian pintamateriaali: laatta
Pesuhuoneen yhteydessä toinen wc-istuin
Seinien pintamateriaali: kaakeli, osalaatoitus
Lattian pintamateriaali: laatta
WC-tilojen määrä: 2
Seinien pintamateriaali: kaakeli, osalaatoitus
Lattian pintamateriaali: laatta
WC-tilojen määrä: 2
Varusteet: pesukoneliitäntä, lattialämmitys, pöytätaso, keskuspölynimuri
Seinien pintamateriaali: puu
Lattian pintamateriaali: laatta
Seinien pintamateriaali: puu
Lattian pintamateriaali: laatta
Eteinen, aula, terassi, parvi
Tilavalla parvella leikkimis- ja pelailutilaa.
Varusteet: verhotangot, naulakko, keskuspölynimuri, kiinteät valaisimet, lämminvesivaraaja, ilmalämpöpumppu
Tilavalla parvella leikkimis- ja pelailutilaa.
Varusteet: verhotangot, naulakko, keskuspölynimuri, kiinteät valaisimet, lämminvesivaraaja, ilmalämpöpumppu
Katto: Harja
Katon pintamateriaali: Vartti
Katon kunto: Uusiminen ajankohtaista lähitulevaisuudessa
Katon pintamateriaali: Vartti
Katon kunto: Uusiminen ajankohtaista lähitulevaisuudessa
Asunnon tontti
305-423-65-3
Siniranta
2 900 m²
Rinnetontti
Kuntijokeen rajoittuva tontti
Oma
Oma ranta, omaa rantaviivaa, oikeus vesialueisiin
Joki
Kuntijoesta vesiyhteys Kuntijärveen ja Vuotunkijärveen
Kuntijoesta vesiyhteys Kuntijärveen ja Vuotunkijärveen
Yleiskaava
Lisärakentaminen poikkeamisella (Kuusamon kaupunki, rakennusvalvonta)
Lisärakentaminen poikkeamisella (Kuusamon kaupunki, rakennusvalvonta)
Höylähirsinen aitta valmistunut 1988. Aitassa nukkumis-/varastotilaa sekä puuliiteri. Rannassa kunnostettava venevaja. Lisäksi pihapiirissä on vanha, muualta siirretty historiallinen aittarakennus.
Kyllä
Muut lisätiedot
Vesiliittymä






























