Skip to main content

Mökki tai huvila

Topinranta 6, Rukatunturi Ruka, Ruka Rukatunturi
Huvila, autotalli /katos/varasto sekä rakennusoikeus 4 mh, k, oh, työh, 3 wc, khh, kph, s, 164 m²
745 000 €
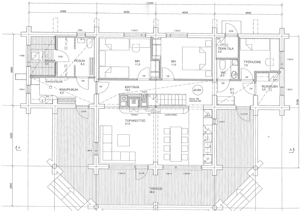
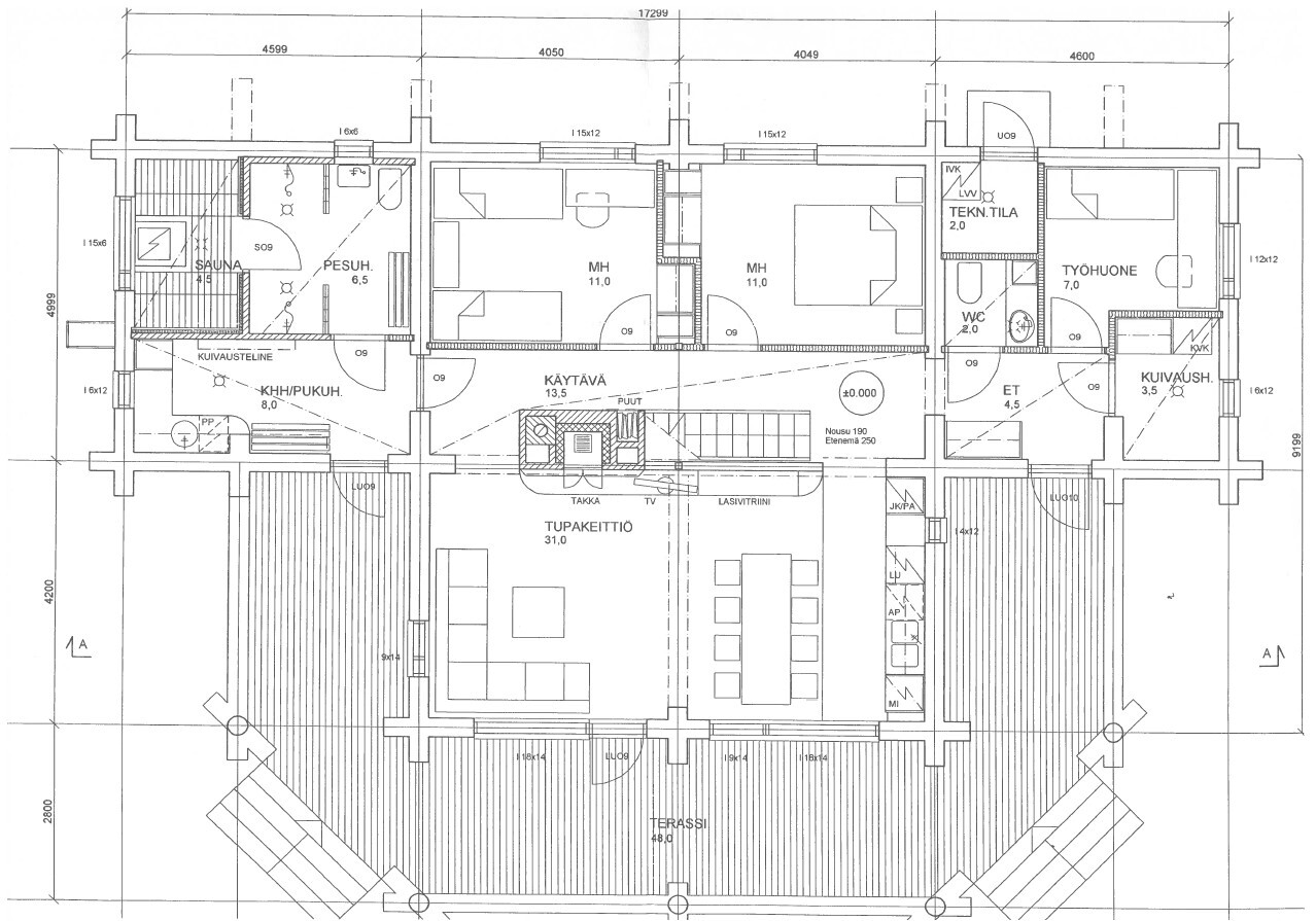
  • Pohjakuva alakerta
    Pohjakuva alakerta
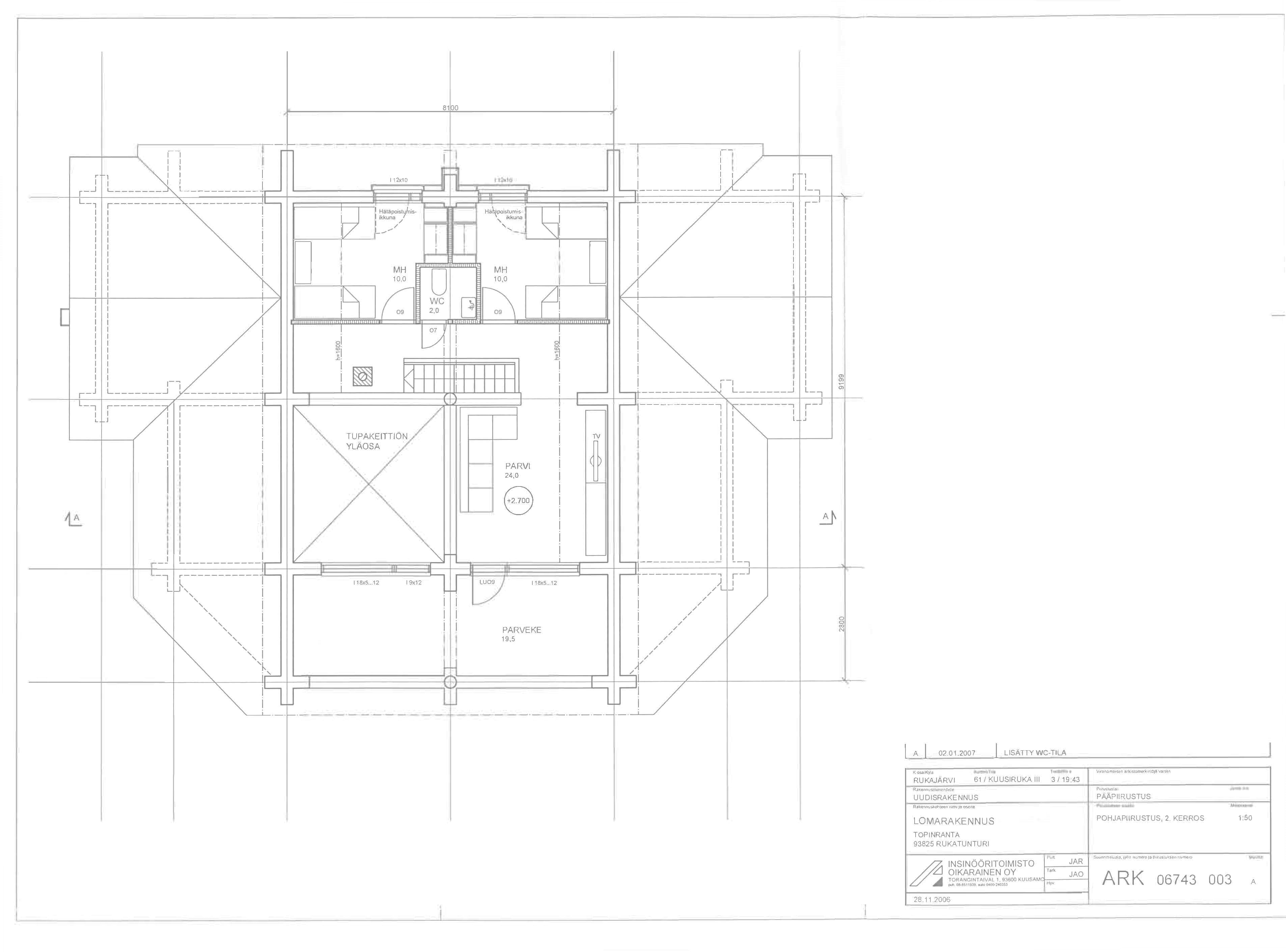
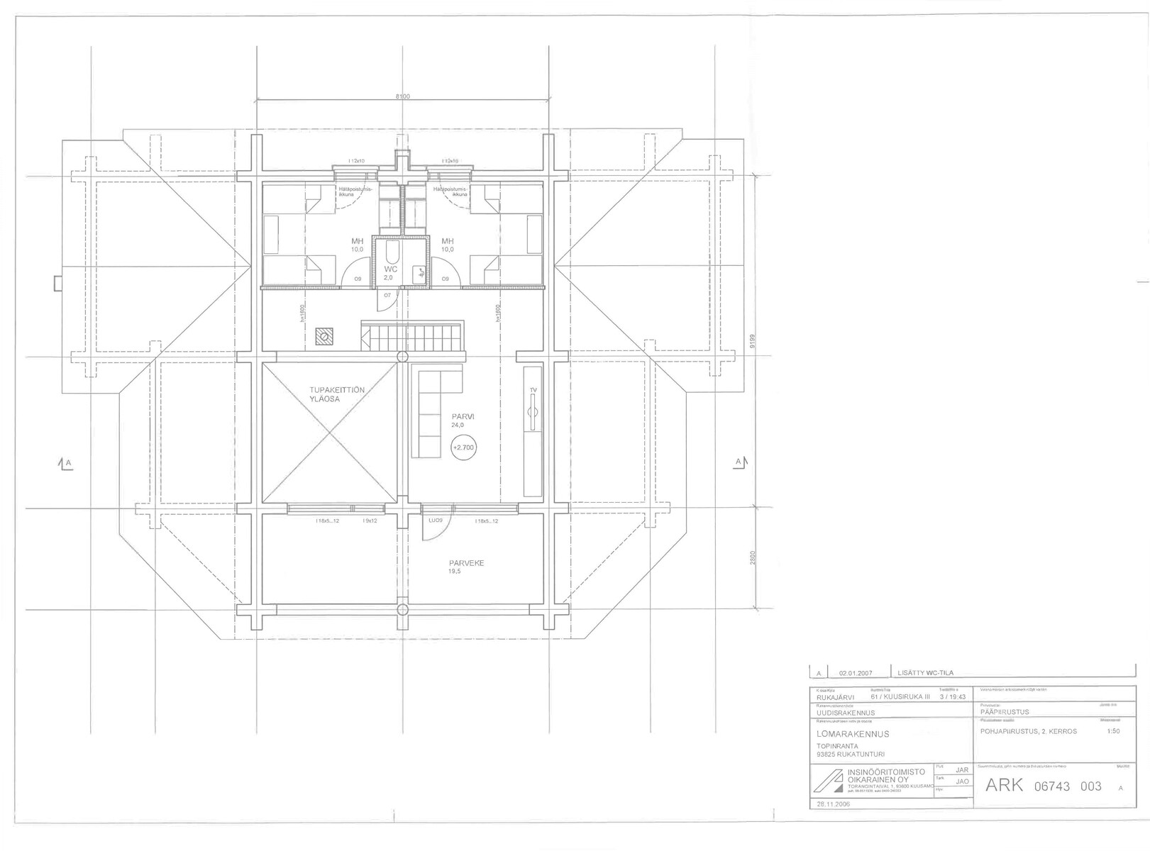
  • Pohjakuva yläkerta
    Pohjakuva yläkerta
  • Pohjakuva alakerta
  • Pohjakuva yläkerta

Tervetuloa tutustumaan tähän upeaan kelohuvilaan, joka tarjoaa ainutlaatuisen yhdistelmän Rukan hiihtokeskuksen lumoavaa tunnelmaa ja upean luonnon rauhaa. Tämä lomakoti on tilaisuus omistaa paikka, jossa voit nauttia vuodenajasta riippumatta sekä aktiivisista hiihtolomista että rentouttavista kesäpäivistä.

Huvila sijaitsee arvostetulla Kesäjärven alueella isolla rauhallisella tontilla puiden katveessa kätevästi aivan Rukan hiihtokeskuksen tuntumassa, mikä tarkoittaa, että mahtavat rinteet ja monipuoliset hiihtomahdollisuudet ovat käden ulottuvilla. Voit sukeltaa suoraan talvisen lumimaiseman keskelle ja nauttia rinteiden tarjoamista haasteista tai nauttia hiihtoladuista, jotka vievät sinut lumisen metsän siimekseen. Kesäisin voit taas lähteä patikoimaan, pyöräilemään tai vaikka kalastamaan Kesäjärvelle omasta rannastasi. Topinranta 6 on umpitien päässä ja takaa rauhan ja yksityisyyden.

Tämän lomakodin huolellisesti suunnitellut tilat huokuvat kodikkuutta ja tyylikkyyttä. Avarat oleskelualueet tarjoavat tilaa ystävien ja perheen yhteisille hetkille, kun taas viihtyisät makuuhuoneet tarjoavat rauhallisen paikan rentoutumiseen päivän seikkailujen jälkeen.
Rakennusmateriaalit ovat tarkoin valittuja ja laadukkaita. Lomahuvila myydään täysin kalustettuna. Huonekalut, tekstiilit ja kodinkoneet sisältyvät kauppaan.

Mikäli haluat lisärakentaa alueelle on käytössäsi käyttämättömän 180 k-m² rakennusoikeuden ansiosta reilusti mahdollisuuksia. Voit toteuttaa omia unelmiasi ja suunnitella huvilan ympärille juuri sellaisen ympäristön kuin haluat.

Tervetuloa tutustumaan tähän ainutlaatuiseen lomahuvilaan ja löytämään oman paikkasi rentoutumisen ja ilon keskeltä. Ota yhteyttä ja varaa oma esittelyaikasi – tämä voisi olla juuri se lomakoti, jota olet aina haaveillut! Esittelemme yksityisnäytöin.

Welcome to explore this magnificent log cabin that offers a unique blend of Ruka Ski Resort's enchanting ambiance and the serene beauty of nature. This vacation home presents an opportunity to own a place where you can enjoy every season, whether it's active ski holidays or relaxing summer days.

Nestled in the prestigious Kesäjärvi area, the cabin is conveniently located near Ruka Ski Resort, granting you easy access to the magnificent slopes and diverse skiing opportunities. You can immerse yourself directly into a winter wonderland and relish the challenges of the slopes, or enjoy the ski trails that take you through the snowy forest. In the summer, you can embark on hikes, bike rides, or even indulge in fishing on Kesäjärvi from your very own shoreline.

Carefully designed, the interior spaces of this vacation home exude coziness and elegance. Spacious living areas provide ample room for shared moments with friends and family, while the inviting bedrooms offer a peaceful retreat after a day of adventures. The choice of building materials is meticulous and of high quality. The vacation villa is sold fully furnished, with furniture, textiles, and appliances all included.

Should you wish to expand, the property offers unused building rights of 180 m², providing ample opportunities for your dreams to come to life. You can design the surroundings of the villa exactly as you desire.

Welcome to explore this exceptional vacation cabin and discover your own haven of relaxation and joy. Get in touch and schedule your private viewing – this could be the holiday home you've always envisioned! Private showings are available upon request.

Esittely

Kohteen seuraavaa esittelyajankohtaa ei ole tiedossa

Perustiedot

1084424
20620915
Rukatunturi Ruka, Ruka Rukatunturi
Topinranta 6
93825 Rukatunturi Ruka
Mökki tai huvila
Ei
Omistusasunto
Huvila, autotalli /katos/varasto sekä rakennusoikeus 4mh, k, oh, työh, 3 wc, khh, kph, s
164 m²
52 m²
216 m²
Pinta-ala ilmoitettu kerrosalana:
Lomarakennus 164 m²
Piharakennus 44 m² + 8 m² kylmävarasto
1/2
2007
2007
Sopimuksen mukaan

Hinta ja kustannukset

745 000 €
745 000 €
4 542,68 € / m²
Laskettu velattomasta myyntihinnasta.
1 200 € / v

Lisätiedot

Asunnossa on sauna

SähkökiuasSaunasta kulku ulos vilvoittelemaan/uimaan suoraan kodinhoitohuoneen kautta.
Hyvä
Normaalia vuosittaista huolto ja kunnossapitoa.
Kohteelle ei lain mukaan tarvita energiatodistusta.
Sähkö
Lämmönjakotapa: sähköpatterilämmitys, sähköinen lattialämmitys
Kunnan
Kuusamon energia ja vesiosuuskunnan vesi- ja viemäriverkko
Kunnan
Kuusamon energia ja vesiosuuskunnan vesi- ja viemäriverkko
Koneellinen tulo, koneellinen poisto
Antenni

Asunnon tilat ja materiaalit

Pääasiallinen rakennusmateriaali: Hirsi
Kodinkoneet laadukkaat Mielen valmistamat. Kodinkoneet integroitu.
Varusteet: mikroaaltouuni, astianpesukone, liesituuletin / hormi
Seinien pintamateriaali: puu
Lattian pintamateriaali: laatta
Keittiön tasot: kivi
Liesi: integroitu, erillisuuni
Seinien pintamateriaali: puu
Lattian pintamateriaali: lauta
Seinien pintamateriaali: puu
Lattian pintamateriaali: lauta
Varusteet: lattialämmitys, wc-istuin, suihku
Seinien pintamateriaali: kaakeli, puu
Lattian pintamateriaali: laatta
Ala- sekä yläkerrassa omat erilliset WC tilat.
Varusteet: lattialämmitys, lattiakaivo, peilikaappi, bidee-suihku
Seinien pintamateriaali: kaakeli, puu
Lattian pintamateriaali: laatta
WC-tilojen määrä: 3
Varusteet: pesukoneliitäntä, pesuallas, lattiakaivo
Seinien pintamateriaali: kaakeli, puu
Lattian pintamateriaali: laatta
Työhuone, eteinen, aula
Eteinen ja käytävät laatoitettu sekä seinät tuppeensahattua kelolautaa.
Varusteet: sälekaihtimet/rullaverhot, kiinteät valaisimet, lämminvesivaraaja, kuivauskaappi/-rumpu
Katto: Harjakatto
Katon pintamateriaali: Huopakate
Katon kunto: Hyvä

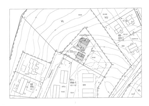
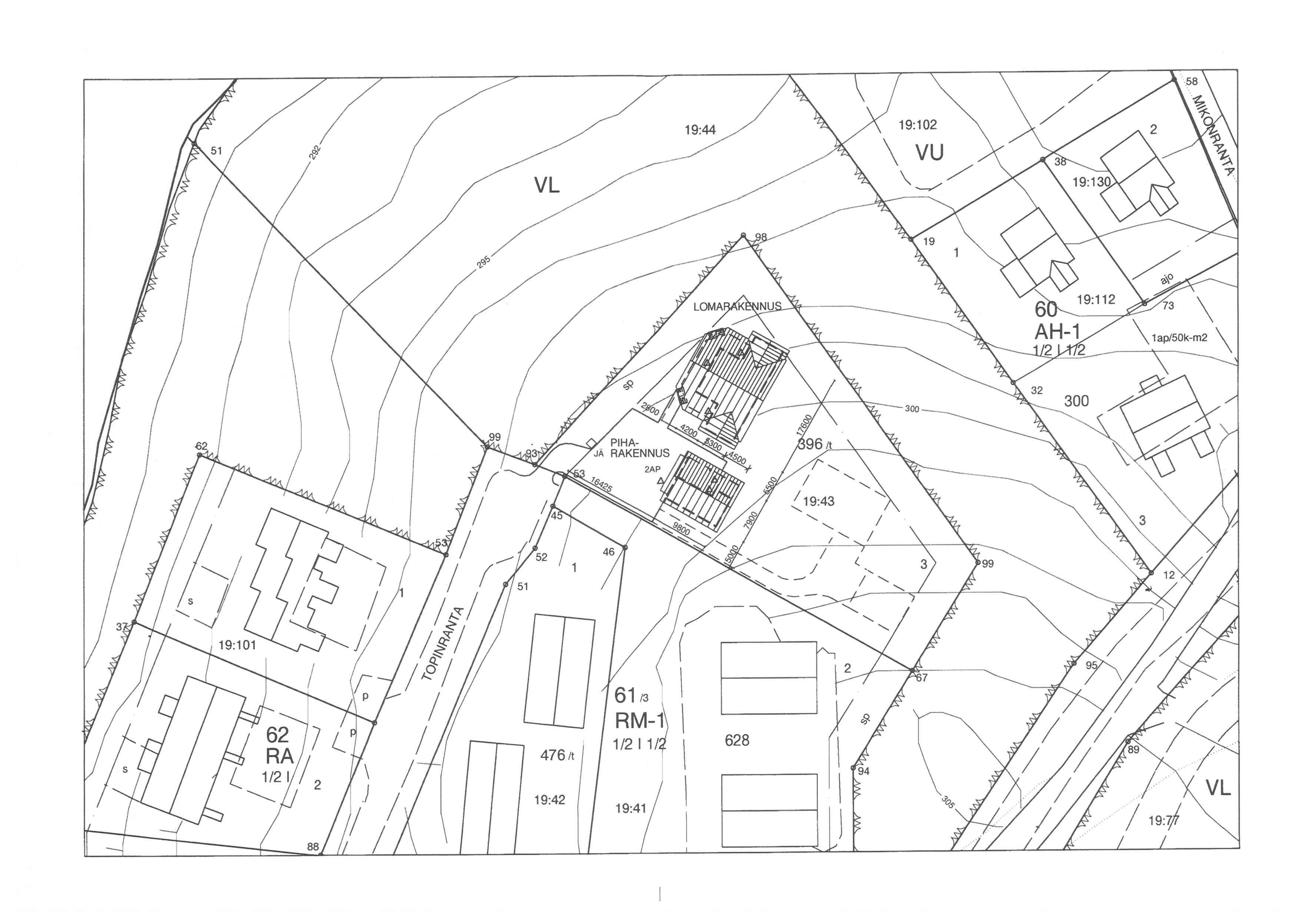
Asunnon tontti

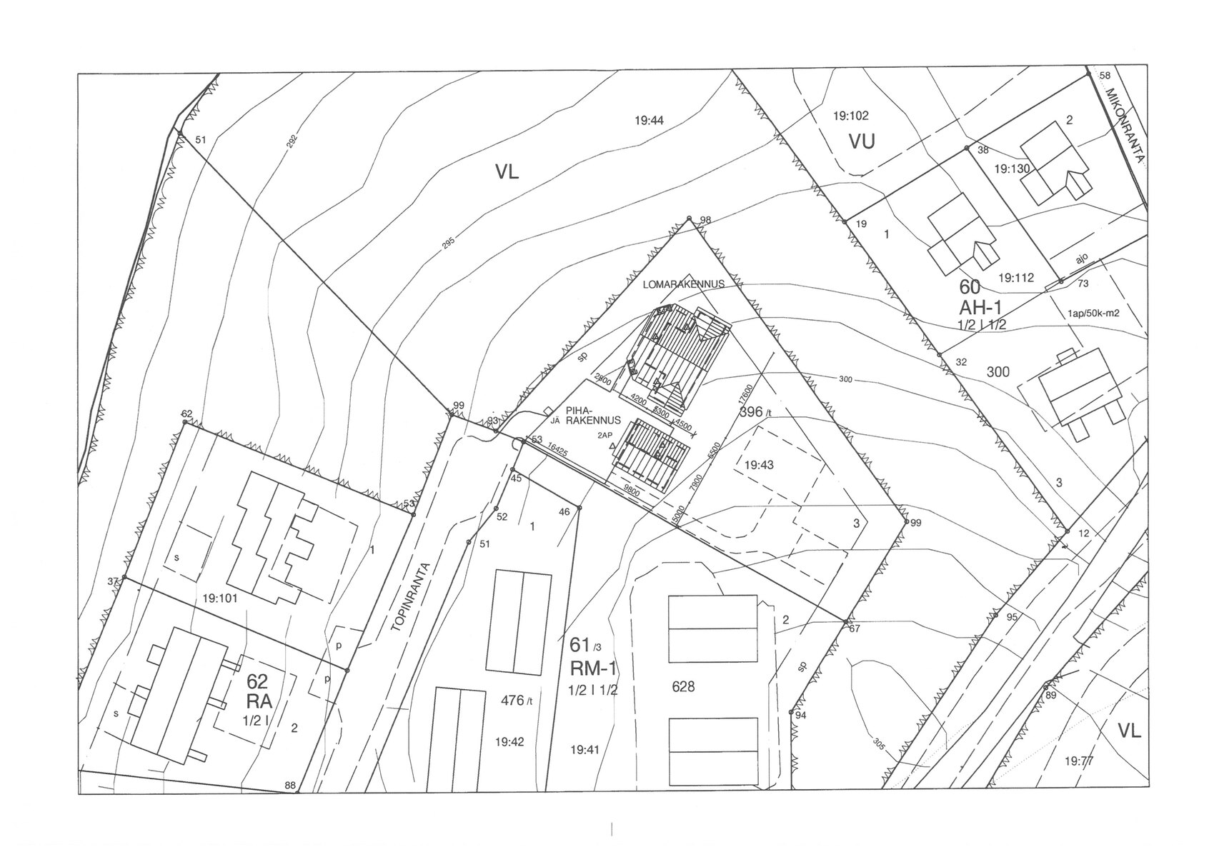
305-416-19-43
Kuusiruka III
1,28 ha
Tasamaatontti
Kokonaisuuteen kuuluu 2493 m² tontti rakennuksineen 305-416-19-43, sekä rakentamaton rantatontti 1,0296 ha 305-416-19-44 .
Oma
Oma ranta
Järvi
Rantaan johtaa kivetys ja valaistus. Rannassa tulipaikka. Hiekkaranta ja laituri.
396 m²
Rakennusoikeutta yhteensä 396 m². Rakennusoikeutta jäljellä 180 m².
Ranta-asemakaava
RM-1 1/2k I u 1/2. kortteli 61 tontti 3. Matkailua tukeva korttelialue. Saa rakentaa myös yksityiskäyttöön loma-asuntoja.
Ranta VL- lähivirkistysaluetta.
Piharakennus 44 m² + 8 m² kylmävarasto
Kyllä

Muut lisätiedot

Kalusteet ja varusteet. Huonekalut , tekstiilit ja kodinkoneet.
Kiinnostuitko kohteesta? Ota yhteyttä!
Etunimi *
Sukunimi *
Puhelin *
Sähköposti *