Omakotitalo
Kievaritie 6, Kuusamo, Toranki
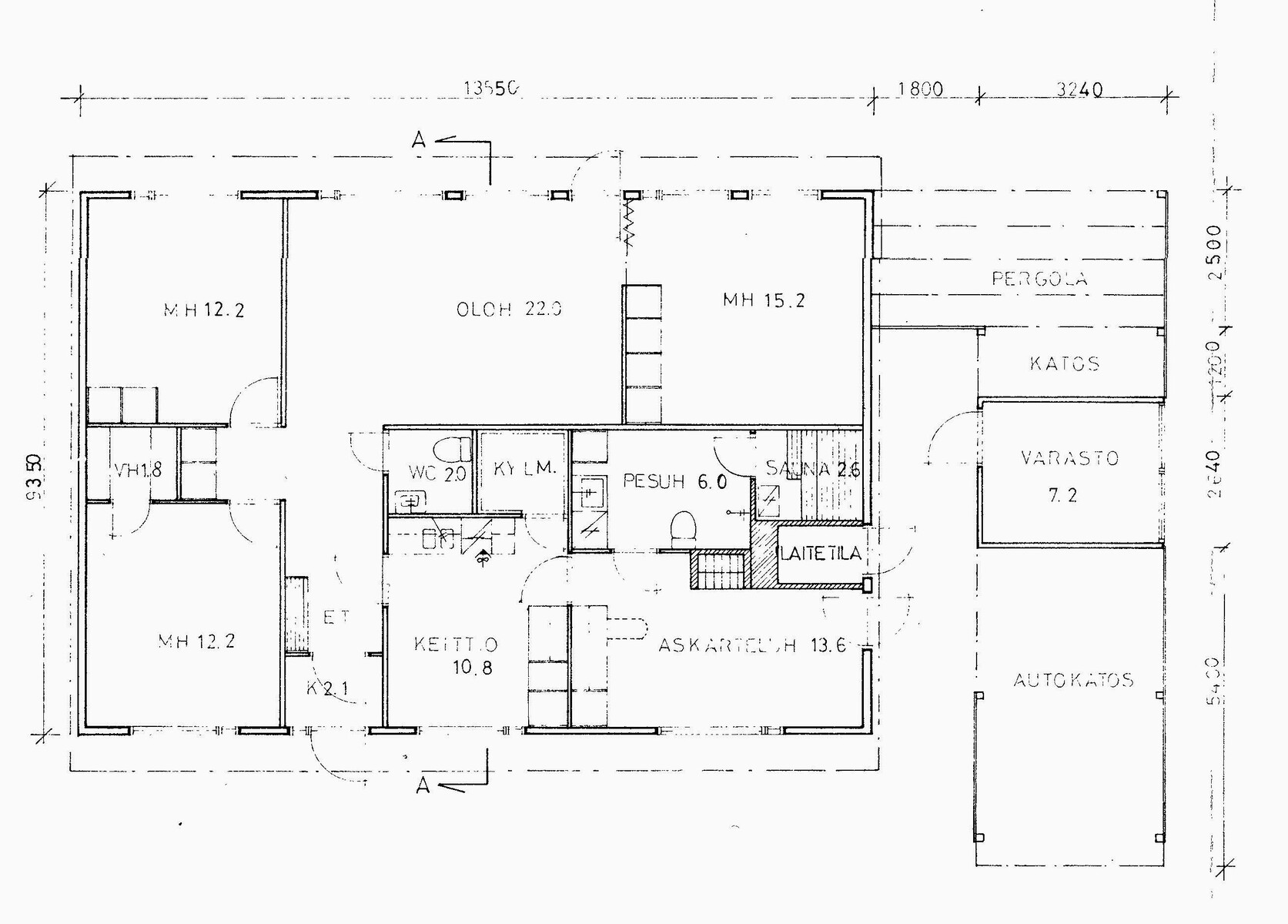
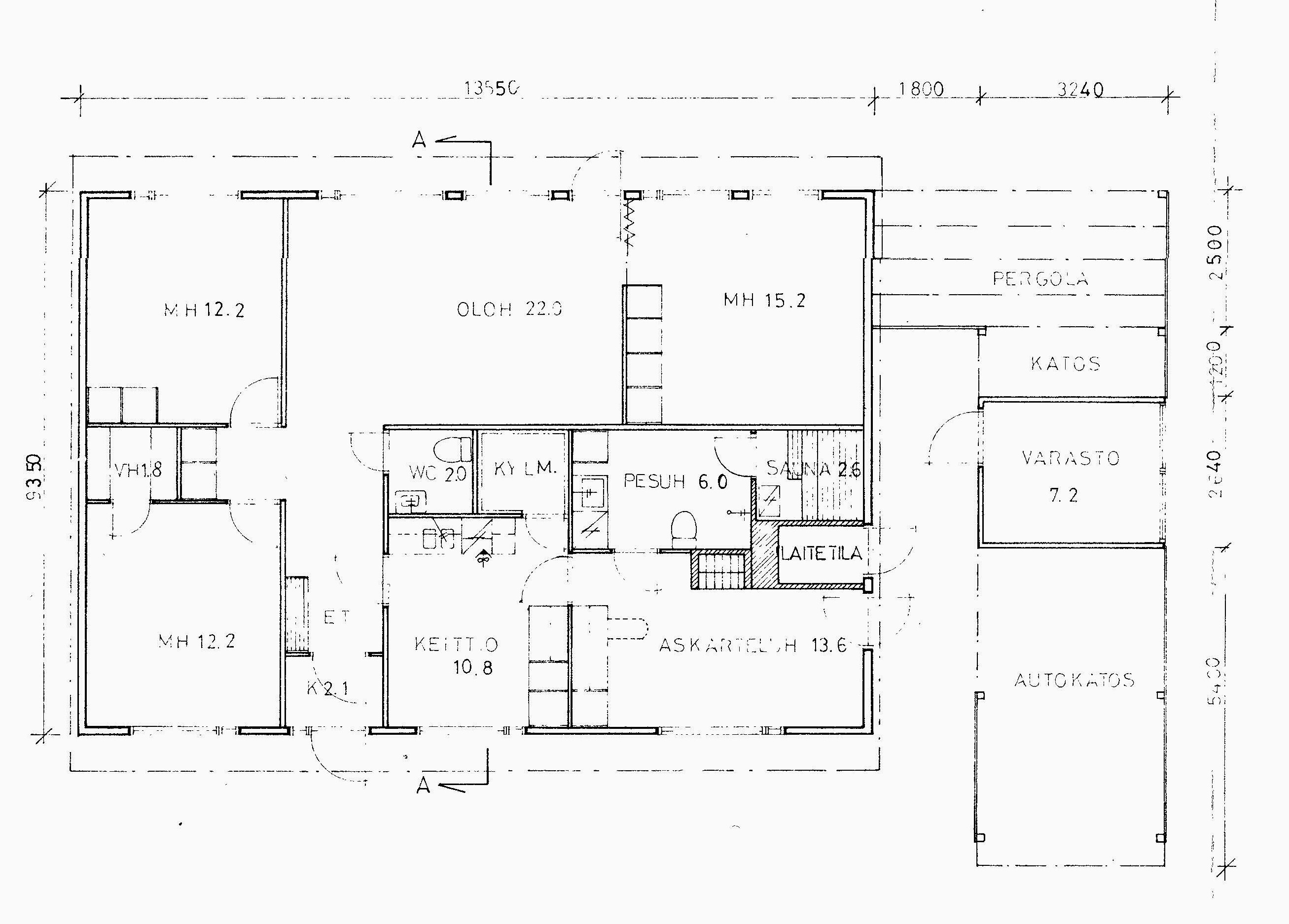
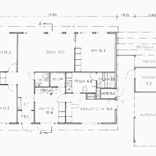
3 mh, oh, k, pkh, ph, s, 117 m²
48 000 €
Remonttikuntoinen omakotitalo Torangissa!
Asunnon pinnat alkuperäiset lukuun ottamatta pesuhuonetta ja saunaa, jotka remontoitu 1990-luvulla. Talossa kolme reilun kokoista makuuhuonetta, isohko olohuone ja näppärän kokoinen keittiö sekä apukeittiö. Omakotitaloon tehty kuntotarkastus kesäkuussa 2025. Kuntotarkastusraportin saa välittäjältä.
Hyvä sijainti Torangin rauhallisella omakotitaloalueella, Torangin koulu, Citymarket ja Prisma sijaitsee linnuntietä pitkin n. 1 km:n päässä.
Ota yhteyttä lisätietojen merkeissä! 
Esittely
Kohteen seuraavaa esittelyajankohtaa ei ole tiedossa
Perustiedot
1394003
20632004
Kuusamo, Toranki
Kievaritie 6
93600 Kuusamo
Kievaritie 6
93600 Kuusamo
Omakotitalo
Ei
Omistusasunto
3 mh, oh, k, pkh, ph, s
117 m²
10 m²
127 m²
1/1
1978
1978
Heti
Hinta ja kustannukset
48 000 €
48 000 €
410,26 € / m²
Laskettu velattomasta myyntihinnasta.
Laskettu velattomasta myyntihinnasta.
138 € / kk
Lisätiedot
Asunnossa on sauna
Sähkökiuas
Sähkökiuas
Leivinuuni
Tyydyttävä
Huopakatto uusittu 2000, käyttövesiputket uusittu 2010
12/2024 kaukolämmön lämmönvaihdin uusittu.
12/2024 kaukolämmön lämmönvaihdin uusittu.
Ei tiedossa
Kaukolämpö
Lämmönjakotapa: vesikiertoinen patterilämmitys
Lämmönjakotapa: vesikiertoinen patterilämmitys
Vesiosuuskunta
Kunnan
Painovoimainen
Antenni
Muu verkkoyhteys
Asunnon tilat ja materiaalit
Pääasiallinen rakennusmateriaali: Puu
Varusteet: liesituuletin, astianpesukone
Seinien pintamateriaali: maalattu
Lattian pintamateriaali: muovi
Keittiön tasot: laminaatti
Liesi: sähköliesi
Seinien pintamateriaali: maalattu
Lattian pintamateriaali: muovi
Keittiön tasot: laminaatti
Liesi: sähköliesi
Seinien pintamateriaali: maalattu
Lattian pintamateriaali: parketti
Lattian pintamateriaali: parketti
Seinien pintamateriaali: maalattu
Lattian pintamateriaali: muovi
Makuuhuoneiden määrä: 3
Lattian pintamateriaali: muovi
Makuuhuoneiden määrä: 3
Varusteet: pesukoneliitäntä, lattialämmitys, wc-istuin, suihku, kiinteät valaisimet
Seinien pintamateriaali: kaakeli
Lattian pintamateriaali: laatta
Seinien pintamateriaali: kaakeli
Lattian pintamateriaali: laatta
Varusteet: peilikaappi
Seinien pintamateriaali: tapetti
Lattian pintamateriaali: muovi
WC-tilojen määrä: 1
Seinien pintamateriaali: tapetti
Lattian pintamateriaali: muovi
WC-tilojen määrä: 1
Askarteluhuone
askarteluhuone/apukeittiössä leivinuuni, joka on tällä hetkellä käyttökiellossa: Hormin sisällä hormin alaosassa on kiilaavaa tiili/muurauslaasti ainesta joka estää tällä hetkellä pellin ja uunin käytön.
Varusteet: kiinteät valaisimet
askarteluhuone/apukeittiössä leivinuuni, joka on tällä hetkellä käyttökiellossa: Hormin sisällä hormin alaosassa on kiilaavaa tiili/muurauslaasti ainesta joka estää tällä hetkellä pellin ja uunin käytön.
Varusteet: kiinteät valaisimet
Katto: Harjakatto
Katon pintamateriaali: Hitsattu huopakate
Katon kunto: Katon pintamateriaali uusittu 2000
Katon pintamateriaali: Hitsattu huopakate
Katon kunto: Katon pintamateriaali uusittu 2000
Asunnon tontti
305-411-210-52
Kievaritie 6
1 007 m²
Tasamaatontti
Oma
251 m²
Asemakaava
0,25
Autotalli/varasto 41 m²
Kyllä
Muut lisätiedot
Kaukolämpöliittymä






















