Omakotitalo
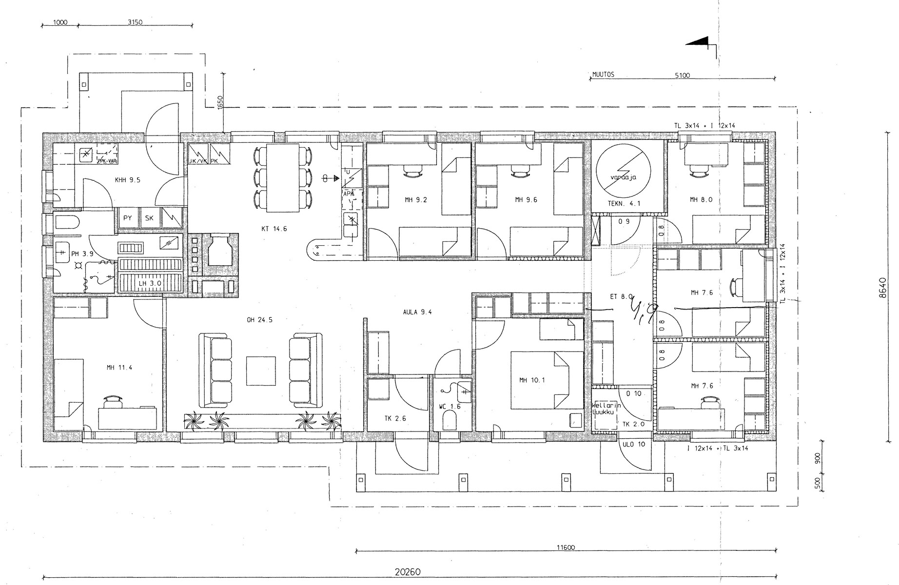
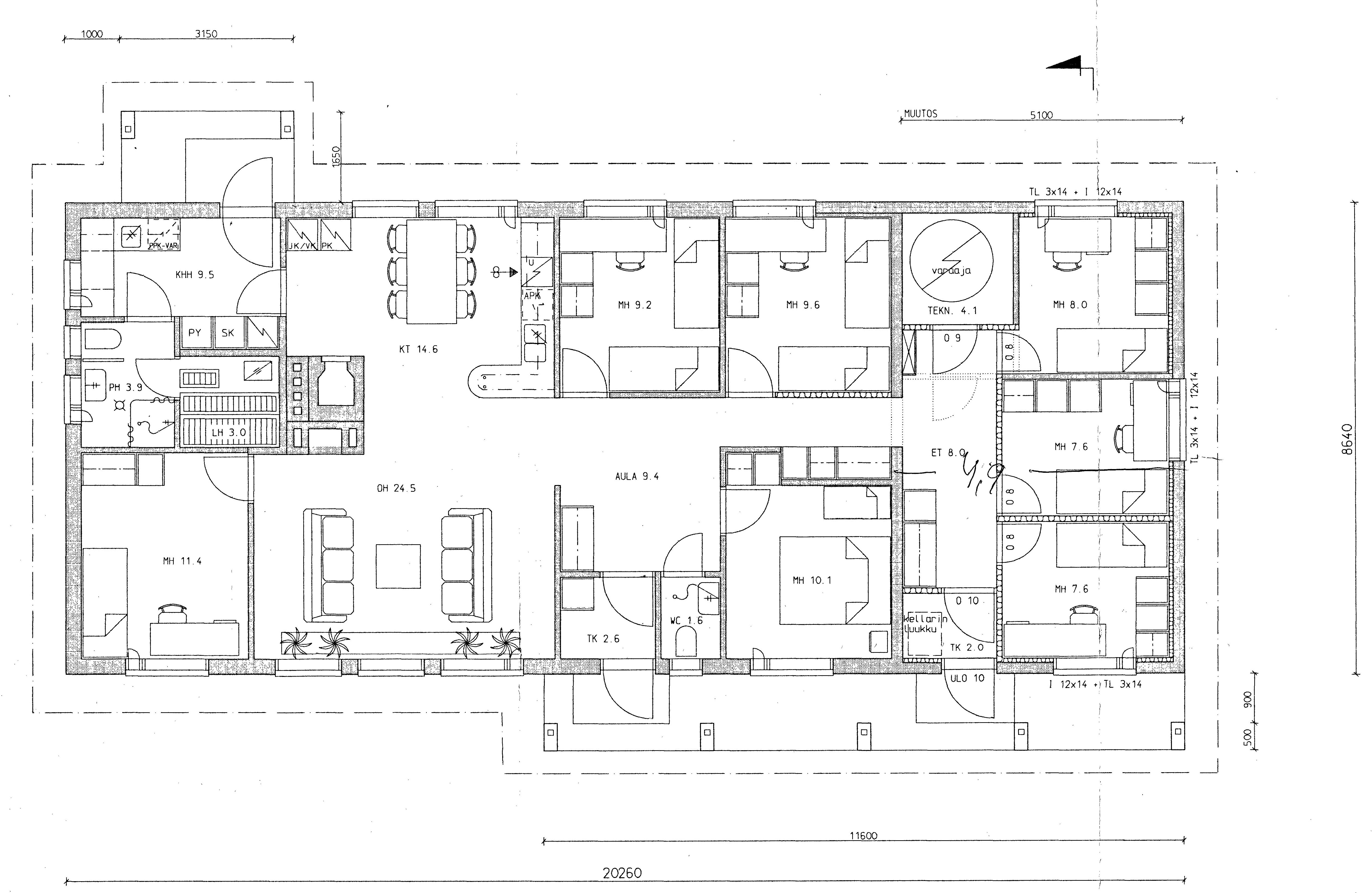
Torangin Kaamostiellä erittäin tilava, peruskuntoinen omakotitalo jossa hyvin tilaa isommallekin perheelle. Tämän Jukka-talojen mallistoa olevan talon alkuperäinen rakennusvuosi on 1982, taloa on laajennettu 1996 ja silloin siihen on lisätty toinen sisäänkäynti ja eteinen sekä 3 makuuhuonetta.
Kaikki tilat helposti yhdessä kerroksessa. Makuuhuoneita löytyy 7 ja isossa olohuoneessa on takka/leivinuuni lisälämmönlähteenä. Talon kaksi sisäänkäyntiä mahdollistaa sen että se on muutettavissa myös kahdeksi erilliseksi asunnoksi.
Talossa on sähkölämmitys ja poistoilmalämpöpumppu, joka tuottaa lämpöä, lämmittää käyttövettä, vaihtaa ilman ja ottaa energiaa talteen poistoilmasta pitäen kulutuksen kohtuullisena.
Pihalla autotalli/varasto sekä erillinen varasto. Lisäksi huvimaja ja leikkimökki.
Perheitä palvelee lähellä sijaitseva Torangin yläaste sekä marketit.
Kuntotarkastus tehty 09/2025, raportti saatavilla.
Ota yhteyttä ja sovi oma esittelysi!

Esittely
Perustiedot
Kaamostie 7
93600 Kuusamo
Hinta ja kustannukset
Laskettu velattomasta myyntihinnasta.
Lisätiedot
Puukiuas
-laajennus 1996, jolloin 3 mh+et+toinen sisäänkäynti
-käyttövesiputkisto uusittu 2001
-pesuhuone peruskorjattu noin 2001
-sauna päivitetty noin 2010
-lämmöntuotto- /ilmanvaihtojärjestelmä 2011
-vesikatolle asennettu uusi pinnoite 2019
-savuhormit nuohottu 2023
Lämmönjakotapa: vesikiertoinen patterilämmitys, sähköinen lattialämmitys, muu, takka-leivinuuni, puuhella
Kuusamon Energia- ja vesiosuuskunta
Asunnon tilat ja materiaalit
Seinien pintamateriaali: puu
Lattian pintamateriaali: laatta
Liesi: keraaminen, erillisuuni, liesitaso
Lattian pintamateriaali: laminaatti
Lattian pintamateriaali: laminaatti
Makuuhuoneiden määrä: 7
Seinien pintamateriaali: kaakeli
Lattian pintamateriaali: laatta
Seinien pintamateriaali: kaakeli
Lattian pintamateriaali: laatta
WC-tilojen määrä: 1
Seinien pintamateriaali: puu
Lattian pintamateriaali: muovi
Katon pintamateriaali: Huopa
Katon kunto: Katon pinnoite uusittu 2019
Asunnon tontti
TK Käsiteollisuusrakennusten korttelialue
Muut lisätiedot
Palvelut: marketit n. 1,50 km, keskusta n. 3 km,





















