Skip to main content

Lomahuoneisto

Topinranta 9, Rukatunturi, Ruka Rukatunturi, Kesäjärvi
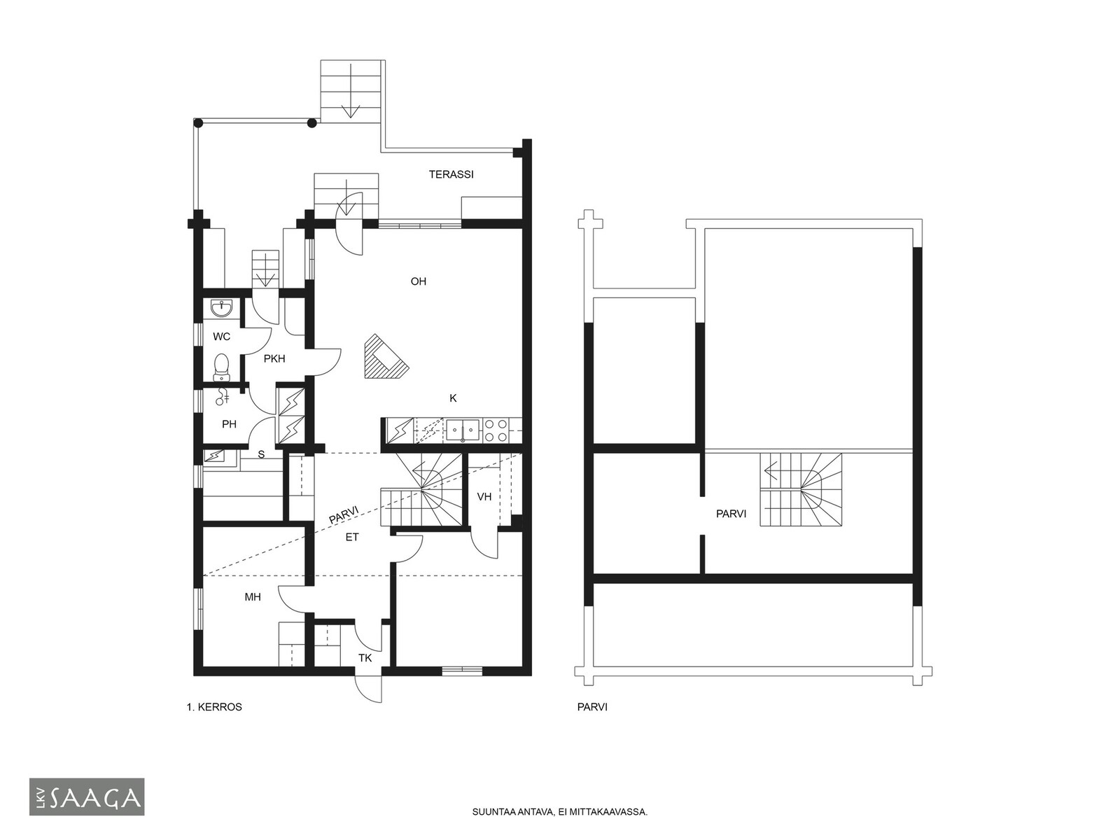
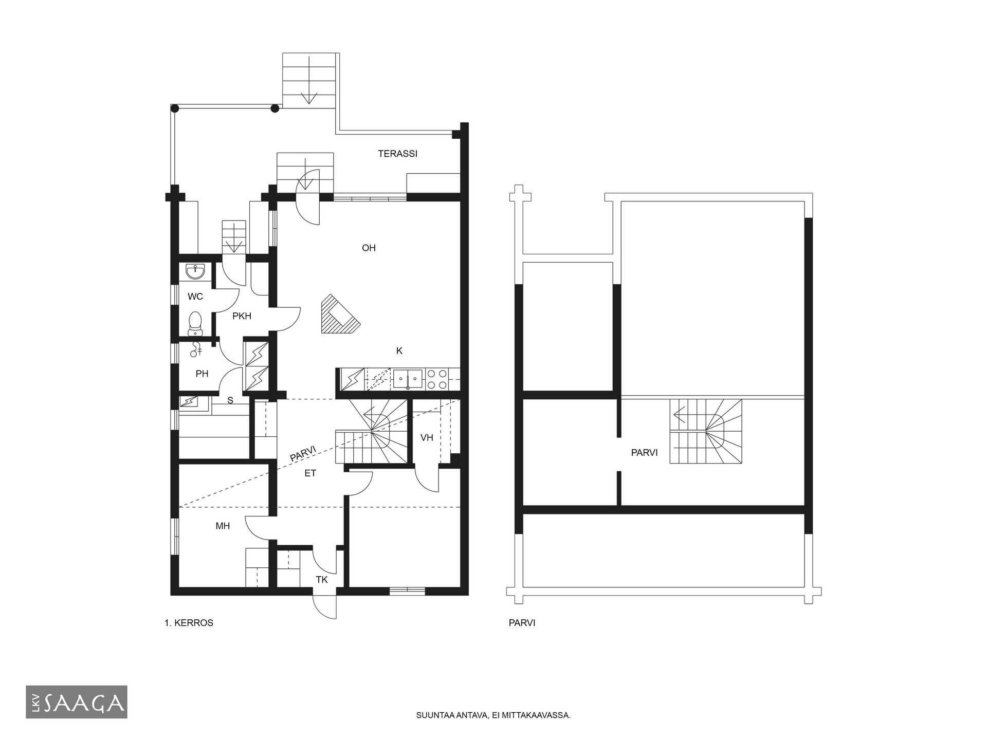
2 h + tupak + sauna + parvi, 71,50 m²
199 000 €

Upealla paikalla Kesäjärven ranta-alueella 71,50 m² päätyhuoneisto. Huoneistossa alakerrassa 2 makuuhuonetta, valoisa tupa-keittiö jossa korkea katto tuo hyvin tilantuntua, pesuhuone ja sauna. Parvella lisää makuutiloja alkovin ja avoimen parven muodossa 2-3 henkilölle. Pukuhuoneesta pääsee tilavalle, katetulle terassille josta rappuset ja pitkospuut viheralueelle rantaan, rannassa yhteiskäytössä oleva laituri ja vene.

Huoneistoa remontoitu vuosien varrella laadukkaasti, mm. sauna- ja pesuhuone sekä keittiö. Etäohjattava ilmalämpöpumppu sekä WI-FI lattiatermostaatit asennettu.
Loma-huoneisto on ollut ainoastaan omistajan omassa käytössä ja pinta-materiaalit ovat erinomaisessa kunnossa. Huoneisto vapautuu ostajalle 1.5.2026 alkaen.
Loistava paikka ympärivuotiseen lomailuun aivan Rukan palveluiden läheisyydessä. Omasta pihasta pääset kätevästi hiihtoladulle sekä moottorikelkkareiteille, lisäksi Ski-bus liikennöi alueella.

Rauhallisuus, luonto ja palveluiden läheisyys yhdistyvät tässä lomanviettopaikassa.
Tervetuloa tutustumaan!

Esittely

Kohteen seuraavaa esittelyajankohtaa ei ole tiedossa
Kiinnostuitko kohteesta? Ota yhteyttä!
Etunimi *
Sukunimi *
Puhelin *
Sähköposti *

Perustiedot

1409780
20864569
Rukatunturi, Ruka Rukatunturi, Kesäjärvi
Topinranta 9
93830 Rukatunturi
Lomahuoneisto
Ei
Omistusasunto
2h + tupak + sauna + parvi
2
71,50 m²
71,50 m²
Yhtiöjärjestyksen mukainen, isännöitsijäntodistuksen mukainen
Alakerta 65 kem² + parvi 6,50 kem²
1/1
1999
1999
1.5.2026 alkaen

Hinta ja kustannukset

199 000 €
199 000 €
2 783,22 € / m²
Laskettu velattomasta myyntihinnasta.
155,90 € / kk
Hoitovastike 155,90 € / kk

Lisätiedot

Ei
Asunnossa on sauna

Sähkökiuas
Hyvä
Sauna- ja pesuhuoneremontti kesällä 2017: uusittu lämminvesivaraaja ja siirretty se lauteen alle, uusittu saunan paneelit, lauteet ja kiuas, uusittu saunan, pesuhuoneen, eteisen ja wc:n lattialaatat ja kosteiden tilojen vesieristykset, uusittu pesuhuoneen seinälaatoitus ja vesieristeet, lisätty wc:n lattiaan mukavuuslämmitys.

Ilmalämpöpumppu Mitsubishi Electric LN25White hankittu asennettuna KylmäCenter Oy:ltä, takuu 3 vuotta (+ kompressorin materiaalitakuu vuosille 4 ja 5). Laite hankittu 04/2020 ja asennettu kesällä 2020.
Keittiökalusteet ml. liesituuletin uusittu kesällä 2020. Remontin teki Kuusamon Väri ja Sisustus Oy.
Liesi uusittu kesä 2017.
Tiskikone vaihdettu 09/2018.
Ilmalämpöpumppu huollettu ja ulkoyksikkö siirretty talon päätyyn 05/2025, toteutti Sähkötyö E Lämsä Oy.
Asennettu 06/2025 Etherma Wifi yhdistelmätermostaatit lattialämmitykselle 3 kpl, toteutti Sähkötyö E Lämsä Oy.
Kaikki ulko-ovet 3 kpl: karmien eristys, tuulensuojateippaus ja ovien tiivisteiden vaihto. Työn suoritti Tunturihuoneistot Oy/ Antti Sahi.
Sähkö, ilmalämpöpumppu
Antenni

Asunnon tilat ja materiaalit

Pääasiallinen rakennusmateriaali: Hirsi
Varusteet: liesituuletin, mikroaaltouuni, astianpesukone, kiinteät valaisimet
Seinien pintamateriaali: puu, osalaatoitus
Lattian pintamateriaali: parketti
Keittiön tasot: laminaatti
Liesi: keraaminen
Seinien pintamateriaali: puu
Lattian pintamateriaali: parketti
Parvella nukkumapaikat 2-3 henkilölle.
Seinien pintamateriaali: puu
Lattian pintamateriaali: parketti
Makuuhuoneiden määrä: 2
Varusteet: suihkuseinä, pesukone, kuivauskaappi, suihku, kiinteät valaisimet
Seinien pintamateriaali: kaakeli
Lattian pintamateriaali: laatta
Varusteet: lattialämmitys, peilikaappi, bidee-suihku
Seinien pintamateriaali: puu
Lattian pintamateriaali: laatta
WC-tilojen määrä: 1
Sisäänkäynnin yhteydessä ulkovarasto.
Eteinen, tuulikaappi, terassi, parvi, vaatehuone
Varusteet: kaapistot, sälekaihtimet/rullaverhot, verhotangot, kiinteät valaisimet, ilmalämpöpumppu, kuivauskaappi/-rumpu
Katto: Harjakatto
Katon pintamateriaali: Huopakate

Taloyhtiö

As. Oy Topinranta 1
3
Huopakatteiden kuntotarkastus ja kaikkien läpivientien pellitysten uusinta, kesä 2021
Rakennuksen ulkomaalaus, kesä 2022
Rakennuksen edustan maa-aineksen vaihto ja salaojaputken uusinta, kesä 2024
Suunnittelussa 2-3 vuoden päästä huopakatteen uusiminen.
Mirja Keränen, 050 422 4883
Asukkaat
Kohteelle ei lain mukaan tarvita energiatodistusta.
1 364 m²
Oma
Ranta
Kulku Kesäjärven rantaan. Ranta-alue VL - lähivirkistysaluetta.
Asemakaava

Muut lisätiedot

Autopaikat: 6
Kahdelle autolle sähköpistokepaikka.
Kesäjärvelle.
Rannassa yhteiskäytössä oleva vene.