Rivitalo
Käsälätie 1, Kuusamo, Keskusta
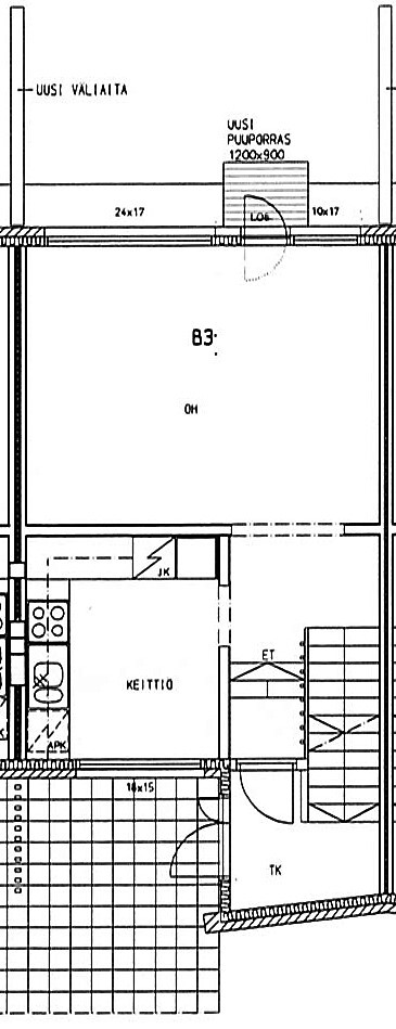
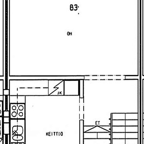
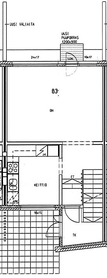
3 h,k,kh,2vh,2wc+saunaosasto, 76 m²
62 000 €
Viihtyisä ja lämminhenkinen rivitalokoti etsii uusia asukkaita. Keskikerroksessa olohuone, josta käynti takapihan terassille ja keittiö, yläkerrassa kaksi makuuhuonetta ja kylpyhuone/wc sekä kaksi vaatehuonetta. Kellarikerroksessa saunatilat oleskelutiloineen sekä lisää säilytystilaa tuovat varasto ja hillokellari.
Ammattikoulu, lukio ja markettien palvelut lähettyvillä. Taloyhtiössä on tehty vuosien saatossa remontteja ja yhtiöstä on pidetty huolta.
Heti vapaa!
Tervetuloa tutustumaan yksityisnäytöin! 
Esittely
Kohteen seuraavaa esittelyajankohtaa ei ole tiedossa
Perustiedot
1402203
21000669
Kuusamo, Keskusta
Käsälätie 1
93600 Kuusamo
Käsälätie 1
93600 Kuusamo
Rivitalo
Ei
Omistusasunto
3h,k,kh,2vh,2wc+saunaosasto
3
76 m²
40 m²
116 m²
Yhtiöjärjestyksen mukainen, isännöitsijäntodistuksen mukainen
Kellarikerroksessa 40 m², jossa saunaosasto, makuuhuone ja wc.
Lopputarkastus 2.11.2011.
Kellarikerroksessa 40 m², jossa saunaosasto, makuuhuone ja wc.
Lopputarkastus 2.11.2011.
2/2
1966
1966
Heti
Hinta ja kustannukset
62 000 €
39 223,14 €
22 776,86 €
815,79 € / m²
Laskettu velattomasta myyntihinnasta.
Laskettu velattomasta myyntihinnasta.
581,40 € / kk
Hoitovastike 361 € / kk
Rahoitusvastike 220,40 € / kk
Hoitovastike 361 € / kk
Rahoitusvastike 220,40 € / kk
25 € / kk
Autopaikkamaksu: 5 € / kk
Lisätiedot
Ranskalainen
Asunnossa on sauna
SähkökiuasKiuas Saunatonttu, etäohjaus aulatilasta.
SähkökiuasKiuas Saunatonttu, etäohjaus aulatilasta.
Hyvä
Huoneiston kellaritilaan n. 40 m² on rakennettu saunaosasto, Lopputarkastus 2.11.2011.
Yläkerran seinät ja eteisen paneelit maalattu v. 2017. Terassit käsitelty v. 2017.
Olohuoneen lattia uusittu 11/2025
Yläkerran seinät ja eteisen paneelit maalattu v. 2017. Terassit käsitelty v. 2017.
Olohuoneen lattia uusittu 11/2025
Ei tiedossa
Kaukolämpö
Kaapeli-tv
Valokuitu
Asunnon tilat ja materiaalit
Pääasiallinen rakennusmateriaali: Puu, tiili
Pintamateriaalit: Alakerrassa oleskelutilassa laattalattia, jossa lattialämmitys sähköllä.
Pintamateriaalit: Alakerrassa oleskelutilassa laattalattia, jossa lattialämmitys sähköllä.
Lattia linoleum
Varusteet: liesituuletin, astianpesukone
Lattian pintamateriaali: muu
Keittiön tasot: laminaatti
Liesi: keraaminen
Varusteet: liesituuletin, astianpesukone
Lattian pintamateriaali: muu
Keittiön tasot: laminaatti
Liesi: keraaminen
Olohuoneen lattia uusittu 11/2025
Seinien pintamateriaali: tapetti
Lattian pintamateriaali: laminaatti
Seinien pintamateriaali: tapetti
Lattian pintamateriaali: laminaatti
Yläkerrassa 2 makuuhuonetta, kellarikerroksessa 1 makuuhuone.
Seinien pintamateriaali: tapetti
Lattian pintamateriaali: laminaatti
Makuuhuoneiden määrä: 3
Seinien pintamateriaali: tapetti
Lattian pintamateriaali: laminaatti
Makuuhuoneiden määrä: 3
Suihkukaappi ja wc-istuin 2010.
Yläkerran kylpyhuoneessa wc samassa tilassa, alakerrassa erillinen wc saunatilojen yhteydessä.
Pesukoneliitäntä yläkerran kylpyhuoneessa.
Lattialämmitys (sähkö)
kellarikerroksessa.
Varusteet: suihkukaappi, pesukoneliitäntä, wc-istuin, peilikaappi
Seinien pintamateriaali: kaakeli
Lattian pintamateriaali: laatta
Yläkerran kylpyhuoneessa wc samassa tilassa, alakerrassa erillinen wc saunatilojen yhteydessä.
Pesukoneliitäntä yläkerran kylpyhuoneessa.
Lattialämmitys (sähkö)
kellarikerroksessa.
Varusteet: suihkukaappi, pesukoneliitäntä, wc-istuin, peilikaappi
Seinien pintamateriaali: kaakeli
Lattian pintamateriaali: laatta
Varusteet: suihkukaappi, bidee-suihku
Seinien pintamateriaali: kaakeli
Lattian pintamateriaali: laatta
WC-tilojen määrä: 2
Seinien pintamateriaali: kaakeli
Lattian pintamateriaali: laatta
WC-tilojen määrä: 2
Kellarikomero
Eteinen, terassi, patio
Ranskalainen parveke, 2 vaatehuonetta.
Ranskalainen parveke, 2 vaatehuonetta.
Katto: Tasakatto
Katon pintamateriaali: Huopakate
Katon pintamateriaali: Huopakate
Taloyhtiö
As. Oy Kuusamon Rivitalot
Sauna, talopesula
26
Sadevesi- ja jätevesiviemärit Kunnossapitokorjaus A-talon sadevesiviemärin korjaus 2023
Vesi- ja viemäriputket Kunnossapitokorjaus Vesijohtojen sekä tonttivesijohdon uusiminen 2017
Sähköjärjestelmä Kunnossapitokorjaus Sähköjohtojen (nousujohdot) ja keskusten uusiminen 2017
Salaojat ja -kaivot Kunnossapitokorjaus Salaojien sekä talon välisten kanaalien uusiminen 2017
Internet, Puhelin, TV, Antennijärjestelmä Perusparannus Antenni-, atk- ja puhelinverkon uusiminen 2017
Ulko-ovet Kunnossapitokorjaus Takaovien uusinta 2017
Vesi- ja viemäriputket Kunnossapitokorjaus Pohjaviemärit sukitettu 2010
Vesi- ja viemäriputket Kunnossapitokorjaus Asuntojen viemärit pinnoitettu 2009
Yläpohjarakenteet ja vesikatto varusteineen Perusparannus Otsalaudoitukset pellitetty 2004
Piharakennukset, jäteastiat, aidat, tukimuurit, portaat ym. Kunnossapitokorjaus Uusittu autotallin katto ja ovet 2004
Ulko-ovet Kunnossapitokorjaus Huoneistojen ulko-ovet uusittu 2002
Ikkunat, parvekeovet tai parvekkeet Kunnossapitokorjaus Parvekkeen ovet ja ikkuvat uusittu 2002
Ikkunat, parvekeovet tai parvekkeet Kunnossapitokorjaus Ikkunat uusittu 1999
Vesi- ja viemäriputket Kunnossapitokorjaus Vesijohtojen sekä tonttivesijohdon uusiminen 2017
Sähköjärjestelmä Kunnossapitokorjaus Sähköjohtojen (nousujohdot) ja keskusten uusiminen 2017
Salaojat ja -kaivot Kunnossapitokorjaus Salaojien sekä talon välisten kanaalien uusiminen 2017
Internet, Puhelin, TV, Antennijärjestelmä Perusparannus Antenni-, atk- ja puhelinverkon uusiminen 2017
Ulko-ovet Kunnossapitokorjaus Takaovien uusinta 2017
Vesi- ja viemäriputket Kunnossapitokorjaus Pohjaviemärit sukitettu 2010
Vesi- ja viemäriputket Kunnossapitokorjaus Asuntojen viemärit pinnoitettu 2009
Yläpohjarakenteet ja vesikatto varusteineen Perusparannus Otsalaudoitukset pellitetty 2004
Piharakennukset, jäteastiat, aidat, tukimuurit, portaat ym. Kunnossapitokorjaus Uusittu autotallin katto ja ovet 2004
Ulko-ovet Kunnossapitokorjaus Huoneistojen ulko-ovet uusittu 2002
Ikkunat, parvekeovet tai parvekkeet Kunnossapitokorjaus Parvekkeen ovet ja ikkuvat uusittu 2002
Ikkunat, parvekeovet tai parvekkeet Kunnossapitokorjaus Ikkunat uusittu 1999
Sähköjärjestelmä Tutkimus/tarkastus Autotallien sähköjen tarkistus Päätös tehty 2025
Yläpohjarakenteet ja vesikatto varusteineen Vikakorjaus A-talon kattovaurion korjaus Päätös tehty 2025
Piha-alueen varustukset Kunnossapitokorjaus jätekatoksiin ovien rakennus ja aukkojen verkottaminen lintujen takia. Päätös tehty 2025
Piha-alueen päällysteet ja päällysrakenteet kunnossapitokorjaus Pihapolkujen levennys Päätös tehty 2025
Julkisivut Kunnossapitokorjaus Kivijalan kunnossapitomaalaus Päätös tehty 2025
Yläpohjarakenteet ja vesikatto varusteineen Vikakorjaus A-talon kattovaurion korjaus Päätös tehty 2025
Piha-alueen varustukset Kunnossapitokorjaus jätekatoksiin ovien rakennus ja aukkojen verkottaminen lintujen takia. Päätös tehty 2025
Piha-alueen päällysteet ja päällysrakenteet kunnossapitokorjaus Pihapolkujen levennys Päätös tehty 2025
Julkisivut Kunnossapitokorjaus Kivijalan kunnossapitomaalaus Päätös tehty 2025
Retta Isännöinti Oy, Kuusamo, Multas Keijo, Maaseläntie 36, 93600 KUUSAMO, 010 228 1200 keijo.multas@retta.fi
Huoltoyhtiö
Kiinteistöhuolto Oikarainen.
Kiinteistöhuolto Oikarainen.
C
Voimassa 15.12.2022
1,17 ha
Oma
Asemakaava
Muut lisätiedot
Sähköpistoke
Autopaikat: 26
Autotallit: 7
Autopaikkamaksu: 5 € / kk
Autopaikat: 26
Autotallit: 7
Autopaikkamaksu: 5 € / kk
1. kerroksessa takapihalla suojaisa terassi ja
2. kerroksessa ranskalainen parveke
2. kerroksessa ranskalainen parveke
Palvelut: Keskusta 1 km
Marketit 0,80 km
Marketit 0,80 km
Osakkailla lunastusoikeus autotallien hallintaan oikeuttaviin osakkeisiin. Myytävän huoneiston omistajalla ei ole autotalliosakkeita.
















