Lomahuoneisto
Huttulammentie 8, Rukatunturi, Ruka Rukatunturi
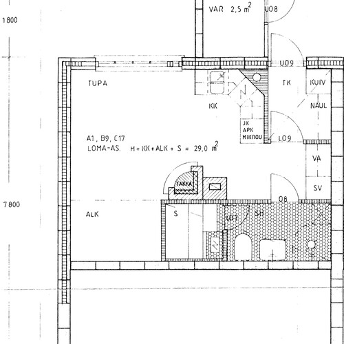
1 h + kk + s, 29 m²
79 500 €
Ihastuttava, lämminhenkinen ja tyylikkään toimiva loma-asunto Rukalla!
Tämä viihtyisä loma-asunto sijaitsee Huttulammen alueella, josta hyvät yhteydet Rukan keskustan palveluihin sekä ulkoilu- ja liikunta-aktiviteetteihin. SkiBus liikennöi n. 200 m etäisyydellä, hiihtoladut 300 m päässä.
Huoneistossa toimiva tupakeittiö, sauna ja pesuhuone. Varasto sisääntulon yhteydessä. Takapihalta metsäiset näkymät, terassilta näkymät Rukan maisemiin. Olohuoneessa kaunis varaava takka. Miellyttävän harmoninen kokonaisuus!
Huoneisto ollut ainoastaan myyjien omassa käytössä ja se vapautuu uusille omistajille sopimuksen mukaan.
Myydään kalusteineen ja varusteineen.
Tervetuloa tutustumaan ja ihastumaan!

Esittely
Kohteen seuraavaa esittelyajankohtaa ei ole tiedossa
Perustiedot
1415163
21163817
Rukatunturi, Ruka Rukatunturi
Huttulammentie 8
93830 Rukatunturi
Huttulammentie 8
93830 Rukatunturi
Lomahuoneisto
Ei
Omistusasunto
1h + kk + s
1
29 m²
29 m²
Yhtiöjärjestyksen mukainen
1/1
1990
1990
Sopimuksen mukaan
Hinta ja kustannukset
79 500 €
78 970,11 €
529,89 €
2 741,38 € / m²
Laskettu velattomasta myyntihinnasta.
Laskettu velattomasta myyntihinnasta.
139,20 € / kk
Hoitovastike 101,50 € / kk
Rahoitusvastike 37,70 € / kk
Hoitovastike 101,50 € / kk
Rahoitusvastike 37,70 € / kk
Lisätiedot
Ei
Asunnossa on sauna
Sähkökiuassaunapaneelien hionta ja pintakäsittely 2018
Sähkökiuassaunapaneelien hionta ja pintakäsittely 2018
Varaava takka
Hyvä
Ei tiedossa
Sähkö, muu, ilmanvaihtotapa koneellinen poisto
Antenni
Asunnon tilat ja materiaalit
Pääasiallinen rakennusmateriaali: Puu, betoni
2020 keittiöremontti ja keittiökoneiden uusinta: induktioliesi, astianpesukone, jääkaappipakastin ja kiertoilmauuni/mikro.
Keittiön vesiputket uusittu 2025.
Varusteet: liesituuletin, astianpesukone, kiinteät valaisimet
Seinien pintamateriaali: maalattu, osalaatoitus
Lattian pintamateriaali: laminaatti
Keittiön tasot: laminaatti
Liesi: induktio, erillisuuni
Keittiön vesiputket uusittu 2025.
Varusteet: liesituuletin, astianpesukone, kiinteät valaisimet
Seinien pintamateriaali: maalattu, osalaatoitus
Lattian pintamateriaali: laminaatti
Keittiön tasot: laminaatti
Liesi: induktio, erillisuuni
Laminaatti asennettu 2015
Seinien pintamateriaali: maalattu
Lattian pintamateriaali: laminaatti
Seinien pintamateriaali: maalattu
Lattian pintamateriaali: laminaatti
Kattopaneelien vaihto 2018
Varusteet: suihkukaappi, wc-istuin, suihku, peili, kiinteät valaisimet, kylpyhuonekaapisto
Seinien pintamateriaali: kaakeli
Lattian pintamateriaali: laatta
Varusteet: suihkukaappi, wc-istuin, suihku, peili, kiinteät valaisimet, kylpyhuonekaapisto
Seinien pintamateriaali: kaakeli
Lattian pintamateriaali: laatta
Eteinen, terassi
Tuulikaapin laattalattia ja lattialämmitys 2025.
Eteisen kaapiston peiliovet uusittu.
Sisäpinnat maalattu 2017.
Varusteet: kaapistot, sälekaihtimet/rullaverhot, verhotangot, kiinteät valaisimet, lämminvesivaraaja
Tuulikaapin laattalattia ja lattialämmitys 2025.
Eteisen kaapiston peiliovet uusittu.
Sisäpinnat maalattu 2017.
Varusteet: kaapistot, sälekaihtimet/rullaverhot, verhotangot, kiinteät valaisimet, lämminvesivaraaja
Katto: Harjakatto
Katon pintamateriaali: Huopakate
Katon pintamateriaali: Huopakate
Taloyhtiö
Kiinteistö Oy Rukan Kuukkeli
Huoneistokohtaiset varastot
34
Lämminvesivaraajatilojen muuttaminen lattiakaivollisiksi tiloiksi 2025
Kelohirsikehikkojen painumavarakorjaukset 2024
Kulkuväylien sarastus, maan pinnan muotoilu 2024
Antennin ja antennivahvistimen virittäminen HD tasoon 2024
Lattialämmitystermostaattien uusiminen 2019
Vesikattokorjaus vaihe 2, 2017
Vesikattokorjaus vaihe 1, 2016
Lukituksen uusiminen 2015
Sähköpattereiden uusiminen 2013
Vesivaraajat uusittu huoneistoihin: A1, A3, A4, A7, B9, B10, B11, B12, B13, B14,
B15,B16,C17,C18,C19,C20,C21,C22,D25,D26, E31,E32, E33, E34, 2011
vesivaraajien vaihto huoneistoihin C24, D28 ja A6, 2010
A-talon päädyn portaiden uusiminen 2010
Varaston ovien kunnostus/ maalaus 2010
savupiippujen sadekatokset 2010
Laskeutumisvarojen lisäykset yläkerran huoneistoihin, pihan muutostyöt, kulkureitin muuttaminen
talojen A, B ja C yläkerran huoneistoille 2008
Antennijärjestelmän muutostyö digivalmiuksia varten 2006
pintamaiden muotoilu ja rakennusten kahdelle lyhyelle sivulle patolevyn asentamiset tehty taloihin
B-E, 2005
Salaojien uusimiset, sadevesien ohjaukset rakennuksen viereltä pois, avo-ojien perkaus 2005
Kelohirsikehikkojen painumavarakorjaukset 2024
Kulkuväylien sarastus, maan pinnan muotoilu 2024
Antennin ja antennivahvistimen virittäminen HD tasoon 2024
Lattialämmitystermostaattien uusiminen 2019
Vesikattokorjaus vaihe 2, 2017
Vesikattokorjaus vaihe 1, 2016
Lukituksen uusiminen 2015
Sähköpattereiden uusiminen 2013
Vesivaraajat uusittu huoneistoihin: A1, A3, A4, A7, B9, B10, B11, B12, B13, B14,
B15,B16,C17,C18,C19,C20,C21,C22,D25,D26, E31,E32, E33, E34, 2011
vesivaraajien vaihto huoneistoihin C24, D28 ja A6, 2010
A-talon päädyn portaiden uusiminen 2010
Varaston ovien kunnostus/ maalaus 2010
savupiippujen sadekatokset 2010
Laskeutumisvarojen lisäykset yläkerran huoneistoihin, pihan muutostyöt, kulkureitin muuttaminen
talojen A, B ja C yläkerran huoneistoille 2008
Antennijärjestelmän muutostyö digivalmiuksia varten 2006
pintamaiden muotoilu ja rakennusten kahdelle lyhyelle sivulle patolevyn asentamiset tehty taloihin
B-E, 2005
Salaojien uusimiset, sadevesien ohjaukset rakennuksen viereltä pois, avo-ojien perkaus 2005
Hallituksen selvitys kunnossapitotarpeista 2024-2027:
Salaojaputkien korjaus tutkimusraportin mukaisesti (käynnissä)
Suositellut toimenpiteet
2026: Ikkunoiden ja ovien käynnin säätö, lukitusten huolto, tiivistykset, IV-kanavien puhdistus ja ilmastoinnin säätö, viallisten iv-koneiden uusiminen iv-kanavien puhdistuksen yhteydessä, D- ja E-talon takapihan maan painumisesta johtuvat korjaukset.
2027: Harkkoseinien rappauksen korjaukset, ikkunoiden ja ovien puuosien huoltomaalaus, rakennusten puupintojen huoltomaalaus, alkuperäisten lattialämmitystermostaattien uusiminen, hirsikehikkojen ja maanvastaisten levytettyjen ulkoseinien kuntotutkimus.
Salaojaputkien korjaus tutkimusraportin mukaisesti (käynnissä)
Suositellut toimenpiteet
2026: Ikkunoiden ja ovien käynnin säätö, lukitusten huolto, tiivistykset, IV-kanavien puhdistus ja ilmastoinnin säätö, viallisten iv-koneiden uusiminen iv-kanavien puhdistuksen yhteydessä, D- ja E-talon takapihan maan painumisesta johtuvat korjaukset.
2027: Harkkoseinien rappauksen korjaukset, ikkunoiden ja ovien puuosien huoltomaalaus, rakennusten puupintojen huoltomaalaus, alkuperäisten lattialämmitystermostaattien uusiminen, hirsikehikkojen ja maanvastaisten levytettyjen ulkoseinien kuntotutkimus.
Retta Kuusamo, Pekka Nissi, 010 228 4000, pekka.nissi@retta.fi
Huoltoyhtiö
Rukan Kiinteistöpalvelut Oy
Rukan Kiinteistöpalvelut Oy
Kohteelle ei lain mukaan tarvita energiatodistusta.
1,95 ha
Oma
Asemakaava
Muut lisätiedot
Autopaikat: 34
Palvelut: Ski Bus 200 m
hiihtoladuille 300 m
hiihtoladuille 300 m
Kalusteet, TV, stereot, Wi-Fi reititin, jolla voidaan hoitaa lämmönohjaus etänä.





















