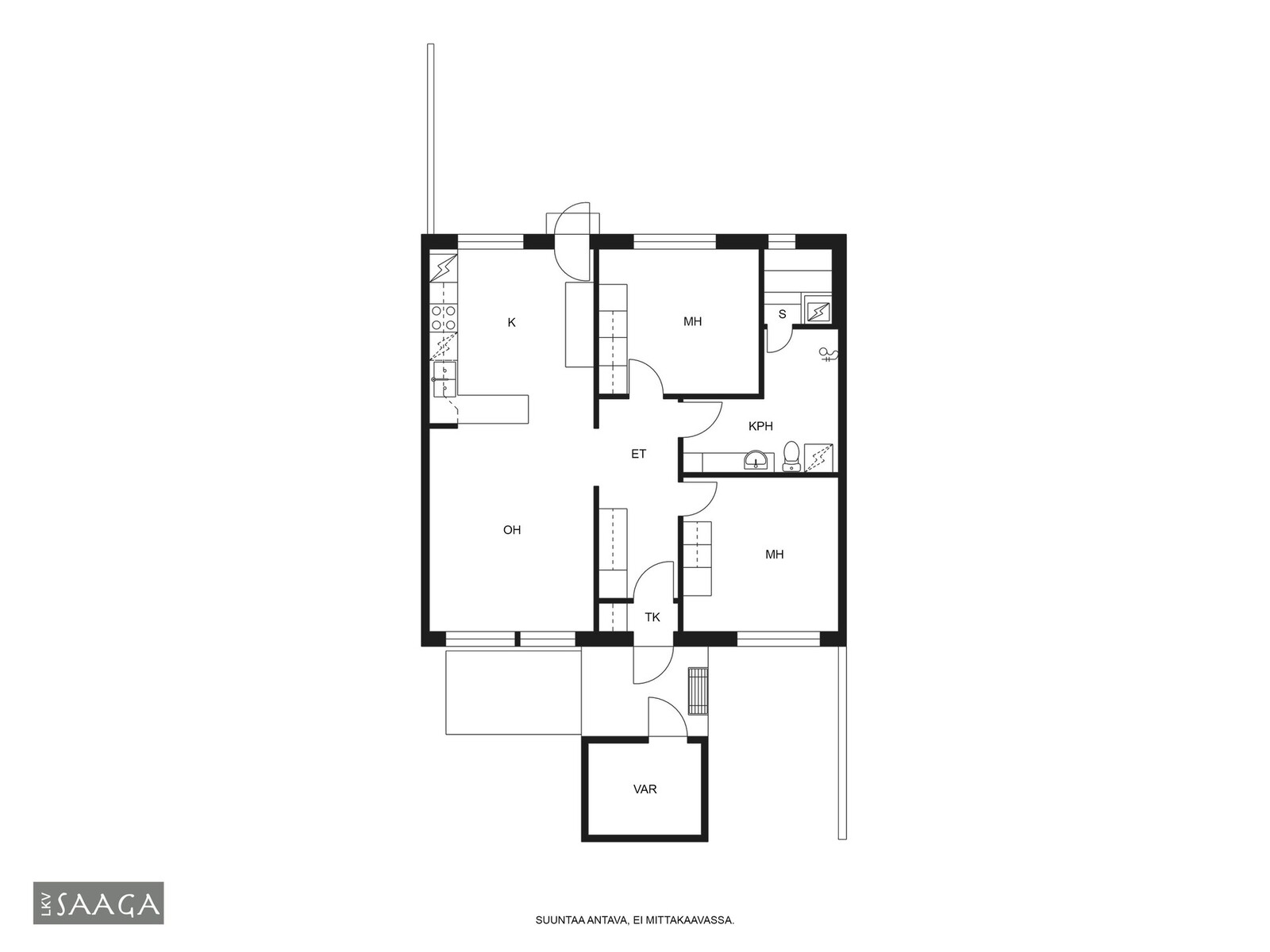
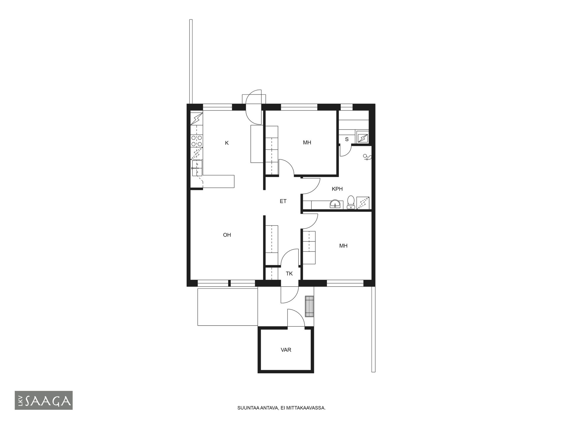
Rivitalo
Leppälinnuntie 1, Kuusamo, Tolpanniemi
3 h + k + s, 75 m²
72 500 €
Tervetuloa tutustumaan tähän siistikuntoiseen ja viihtyisään rivitalokolmioon Leppälinnuntiellä, Tolpanniemessä. Tämä 75 m²:n koti tarjoaa toimivan ja mukavan pohjaratkaisun arkeen.
Asuminen on helppoa ja huoletonta hyvin hoidetussa taloyhtiössä, jossa lämmitysmuotona on kaukolämpö ja suuret remontit on jo tehty. Rauhallinen asuinympäristö ja luonnonläheisyys tekevät alueesta erityisen viihtyisän – Torankijärven upeat ulkoilureitit lähtevät lähes kotiovelta. Myös keskustan palvelut ovat lähellä, vain noin 2 kilometrin päässä.
Huoneisto vuokrattuna, vapautuminen sopimuksen mukaan.
Varaa oma esittelyaikasi!

Esittely
Kohteen seuraavaa esittelyajankohtaa ei ole tiedossa
Perustiedot
1413321
21346956
Kuusamo, Tolpanniemi
Leppälinnuntie 1
93600 Kuusamo
Leppälinnuntie 1
93600 Kuusamo
Rivitalo
Ei
Omistusasunto
3h + k + s
3
75 m²
75 m²
Yhtiöjärjestyksen mukainen, isännöitsijäntodistuksen mukainen
1/1
1987
1987
Sopimuksen mukaan
Hinta ja kustannukset
72 500 €
72 500 €
966,67 € / m²
Laskettu velattomasta myyntihinnasta.
Laskettu velattomasta myyntihinnasta.
700 € / kk
288 € / kk
Hoitovastike 288 € / kk
Hoitovastike 288 € / kk
25 € henkilöluvun mukaan
Autopaikkamaksu: 10 € / kk
Lisätiedot
Ei
Asunnossa on sauna
Sähkökiuas
Sähkökiuas
Hyvä
Osakkeenomistajan muutostyöilmoitus 30.6.2014 pesuhuoneen ja saunan remontista.
Ei tiedossa
Jos osakas aikoo tehdä tai teettää huoneistoremontin, hänen tulee teettää asbestikartoitus purettaviin materiaaleihin.
Uuden lain mukaan ennen vuotta 1994 rakennettujen rakennusten purettavien materiaalien asbesti pitää kartoittaa ennen purkutyötä. Osakas maksaa kartoituksen, ellei yhtiön kanssa muuta sovita.
Jos osakas aikoo tehdä tai teettää huoneistoremontin, hänen tulee teettää asbestikartoitus purettaviin materiaaleihin.
Uuden lain mukaan ennen vuotta 1994 rakennettujen rakennusten purettavien materiaalien asbesti pitää kartoittaa ennen purkutyötä. Osakas maksaa kartoituksen, ellei yhtiön kanssa muuta sovita.
Kaukolämpö, muu, koneellinen poisto
Kaapeli-tv
Asunnon tilat ja materiaalit
Pääasiallinen rakennusmateriaali: Puu, tiili
Varusteet: liesituuletin, astianpesukone, kiinteät valaisimet
Seinien pintamateriaali: maalattu, tapetti, puolipaneeli, osalaatoitus
Lattian pintamateriaali: muovi
Keittiön tasot: laminaatti
Liesi: keraaminen
Seinien pintamateriaali: maalattu, tapetti, puolipaneeli, osalaatoitus
Lattian pintamateriaali: muovi
Keittiön tasot: laminaatti
Liesi: keraaminen
Seinien pintamateriaali: maalattu, tapetti
Lattian pintamateriaali: laminaatti
Lattian pintamateriaali: laminaatti
Seinien pintamateriaali: maalattu, tapetti
Lattian pintamateriaali: laminaatti
Makuuhuoneiden määrä: 2
Lattian pintamateriaali: laminaatti
Makuuhuoneiden määrä: 2
Varusteet: suihku, kiinteät valaisimet
Seinien pintamateriaali: kaakeli
Lattian pintamateriaali: laatta
Seinien pintamateriaali: kaakeli
Lattian pintamateriaali: laatta
Kodihoitohuone pesutilojen ytehydessä, tilassa wc-istuin
Varusteet: pesukoneliitäntä, pesuallas, pyykkikaapit, pöytätaso
Seinien pintamateriaali: kaakeli
Lattian pintamateriaali: laatta
Varusteet: pesukoneliitäntä, pesuallas, pyykkikaapit, pöytätaso
Seinien pintamateriaali: kaakeli
Lattian pintamateriaali: laatta
Ulkovarasto sisäänkäynnin yhteydessä.
Eteinen, tuulikaappi
eteisessä iso peililiukuovikaapisto
Varusteet: kaapistot, sälekaihtimet/rullaverhot, verhotangot, kiinteät valaisimet
eteisessä iso peililiukuovikaapisto
Varusteet: kaapistot, sälekaihtimet/rullaverhot, verhotangot, kiinteät valaisimet
Katto: Harjakatto
Katon pintamateriaali: Huopakate
Katon pintamateriaali: Huopakate
Taloyhtiö
Asunto Oy Tolpanrivit I
Huoneistokohtaiset varastot
17
Entisten ympärysaitojen purku niiden kunnon mukaan. Uusinta tarpeen mukaan. 2022
Ilmastointikanavien puhdistus ja ilmamäärien säätö 2021
Terassin ovien uusiminen 2018
Postilaatikoiden uusinta 2018
Lämpöjohtoverkoston tasapainotus sekä vanhojen patteriventtiilien vaihto sekä verkoston huuhtelu 2017
Lukituksen uusiminen 2015
Pääsisäänkäynti ovien uusiminen 2015
Vesikatteen huopa, rännit ja syöksytorvet uusittu 2014
Käyttövesiputkiston uusiminen 2011
Ilmastointikanavien puhdistus ja ilmamäärien säätö 2011
Parkkipaikan laajennus 2011
Pihavalaistus uusittu 2007
Lämmönvaihtimen uusiminen 2006
Piha-alueen käyttövesi- ja lämpöputket uusittu 2006
Ilmastointikanavien puhdistus ja ilmamäärien säätö 2021
Terassin ovien uusiminen 2018
Postilaatikoiden uusinta 2018
Lämpöjohtoverkoston tasapainotus sekä vanhojen patteriventtiilien vaihto sekä verkoston huuhtelu 2017
Lukituksen uusiminen 2015
Pääsisäänkäynti ovien uusiminen 2015
Vesikatteen huopa, rännit ja syöksytorvet uusittu 2014
Käyttövesiputkiston uusiminen 2011
Ilmastointikanavien puhdistus ja ilmamäärien säätö 2011
Parkkipaikan laajennus 2011
Pihavalaistus uusittu 2007
Lämmönvaihtimen uusiminen 2006
Piha-alueen käyttövesi- ja lämpöputket uusittu 2006
Hallituksen kunnossapitotarveselvitys:
Piharemontti, asfalttialueiden korjaus, salaojitusjärjestelmä sekä rännivedet suositeltu 2028
Ikkunoiden saneeraus suositeltu 2028
Piharemontti, asfalttialueiden korjaus, salaojitusjärjestelmä sekä rännivedet suositeltu 2028
Ikkunoiden saneeraus suositeltu 2028
Retta Kuusamo, Keijo Multas, 010 228 1200, keijo.multas@retta.fi
Talonmies
Sivutoiminen talonmies, koneelliset piha-ja kiinteistötyöt Mursu
Sivutoiminen talonmies, koneelliset piha-ja kiinteistötyöt Mursu
D2018
Voimassa 27.09.2033 saakka.
8 914 m²
Oma
Asemakaava
Muut lisätiedot
Autopaikat: 17
Autopaikkamaksu: 10 € / kk
Autopaikkamaksu: 10 € / kk












































