Omakotitalo
Upea kartanomainen omakotitalo maalaismaisemassa, vain vartin ajomatkan päässä Rukalta.
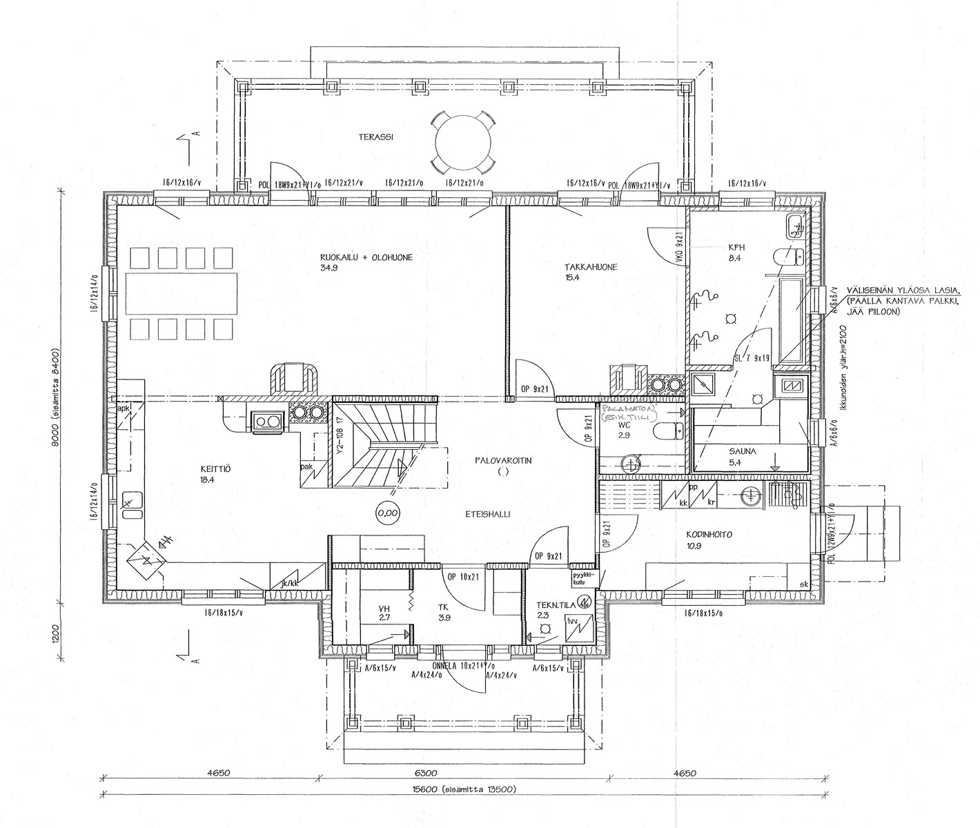
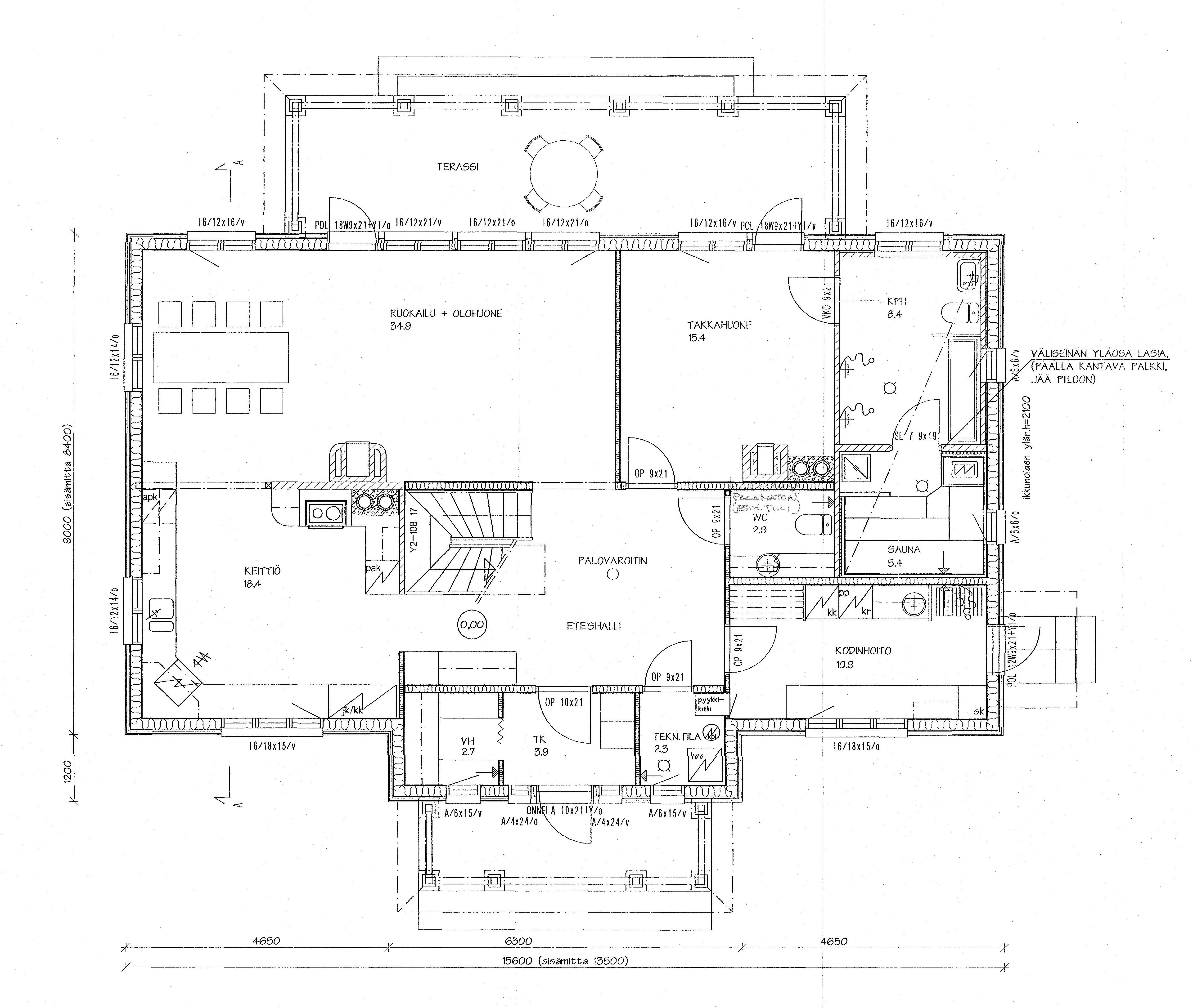
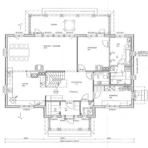
Tässä kauniissa omakotitalossa yhdistyy vanhan ajan tyyli ja modernit mukavuudet. Sisään tullessa astutaan isoon aulaan, josta on luonteva kulku talon eri tiloihin. Tyylikäs ja valoisa keittiö on avara ja toimiva ja sen yhteydessä on saareke, joka tuo lisää säilytystilaa ja tarjoaa mukautuvan tilan arjen askareisiin. Keittiön ikkunoista on upeat näkymät ulos ja samalla tilaan tulee runsaasti luonnonvaloa. Keittiössä liesileivinuuni, joka keittää, paistaa ja lämmittää talven pakkasissa. Alakerrassa myös ruokailutila ja olohuone sekä saunaosasto ja takkahuone. Lasitetulta terassilta huikeat näkymät aina Rukalle asti!
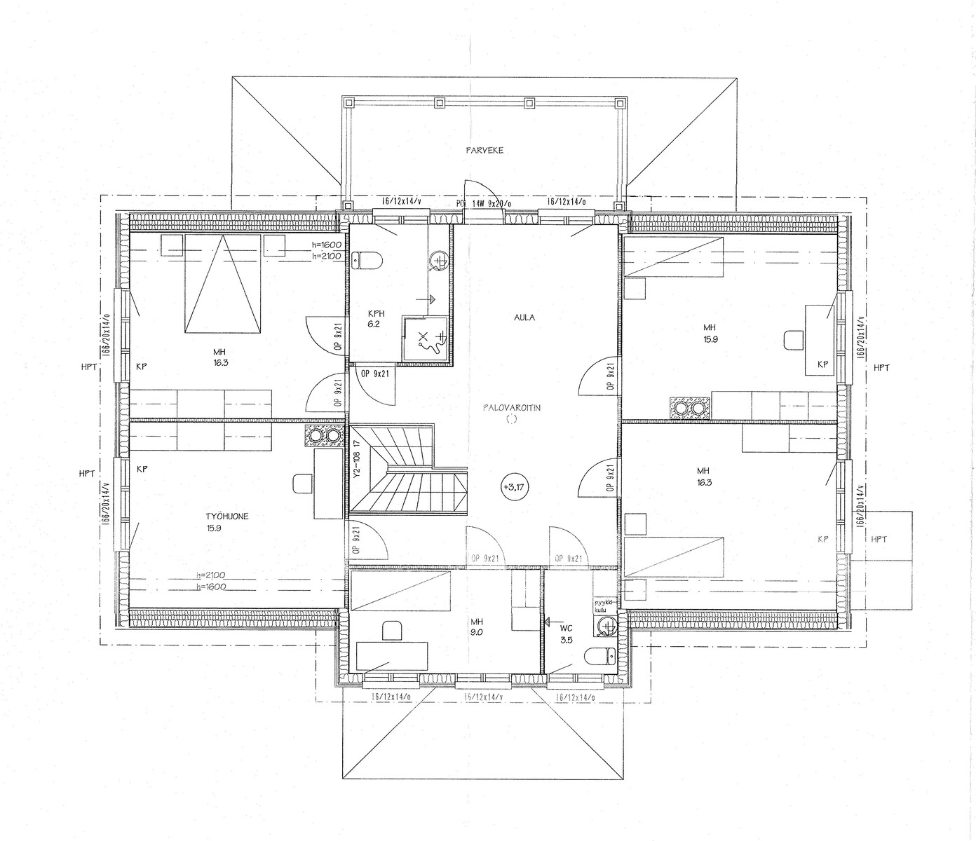
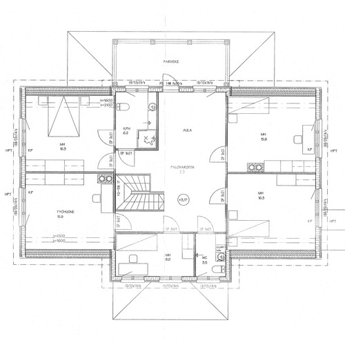
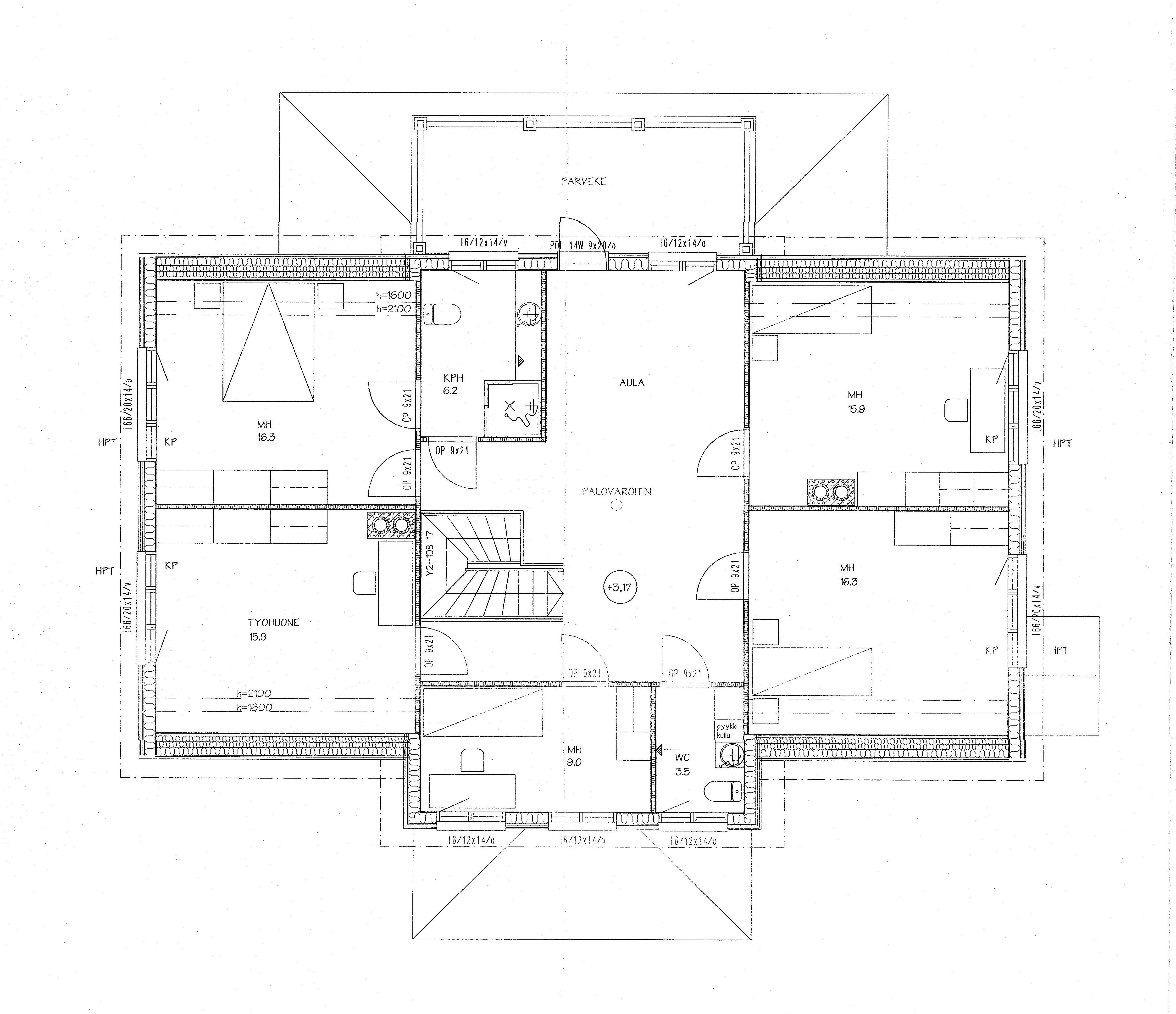
Talon yläkerrassa on viisi tilavaa makuuhuonetta, oma kylpyhuone ja wc, täällä asuu siis mukavasti isompikin perhe.
Sisätiloissa on yhdistetty onnistuneesti lämpimiä sävyjä, tummaa puuta sekä värikkäitä seinäpintoja kokonaisuuden pysyessä hyvin hallittuna ja talon tyyliin sopivana.
Lämmitysmuotona on kustannustehokas maalämpö. Pihalla on lämmin autotalli sekä rakoliiteri.
Rukan alueen läheisyys tuo tullessaan monipuoliset ulkoilu- ja harrastusmahdollisuudet.
Vapautuu uusille omistajille sopimuksen mukaan.
Varaa oma esittelyaikasi ja tule ihastumaan tähän kauniiseen kotiin!

Esittely
Perustiedot
Kuontivaarantie 49 a
93830 Kuontivaara
kerrosala 275,50 m² (148 + 127,50 m²)
Hinta ja kustannukset
Laskettu velattomasta myyntihinnasta.
Lisätiedot
Lämmönjakotapa: vesikiertoinen lattialämmitys, uuni/takka, muu, varaava vesikiertoinen lattialämmitys
Kuusamon Energia- ja vesiosuuskunta
Kuusamon Energia- ja vesiosuuskunta
Asunnon tilat ja materiaalit
Seinien pintamateriaali: kaakeli
Lattian pintamateriaali: laatta
Keittiön tasot: kivi
Liesi: integroitu, muu, erillisuuni
Lattian pintamateriaali: laatta
Lattian pintamateriaali: laminaatti
Makuuhuoneiden määrä: 5
Varusteet: lattialämmitys, wc-istuin, suihku, peili, kiinteät valaisimet
Seinien pintamateriaali: kaakeli
Lattian pintamateriaali: laatta
Varusteet: bidee-suihku
Seinien pintamateriaali: kaakeli
Lattian pintamateriaali: laatta
WC-tilojen määrä: 2
Seinien pintamateriaali: kaakeli
Lattian pintamateriaali: laatta
lasitettu terassi ei luvitettu.
Katon pintamateriaali: Tiilikate
Asunnon tontti
Ruka-Kuusamo Matkailualueen osayleiskaava, Kuontivaaran kyläkaava. A-2, asuntoalue
Muut lisätiedot
Palvelut: Rukan palvelut n. 10 km
Terveyskeskus 25 km,
Citymarket ja Prisma 26 km





















































