Lomaosake
Rukan Juhannuskallion tuntumassa, keskeisellä paikalla kauniissa laaksossa sijaitseva Rukaköngäs huoneisto 33 tarjoaa puitteet helppoon ja viihtyisään lomailuun.
Hiihtoladulle ja kelkkareitille pääsee omasta pihasta. Lähin ravintola on 500 m päässä ja Rukan ydinalueelle vain reilun kilometrin matka. SkiBus pysäkki sijaitsee 200 m etäisyydellä. Omaa autoa et siis välttämättä edes tarvitse.
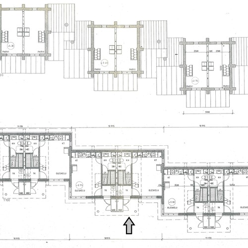
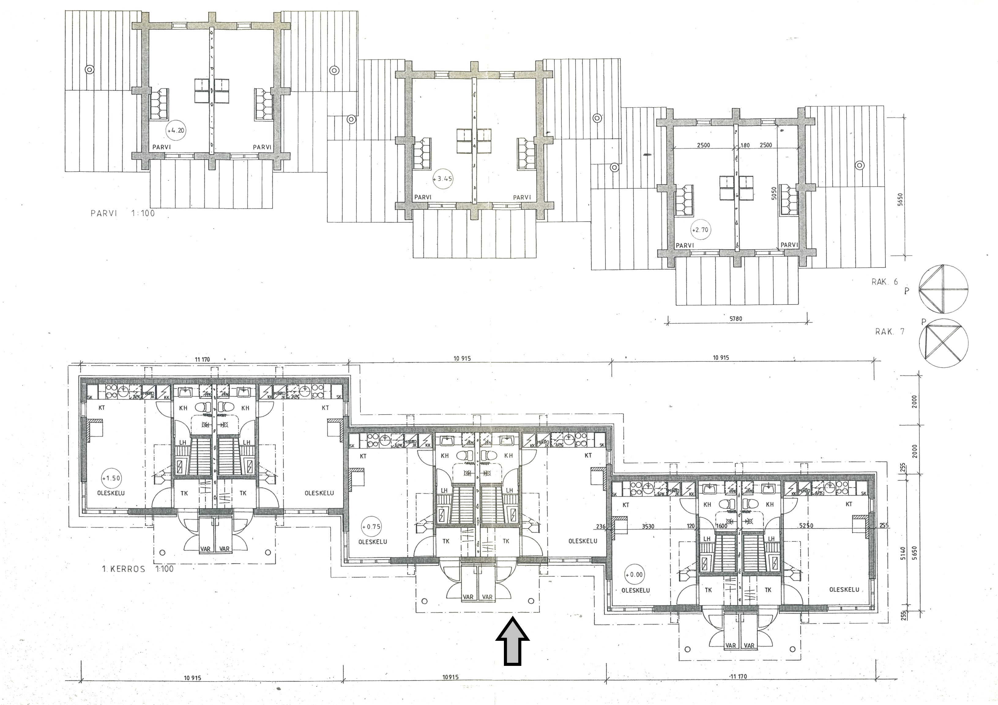
Kompakti, hyvässä kunnossa oleva rivitalohuoneisto on kahdessa kerroksessa, alakerrassa avokeittiö oleskelutilalla ja takalla, kylpyhuone ja oma sauna. Täyskorkea parvi on keloa ja siellä nukkumapaikat 3-4 henkilölle.
Ulkovarasto löytyy huoneiston edustalta ja parkkipaikkakin on lähellä.
Soveltuu erinomaisesti sekä omaan lomailuun että sijoituskäyttöön.
Huoneiston kauppaan sisältyvät kaikki huoneistossa olevat kalusteet ja varusteet.
Huoneisto on lyhytaikaisessa vuokrakäytössä, esittelemme vaihtovälillä lauantaisin klo 13-15, varaa oma esittelysi.
Älä siis aikaile, nopein nappaa tämän huoneiston!

Esittely
Perustiedot
Voimapolku 5
93830 Rukatunturi
Hinta ja kustannukset
Laskettu velattomasta myyntihinnasta.
Hoitovastike 148,20 € / kk
Lisätiedot
Sähkökiuas
Jos osakas aikoo tehdä tai teettää huoneistoremontin, hänen tulee teettää asbestikartoitus purettaviin materiaaleihin.
Uuden lain mukaan ennen vuotta 1994 rakennettujen rakennusten purettavien materiaalien asbesti pitää kartoittaa ennen purkutyötä. Osakas maksaa kartoituksen, ellei yhtiön kanssa muuta sovita.
Asunnon tilat ja materiaalit
Seinien pintamateriaali: maalattu, muu
Lattian pintamateriaali: laminaatti
Keittiön tasot: laminaatti
Liesi: sähköliesi
Lattian pintamateriaali: laminaatti
Seinien pintamateriaali: kaakeli
Lattian pintamateriaali: laatta
Varusteet: sälekaihtimet/rullaverhot, verhotangot, kiinteät valaisimet, lämminvesivaraaja, kuivauskaappi/-rumpu
Katon pintamateriaali: Huopakate
Taloyhtiö
Jätehuollon muuttaminen Kuusamon jätehuoltomääräysten mukaiseksi 2021.
Vesikatteen uusiminen 2026
Parven poistumistien parannus ja ikkunoiden uusinta 2027














