Mökki tai huvila
Monipuolinen kokonaisuus vain vajaan puolen tunnin päässä Kuusamon keskustasta ja Rukalle noin 45 minuutin ajomatka! Täällä mahtuu majoittumaan ja viettämään aikaa isompikin porukka, valmiina on kaikki tarpeellinen nykyaikaisin mukavuuksin. Kokonaisuudessaan väljää yöpymistilaa 8-10 henkilölle ja tiiviimmin 12-15 hengelle.
Alkuperäistä kelomökkiä vuodelta 1978 on laajennettu (1996) ja se tarjoaa makuusijat 2-4 henkilölle, tuvan ja keittiön, sisävessan ja suihkun. 2003 valmistuneessa saunamökistä löytyy keittiö, tupa, vessa, suihku ja sauna, parvella on hyvänkokoinen makuutila. Lisää makuupaikkoja löytyy erillisestä Kuusamo Hirsitalojen pariaitasta. Kelohirsinen grillipaviljonki soveltuu hyvin illanistujaisiin ja rannasta löytyy vielä tunnelmallinen rantasauna. Päämökit ovat hyvin varusteltuja
3,5 hehtaarin mäntykangas tontti tarjoaa oman rauhan ja niemenkärjessä oleva ranta on kuin luotu uimiselle; matala ja hiekkapohjainen. Puhdas ja kirkasvetinen Pikku-pöyliö tarjoaa erinomaiset kalastuspuitteet, muun muassa siikaa. Myös marjastus ja sienestys onnistuvat tässä lomakohteessa. Alueella ei ole tehty hakkuita ja kuivassa kangasmaastossa vähänlaisesti itikoita.
Kokonaisuus sisältää:
1. Saunamökki " Mammula" 39,50 k-m², v. 2003.
2. Grillipaviljonki 11 k-m², v. 2000, Kelomestarit Oy, kelohirsi 170 mm, betonipilarit, ikkunoissa liukulasit. Kivitasot ja tulisija.
3. Pariaitta 24 k-m ², v. 2013. Kuusamo Hirsitalot-mallistoa. Pariaitan terassi rakennettu v. 2015.
4. Pieni rantasauna 8,50 k-m ², 1985. Perustukset korjattu v. 2015 ja rakennettu uusi laituri.
5. Kelomökki 53 k-m² 1978, laajennus 1996.
6. Aitta/varasto ja puucee 19 k-m², v. 1982
Esitteen liitteissä kaikkien rakennuksien piirustukset ja lupa-asiakirjat!
Loistava lomakohde ympärivuotiseen käyttöön!
Tämän loma-asuntokokonaisuuden parhaat puolet ovat oma ranta, rantasauna, rauhallisuus ja luonto!

Esittely
Perustiedot
Pöyliöntie 15
93800 Kuusamo
Kelohonkaisen loma-asunnon alkuperäinen pinta-ala 37 k-m², laajennettu 1996, uusi pinta-ala 53 k-m².
1. Aitta/varasto ja puucee 19 k-m², 1982
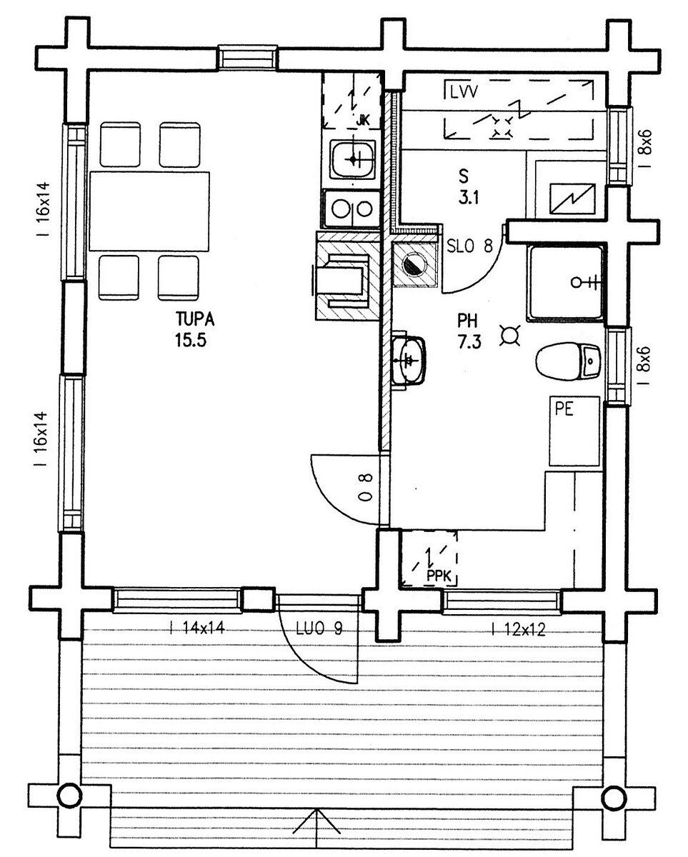
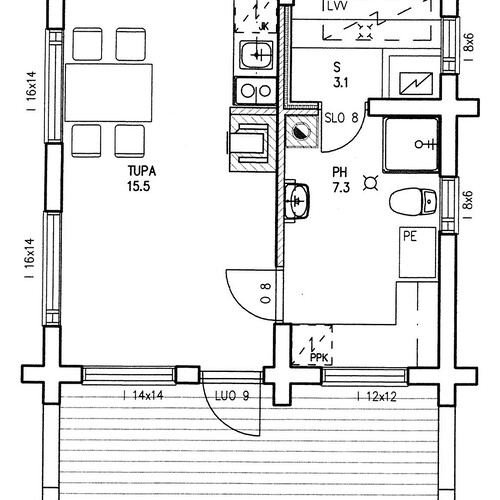
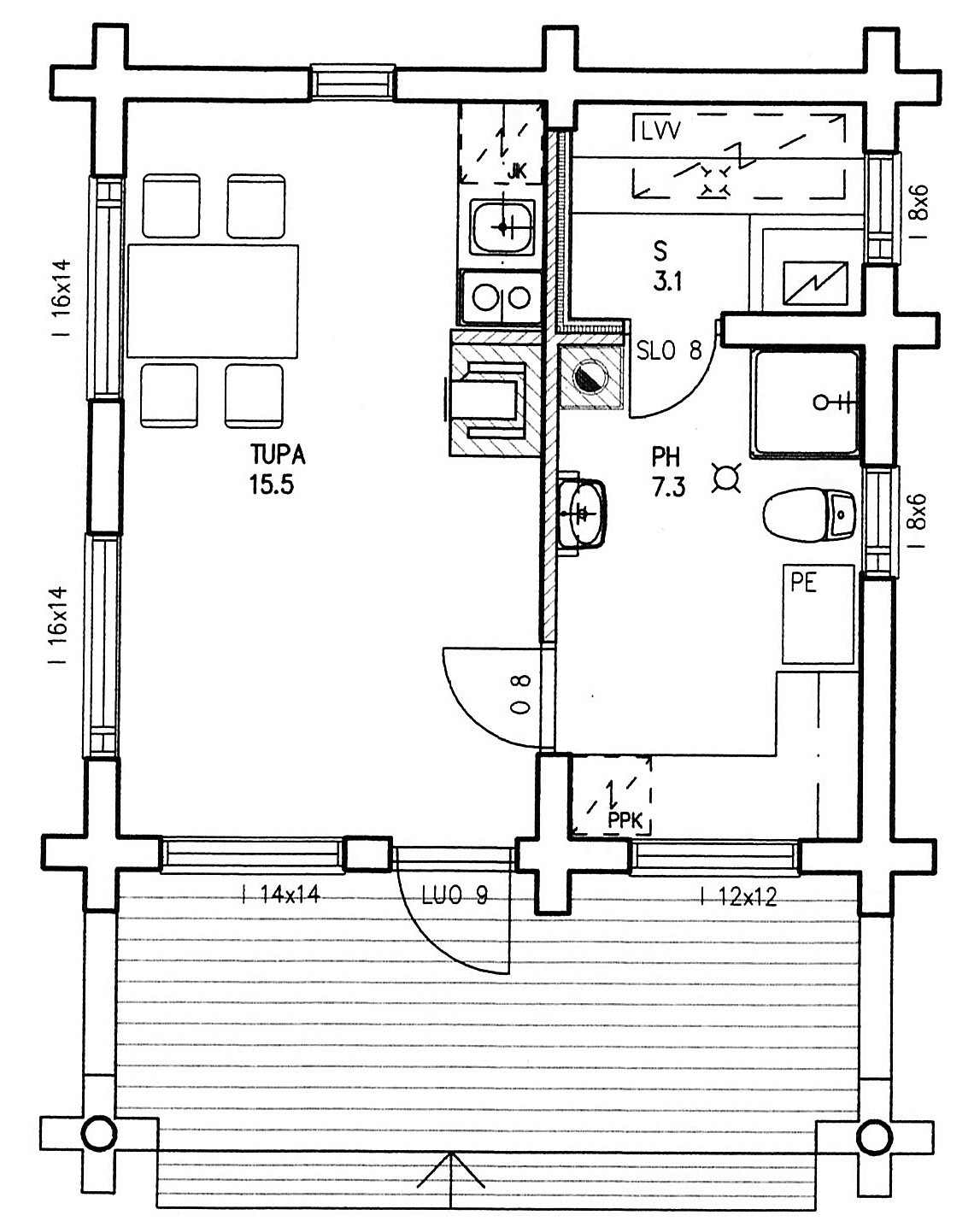
2. Saunamökki " Mammula" 32,50 k-m², 2003.
3. Grillipaviljonki 11 k-m², 2000,
4. Pariaitta 24 k-m ², 2013.
5. Pieni rantasauna 8,50 k-m ², 1985.
Hinta ja kustannukset
Laskettu velattomasta myyntihinnasta.
Lisätiedot
- uusi takka v. 1989
- laajennus v. 1998: wc, suihku, lämminvesivaraaja, pesukoneet, terassin uusiminen ja laajennus, uudet ovet ja etuikkuna, lattialämmitys uusiin tiloihin, kaivo saunarantaan
- kattorakenteet ja eristys uusittu 1998
- lattia uusittu v. 2002
- saunasta keittiö sekä keittiöstä ruokailutila v. 1985
- sähkötaulun muutokset (3x35A), uusi kaapeli Tuta S 30 (lämpö päälle tekstiviestillä) v. 2015
- terassin kaide (keloa) v. 2020
Lämmönjakotapa: sähköpatterilämmitys, sähköinen lattialämmitys
hyvä.
Porakaivo v. 2003. Alue on pohjavesialuetta ja vedenlaatu erinomainen.
Rantasaunaan pumpulla järvivesi (rannassa olevan kaivon kautta).
alkuperäisen päämökin jätesäiliö 3 m³ + 8 m³, 2000-luvulla rakennetun loma-asunnon jätesäiliö 10 m³. Umpisäiliössä täyttymishälytin. Lainvoimainen.
Painovoimainen. Koneellinen poisto keittiöstä, kylpyhuoneesta ja kuivauskaapista.
Asunnon tilat ja materiaalit
Pintamateriaalit: Lautalattia, wc-kodinhoitotilassa laattalattia.
Seinien pintamateriaali: puu, osalaatoitus
Lattian pintamateriaali: lauta
Keittiön tasot: laminaatti
Liesi: sähköliesi
Lattian pintamateriaali: lauta
Seinien pintamateriaali: puu
Lattian pintamateriaali: lauta
Makuuhuoneiden määrä: 1
Seinien pintamateriaali: puu
Lattian pintamateriaali: laatta
Katon pintamateriaali: Palahuopa
Katot tuppeensahattua kelolautaa.
Katon kunto: Hyvä
Asunnon tontti
Alue on luonnontilassa ja ranta upea.
Matala hiekkaranta.
Laiturit.
MU-1 Maa-ja metsätalousvaltainen alue, jolla on erityistä ulkoilun ohjaamistarvetta tai ympäristöarvoja.
2. Saunamökki " Mammula" 39,50 k-m² + parvi 4:lle henkilölle, v. 2003.
3. Grillipaviljonki 11 k-m², v. 2000, Kelomestarit Oy, kelohirsi 170 mm, betonipilarit, ikkunoissa liukulasit. Kivitasot ja tulisija.
4. Pariaitta 24 k-m ², v. 2013. Kuusamo Hirsitalot-mallistoa. Pariaitan terassi rakennettu v. 2015.
5. Pieni rantasauna 8,50 k-m ², 1985. Perustukset korjattu v. 2015 ja rakennettu uusi laituri.
Esitteen liitteissä kaikkien rakennuksien piirustukset ja lupa-asiakirjat!
Muut lisätiedot
Loma-asunnon lähellä erinomaiset marjamaat ( hilla, mustikka, puolukka).


































































































