Mökki tai huvila
Äijänlammintie 4, Rukatunturi, Ruka, Äijänlampi
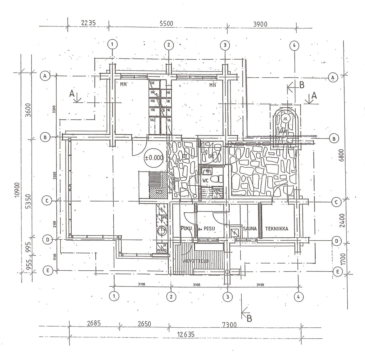
3 h, k, s + parvi, 70 m²
149 000 €
Pyhävaaran juurella Äijanlammin alueella kiinteistöosakeyhtiön 70 m² kelohonkainen erillismökki rinteessä kauniissa metsämaisemassa.
Erillismökin oleskelutilat korkeaa avaraa huonetilaa, jonka isoista ikkunoista avautuu upea luonto. Mökissä kaksi makuuhuonetta, joissa molemmissa runsaasti kaappitilaa.
Viihtyisät saunatilat ja pukuhuone, josta käynti vilvoitteluparvekkeelle.
Pihalla oma kahden kelkan kelkkakatos.
Rukan palvelut 6 km päässä.
Kohde on lyhytaikaisessa vuokrauksessa (Airbnb), esittelemme vuokrauksien välissä.
Tervetuloa tutustumaan tähän loma-asuntoon, jossa luonto ja rauha ovat läsnä!

Esittely
Kohteen seuraavaa esittelyajankohtaa ei ole tiedossa
Perustiedot
1395436
21764832
Rukatunturi, Ruka, Äijänlampi
Äijänlammintie 4
93830 Rukatunturi
Äijänlammintie 4
93830 Rukatunturi
Mökki tai huvila
Ei
Omistusasunto
3h, k, s + parvi
3
70 m²
70 m²
Yhtiöjärjestyksen mukainen, isännöitsijäntodistuksen mukainen
1/1
1989
1989
Sopimuksen mukaan
Hinta ja kustannukset
149 000 €
149 000 €
2 128,57 € / m²
Laskettu velattomasta myyntihinnasta.
Laskettu velattomasta myyntihinnasta.
158,17 € / kk
Hoitovastike 158,17 € / kk
Hoitovastike 158,17 € / kk
Lisätiedot
Ei
Asunnossa on sauna
SähkökiuasSaunan lauteet ja kiuas uusittu 2017.
SähkökiuasSaunan lauteet ja kiuas uusittu 2017.
Hyvä
Lattioiden hionta ja lakkaus 2016.
Saunan lauteiden ja kiukaan vaihto 2017.
Parvi rakennettu 1997.
Kattoremontti 2015 (huopa ja lisäeristys).
Saunan lauteiden ja kiukaan vaihto 2017.
Parvi rakennettu 1997.
Kattoremontti 2015 (huopa ja lisäeristys).
Ei tiedossa
Jos osakas aikoo tehdä tai teettää huoneistoremontin, hänen tulee teettää asbestikartoitus purettaviin materiaaleihin.
Uuden lain mukaan ennen vuotta 1994 rakennettujen rakennusten purettavien materiaalien asbesti pitää kartoittaa ennen purkutyötä. Osakas maksaa kartoituksen, ellei yhtiön kanssa muuta sovita.
Jos osakas aikoo tehdä tai teettää huoneistoremontin, hänen tulee teettää asbestikartoitus purettaviin materiaaleihin.
Uuden lain mukaan ennen vuotta 1994 rakennettujen rakennusten purettavien materiaalien asbesti pitää kartoittaa ennen purkutyötä. Osakas maksaa kartoituksen, ellei yhtiön kanssa muuta sovita.
Sähkö, muu, vesikeskuslämmitys, ilmanvaihto painovoimainen, koneellinen poisto
Antenni
Asunnon tilat ja materiaalit
Pääasiallinen rakennusmateriaali: Puu, muu
Jenkkikaappi, mikro ja astianpesukone uusittu. Asennettu ilmalämpöpumppu.
Varusteet: liesituuletin, mikroaaltouuni, astianpesukone, kiinteät valaisimet
Seinien pintamateriaali: kaakeli, maalattu, puu
Lattian pintamateriaali: lauta
Keittiön tasot: laminaatti
Liesi: keraaminen, erillisuuni
Varusteet: liesituuletin, mikroaaltouuni, astianpesukone, kiinteät valaisimet
Seinien pintamateriaali: kaakeli, maalattu, puu
Lattian pintamateriaali: lauta
Keittiön tasot: laminaatti
Liesi: keraaminen, erillisuuni
Seinien pintamateriaali: maalattu, puu
Lattian pintamateriaali: lauta
Lattian pintamateriaali: lauta
Paljon kaappitilaa.
Seinien pintamateriaali: puu
Lattian pintamateriaali: lauta
Makuuhuoneiden määrä: 2
Seinien pintamateriaali: puu
Lattian pintamateriaali: lauta
Makuuhuoneiden määrä: 2
Varusteet: suihku
Seinien pintamateriaali: kaakeli, puu
Lattian pintamateriaali: laatta
Seinien pintamateriaali: kaakeli, puu
Lattian pintamateriaali: laatta
Varusteet: pesukone, pesukoneliitäntä, peilikaappi, bidee-suihku
Seinien pintamateriaali: kaakeli, puu
Lattian pintamateriaali: laatta
WC-tilojen määrä: 1
Seinien pintamateriaali: kaakeli, puu
Lattian pintamateriaali: laatta
WC-tilojen määrä: 1
Puuliiteri ja lämmönjakohuone.
Parvi rakennettu 1997, parvella hätäpoistumistie.
Parvi rakennettu 1997, parvella hätäpoistumistie.
Eteinen, tuulikaappi, terassi, parvi
Eteinen luonnonkivilattia.
Pukuhuone, josta käynti vilvoitteluterassille.
Varusteet: kaapistot
Eteinen luonnonkivilattia.
Pukuhuone, josta käynti vilvoitteluterassille.
Varusteet: kaapistot
Katto: Harjakatto
Katon pintamateriaali: Huopakate
Katon pintamateriaali: Huopakate
Taloyhtiö
Keskinäinen Kiinteistöosakeyhtiö Rukan Pyhäjärvenrinne
10
Mökille kuuluu oma puuliiteri / varasto ja tekninen tila sekä kelkkakatos.
Kunnossapitotarveselvityksen mukaisesti:
Jätekatoksen rakentaminen 2023
Lämminvesi-/lämmitysvaraajan uusiminen, maja 8 2018
Kattoremontti ja lautajulkisivujen maalaus 2015
Lämminvesi-/lämmitysvaraajan uusiminen, maja 3 2013
Lämminvesi-/lämmitysvaraajan uusiminen, majat 2 ja 9 2012
Lämminvesi-/lämmitysvaraajan uusiminen, majat 1 ja 10 2011
Lämminvesi-/lämmitysvaraajan uusiminen, maja 7 2010
Lämminvesi-/lämmitysvaraajan uusiminen, majat 4, 5 ja 6 2009
Jätekatoksen rakentaminen 2023
Lämminvesi-/lämmitysvaraajan uusiminen, maja 8 2018
Kattoremontti ja lautajulkisivujen maalaus 2015
Lämminvesi-/lämmitysvaraajan uusiminen, maja 3 2013
Lämminvesi-/lämmitysvaraajan uusiminen, majat 2 ja 9 2012
Lämminvesi-/lämmitysvaraajan uusiminen, majat 1 ja 10 2011
Lämminvesi-/lämmitysvaraajan uusiminen, maja 7 2010
Lämminvesi-/lämmitysvaraajan uusiminen, majat 4, 5 ja 6 2009
Retta Kuusamo, Marko Kilpivaara, 010 228 1200, marko.kilpivaara@retta.fi
Huoltoyhtiö
Työkone Määttä Oy.
Työkone Määttä Oy.
Kohteelle ei lain mukaan tarvita energiatodistusta.
1,65 ha
Oma
Asemakaava
Muut lisätiedot
Ulkoautopaikka, sähköpistoke
Autopaikat: 10
Huoneistolla on moottorikelkkavarasto kahdelle kelkalle.
Autopaikat: 10
Huoneistolla on moottorikelkkavarasto kahdelle kelkalle.
Isoista ikkunoista kauniiseen metsämaisemaan.
Palvelut: Kuusamo 22 km
Kauppa n. 5 km
Rukan hiihtohissit 6,50 km
Kauppa n. 5 km
Rukan hiihtohissit 6,50 km
Myydään kalusteineen ja varusteineen.































