Skip to main content

Mökki tai huvila

Saarua-ahontie 14, Rukatunturi, Ruka Rukatunturi, Saarua-aho
4 mh, oh, k, kh, khh, s + autokatos/varasto, 97,50 m²
392 000 €
  • Pohjakuva alakerta
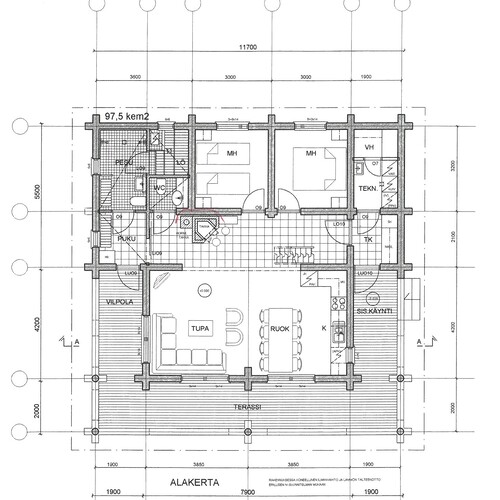
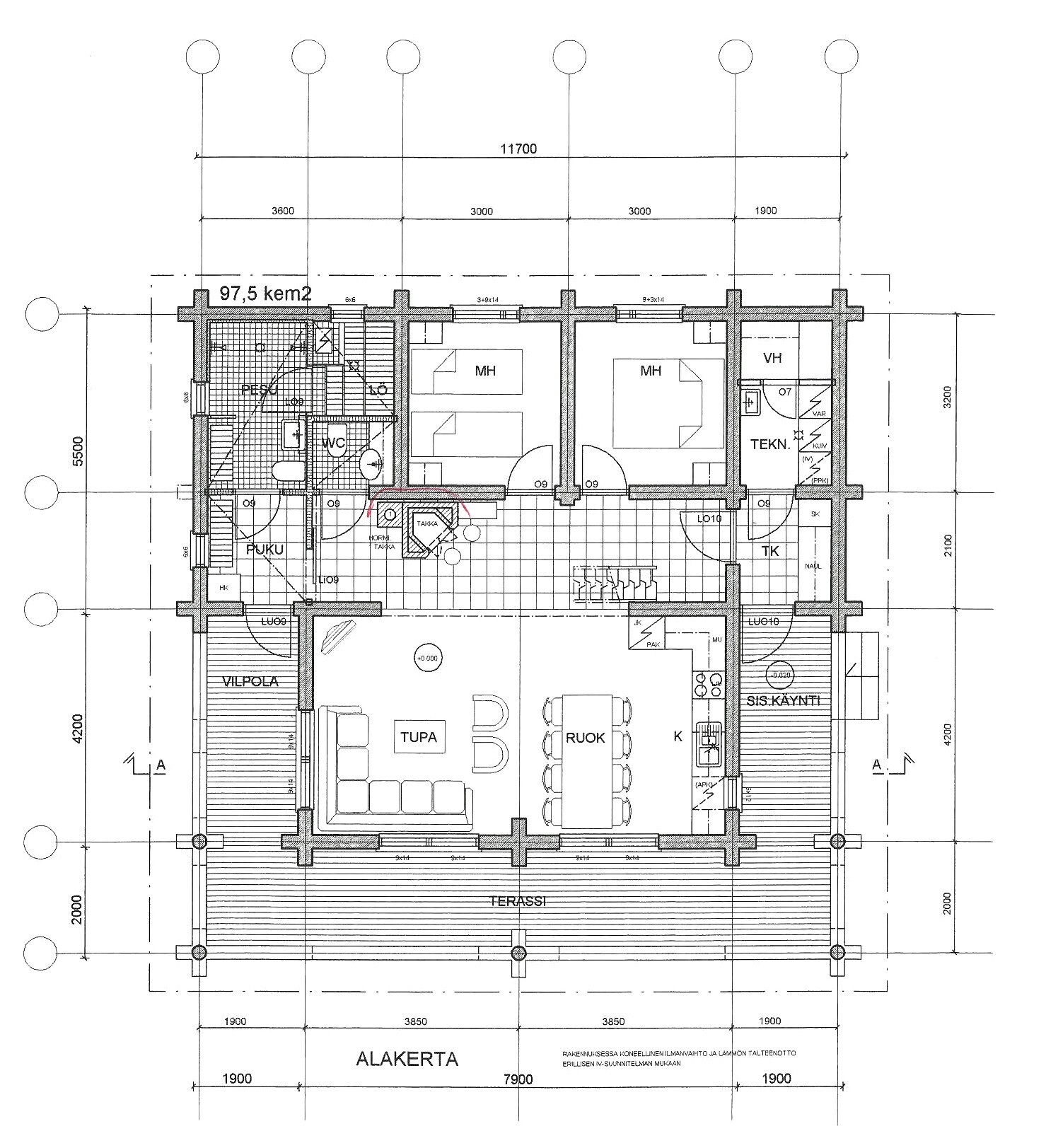
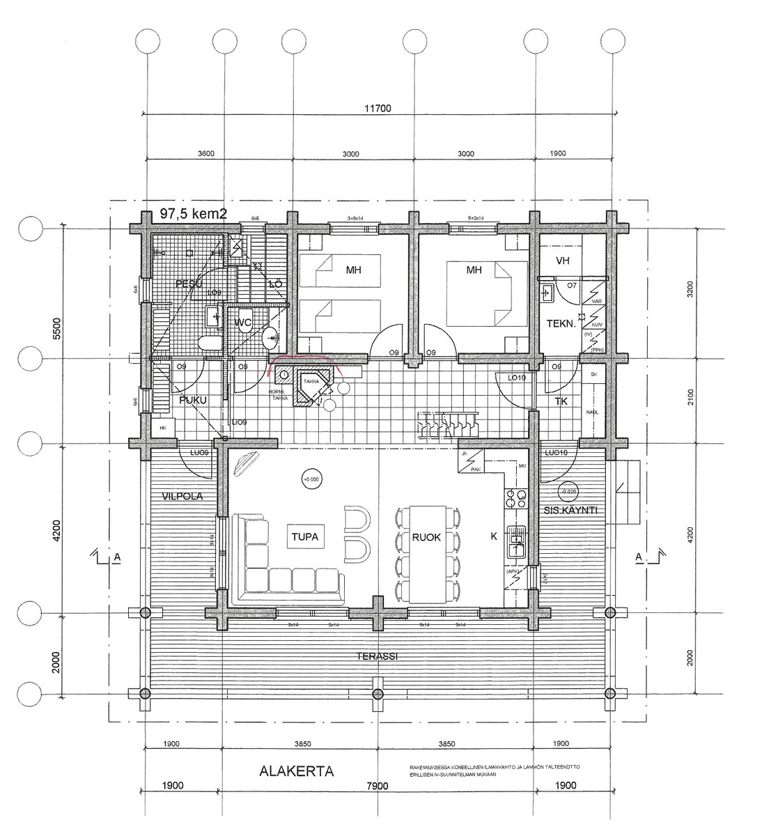
    Pohjakuva alakerta
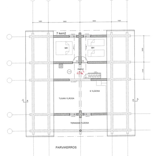
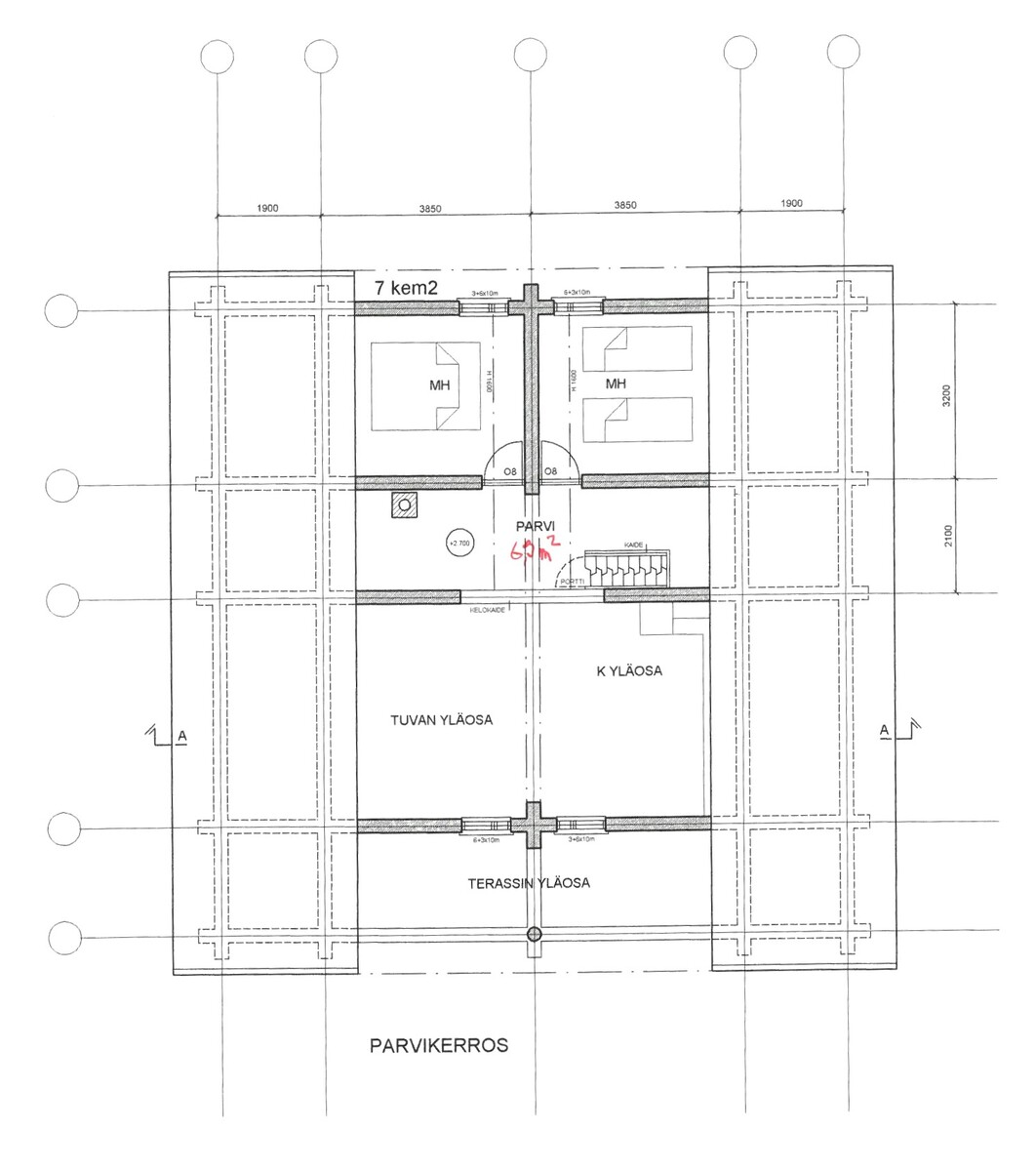
  • Pohjakuva parvi
    Pohjakuva parvi
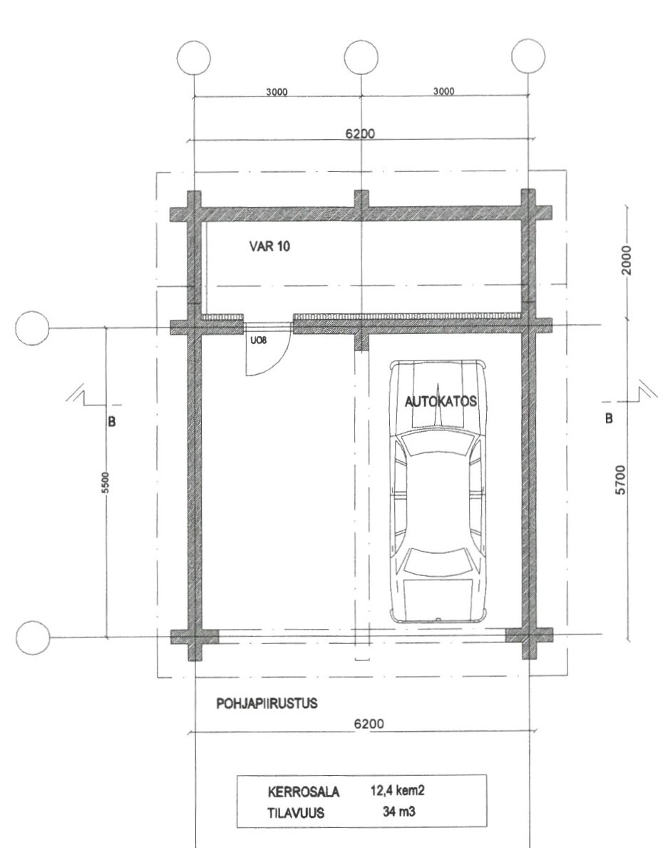
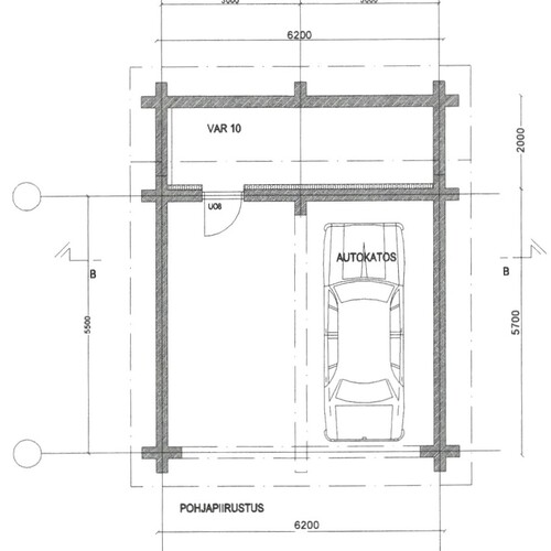
  • pohjakuva alakerta
  • pohjakuva parvi

Jyhkeästä kelosta rakennettu 104,50 kem² loma-asunto Saarua-ahon rinteellä hulppeilla maisemilla!

v. 2007 valmistuneen huvilan alakerrassa on kaksi makuuhuonetta, tupa ja hyvin varusteltu keittiö. Ison ruokapöydän ääreen mahtuu nautiskelemaan suurempikin seurue. Lisäksi alakerrassa pesu- ja saunatilat sekä kodinhoitotila. Ajattomat ja laadukkaat materiaalit kestävät pitkälle tulevaisuuteen.

Tilavalla parvella aulatilaa sekä kaksi erillistä makuuhuonetta, joissa molemmissa petipaikat kahdelle.
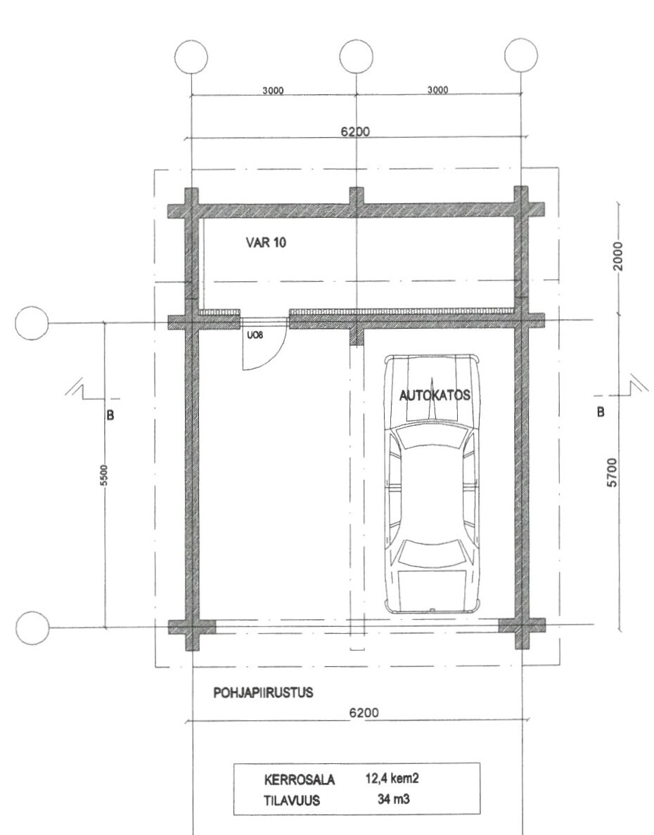
Autokatoksen yhteydessä lämmin varastotila 12 m². Ladut ja rinteet löytyvät aivan vierestä.

Saaruan alueen palvelut ovat muutaman minuutin kävelymatkan etäisyydellä joten et välttämättä tarvitse edes autoa. Alueen vetovoima on kasvussa meneillään olevien kehitysinvestointien vuoksi https://www.kaleva.fi/rukan-toisen-keskuksen-ensimmainen-uusi-rakennus-v/11802447

Tässä omistajaperheen omassa käytössä olleessa lomakodissa yhdistyy viehättävällä tavalla pohjoisen luonto ja kelon kauniit sävyt ripauksella mausteisia sävyjä. Talvelle 2025-2026 on sovittu vuokraamisesta paikallisen toimijan kanssa, joka hankkii vuokralaiset ja huolehtii mökin vuokrauksen. Huoletonta ja helppoa! Vuokratulot omistajan vaihdoksen jälkeen uudelle omistajalle.

Soita ja sovi oma esittely!

Esittely

Kohteen seuraavaa esittelyajankohtaa ei ole tiedossa
Kiinnostuitko kohteesta? Ota yhteyttä!
Etunimi *
Sukunimi *
Puhelin *
Sähköposti *

Perustiedot

1403019
21775810
Rukatunturi, Ruka Rukatunturi, Saarua-aho
Saarua-ahontie 14
93830 Rukatunturi
Mökki tai huvila
Ei
Omistusasunto
4mh, oh, k, kh, khh, s + autokatos/varasto
97,50 m²
7 m²
104,50 m²
Pinta-ala ilmoitettu kerrosalana
alakerta 97,50 kem²
parvikerros 7,00 kem²
1/1
2007
2007
Sopimuksen mukaan

Hinta ja kustannukset

392 000 €
392 000 €
4 020,51 € / m²
Laskettu velattomasta myyntihinnasta.
960 € / v

Lisätiedot

Asunnossa on sauna

Sähkökiuasikkuna
Varaava luonnonkivitakka
Hyvä
Kohteelle ei lain mukaan tarvita energiatodistusta.
Sähkö
Lämmönjakotapa: sähköinen lattialämmitys, uuni/takka, muu, yläkerrassa sähköpatterit
Teräsbetonilaatta
Vesiosuuskunta
Kuusamon Energia- ja vesiosuuskunta
Vesiosuuskunta
Kuusamon Energia- ja vesiosuuskunta
Koneellinen tulo, koneellinen poisto, lämmön talteenotto
Antenni

Asunnon tilat ja materiaalit

Pääasiallinen rakennusmateriaali: Puu, muu
Varusteet: liesituuletin, mikroaaltouuni, astianpesukone, kiinteät valaisimet
Seinien pintamateriaali: puu
Lattian pintamateriaali: laatta
Keittiön tasot: kivi
Liesi: sähköliesi
Oleskelutiloissa luonnonkivistä rakennettu varaava takka. Avaraa ja valoisaa, täyskorkeaa tilaa.
Seinien pintamateriaali: puu
Lattian pintamateriaali: laatta
Alakerrassa 2 makuuhuonetta, yläkerrassa 2 makuuhuonetta ja aulatilaa (osittain matalaa tilaa alle 1600 mm)
Seinien pintamateriaali: puu
Lattian pintamateriaali: laminaatti
Makuuhuoneiden määrä: 4
Pesuhuoneen yhteydessä pukuhuone, josta kulku katetulle terassille/vilpolaan.
Varusteet: wc-istuin, suihku, peili, kiinteät valaisimet
Seinien pintamateriaali: kaakeli, puu
Lattian pintamateriaali: laatta
Toinen wc-istuin pesuhuoneessa.
Varusteet: bidee-suihku
Seinien pintamateriaali: kaakeli, puu
Lattian pintamateriaali: laatta
WC-tilojen määrä: 1
Tuulikaapista kulku kodinhoitotilaan/tekniseen tilaan jossa pyykkihuolto, pesuallas sekä tilava vaatehuone.
Varusteet: pesukone, kuivauskaappi, pesuallas, lattiakaivo
Seinien pintamateriaali: puu
Lattian pintamateriaali: laatta
Kahden auton autokatoksen yhteydessä lämmin varasto. Lisäksi kuistin alla varastotilaa esim. polttopuita varten.
Eteinen, tuulikaappi, terassi
Eteisessä laattalattia.
Varusteet: sälekaihtimet/rullaverhot, naulakko, kiinteät valaisimet, lämminvesivaraaja, hälytys- /valvontajärjestelmä, jätesäiliö, pyykinpesukone
Katto: Harjakatto
Katon pintamateriaali: Huopakate

Asunnon tontti

305-416-26-93
719 m²
Rinnetontti
Maisemaltaan etelään aukeava rinnetontti, josta näkymät Vuosselin rinteille. Rauhallinen sijainti Vuosselin arvoalueella.
Oma
Ei rantaa
Kiinteistö myydään lainoittamattomana. Panttikirja siirretään ostajalle lainoittamattomana kauppahinnan maksua vastaan.
Lu 3/4, tontin rakennusoikeus on käytetty.
Asemakaava
Rukan asemakaava RA Loma-asuntojen korttelialue
Autokatos/ lämmin varasto 12 kem², loppukatselmus 20.11.2007.
Kyllä

Muut lisätiedot

Kuusamon Energia- ja vesiosuuskunnan liittymät
Myydään kalusteineen ja varusteineen.