Rivitalo
Sumpputie 4, Kuusamo, Välialue
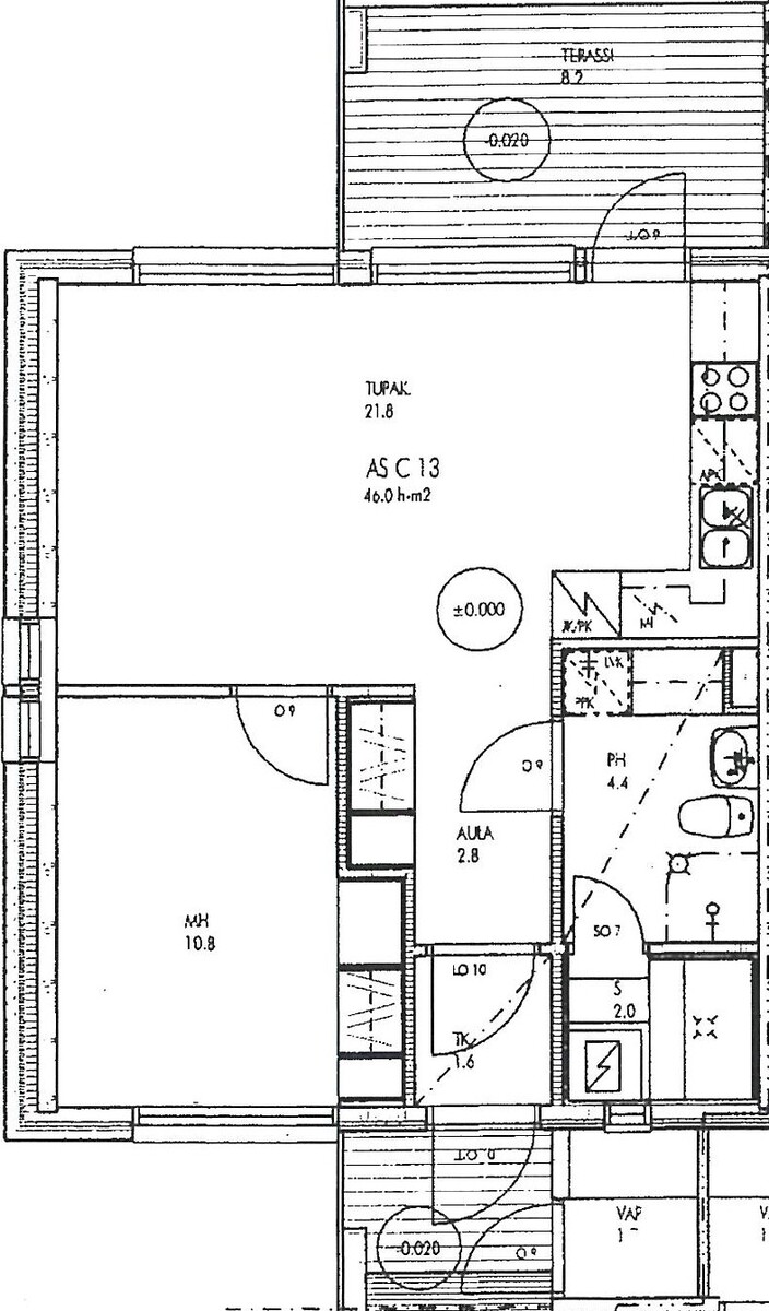
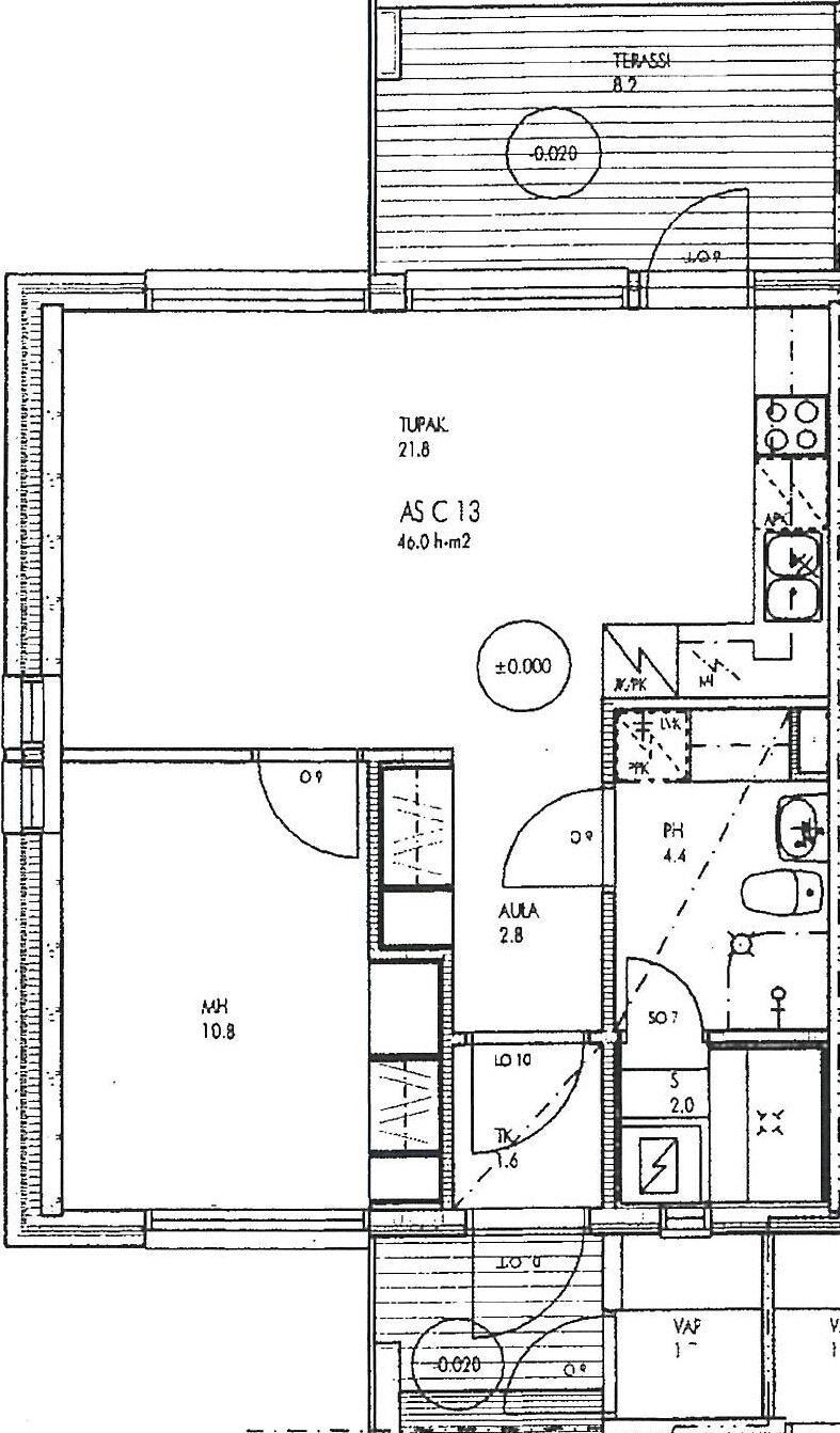
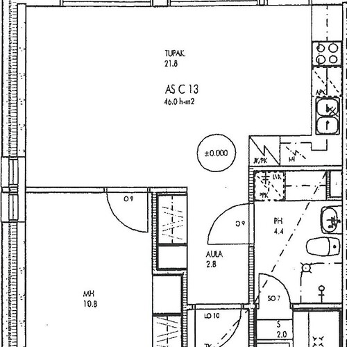
2 h+k+s, 46 m²
95 000 €
Keskustan läheisyydessä Välialueella sijaitseva hyväkuntoinen ja viihtyisä hyvin pidetty kaksio ensimmäisessä kerroksessa. Huoneistolla iso, aidattu piha-alue terassilla ja huoneistolle kuuluu autokatospaikka.
Kylpyhuone ja saunatilat remontoitu ja uudelleen kalustettu. Tupakeittiö avara ja valoisa, runsaasti ikkunoita sälekaihtimilla. Makuuhuoneessa reilusti tilaa vaikka etätyöskentelyyn. Eteisessä myöskin runsaasti kaappitilaa.
Hyvin hoidettu taloyhtiö ja rauhallinen asuinalue kävelymatkan päässä palveluista, keskiasteen koulutkin lyhyen matkan päässä. Tämä tyylikäs, asuinkuluiltaan edullinen asunto soveltuu hyvin pariskunnalle tai ensiasunnoksi nuorelle.
Kohde myydään vuokrattuna.
Ota yhteyttä ja sovi oma esittelyaikasi!

Esittely
Kohteen seuraavaa esittelyajankohtaa ei ole tiedossa
Perustiedot
1398258
21960562
Kuusamo, Välialue
Sumpputie 4
93600 Kuusamo
Sumpputie 4
93600 Kuusamo
Rivitalo
Ei
Omistusasunto
2h+k+s
2
46 m²
46 m²
Yhtiöjärjestyksen mukainen, isännöitsijäntodistuksen mukainen
1/2
2006
2006
Muu ehto
Hinta ja kustannukset
95 000 €
95 000 €
2 065,22 € / m²
Laskettu velattomasta myyntihinnasta.
Laskettu velattomasta myyntihinnasta.
700 € / kk
193,20 € / kk
Hoitovastike 193,20 € / kk
Hoitovastike 193,20 € / kk
20 € henkilöluvun mukaan
Autopaikkamaksu: 5 € / kk
Lisätiedot
Ei
Asunnossa on sauna
SähkökiuasTunnelmallinen sauna, josta ikkuna varastotilaan.
SähkökiuasTunnelmallinen sauna, josta ikkuna varastotilaan.
Hyvä
Kaukolämpö, muu, vesikeskuslämmitys
Kaapeli-tv
Asunnon tilat ja materiaalit
Pääasiallinen rakennusmateriaali: Puu, tiili
Varusteet: liesituuletin, astianpesukone, kiinteät valaisimet
Seinien pintamateriaali: kaakeli, maalattu
Lattian pintamateriaali: parketti
Keittiön tasot: laminaatti, metalli
Liesi: keraaminen
Seinien pintamateriaali: kaakeli, maalattu
Lattian pintamateriaali: parketti
Keittiön tasot: laminaatti, metalli
Liesi: keraaminen
Seinien pintamateriaali: maalattu
Lattian pintamateriaali: parketti
Lattian pintamateriaali: parketti
Seinien pintamateriaali: maalattu, tapetti
Lattian pintamateriaali: laminaatti
Makuuhuoneiden määrä: 1
Lattian pintamateriaali: laminaatti
Makuuhuoneiden määrä: 1
Pesuhuone- ja sauna remontti 2010.
Varusteet: suihkuseinä, pesukone, pesukoneliitäntä, lattialämmitys, wc-istuin, peilikaappi
Seinien pintamateriaali: kaakeli
Lattian pintamateriaali: laatta
Varusteet: suihkuseinä, pesukone, pesukoneliitäntä, lattialämmitys, wc-istuin, peilikaappi
Seinien pintamateriaali: kaakeli
Lattian pintamateriaali: laatta
Pesuhuoneen yhteydessä kaapistoja ja taso pyykin viikkaukseen.
Lämmin varastotila taloyhtiön yhteisissä tiloissa.
Eteinen, tuulikaappi, terassi
kylmävarasto sisäänkäynnin yhteydessä, lisäksi taloyhtiön lämmin varasto.
Varusteet: kaapistot, sälekaihtimet/rullaverhot, verhotangot, kiinteät valaisimet, huoneistokohtainen ilmanvaihtokone, pyykinpesukone
kylmävarasto sisäänkäynnin yhteydessä, lisäksi taloyhtiön lämmin varasto.
Varusteet: kaapistot, sälekaihtimet/rullaverhot, verhotangot, kiinteät valaisimet, huoneistokohtainen ilmanvaihtokone, pyykinpesukone
Katto: Harjakatto
Katon pintamateriaali: Huopakate
Katon pintamateriaali: Huopakate
Taloyhtiö
Asunto Oy Kuuusamon Kotipuisto
Urheiluvälinevarasto, väestönsuoja, kaapeli-tv, huoneistokohtaiset varastot
20
Rännivesien poisjohtaminen loiskekouruilla.
Huoltotie kyltit ja pysäköinti kielletty.
Puiden kaatoa.
Väliaitojen ym. maalauksia.
2017 Iv-kanavien nuohous ja säätö, rima-aitojen kunnostaminen ja pintakäsittely, rakennusten ulkopuolisten puuosien maalauksen loppuunsaattaminen.
2021 Pihan leikkipaikkojen kunnostus. Pihan muotoilu ja nurmetus.
2022 Väestönsuoja tarkastettu.
Huoltotie kyltit ja pysäköinti kielletty.
Puiden kaatoa.
Väliaitojen ym. maalauksia.
2017 Iv-kanavien nuohous ja säätö, rima-aitojen kunnostaminen ja pintakäsittely, rakennusten ulkopuolisten puuosien maalauksen loppuunsaattaminen.
2021 Pihan leikkipaikkojen kunnostus. Pihan muotoilu ja nurmetus.
2022 Väestönsuoja tarkastettu.
Kunnossapitotarveselvitys 2025-2028:
Lämmönsiirtimen ja lämmityksen toimivuuden tarkastus, huoltokorjauksia ja maalauksia, vesikaton kunnon tarkastus, sadevesikaivojen, rännikaivojen toimivuuden tarkastus ja huolto
Lämmönsiirtimen ja lämmityksen toimivuuden tarkastus, huoltokorjauksia ja maalauksia, vesikaton kunnon tarkastus, sadevesikaivojen, rännikaivojen toimivuuden tarkastus ja huolto
Retta Kuusamo, Janne Polo, 010 228 1200, janne.polo@retta.fi
Huoltoyhtiö
Koillismaan Kiinteistöhuolto Ay, Kiestingintie 10, 93600 Kuusamo
Koillismaan Kiinteistöhuolto Ay, Kiestingintie 10, 93600 Kuusamo
D2013
Voimassa 21.4.2025 asti
5 628 m²
Oma
Asemakaava
Muut lisätiedot
Autokatospaikka
Huoneistolle kuuluu autokatospaikka
Autopaikat: 2
Autopaikkamaksu: 5 € / kk
Autokatospaikka merkitty huoneiston numerolla, päätypaikka.
Huoneistolle kuuluu autokatospaikka
Autopaikat: 2
Autopaikkamaksu: 5 € / kk
Autokatospaikka merkitty huoneiston numerolla, päätypaikka.
Sisäpihalle, jossa terassi ja aidattu piha-alue.
Koulut: Torangin koulu 1 km.
Palvelut: Prisma ja Citymarket n. 600 m
Kaupungin keskustaan n. 1,50 km.
Palvelut: Prisma ja Citymarket n. 600 m
Kaupungin keskustaan n. 1,50 km.












