Rivitalo
Vuonna 1980 valmistunut rivitalon päätyhuoneisto, loistosijainnilla lähellä Nilon koulua. Rukakalusteen selkeälinjainen moderni keittiö, laadukkailla kodinkoneilla. Kodin sisustus- ja materiaalivalinnat ovat neutraaleja ja huoneiston värimaailma on vaalea.
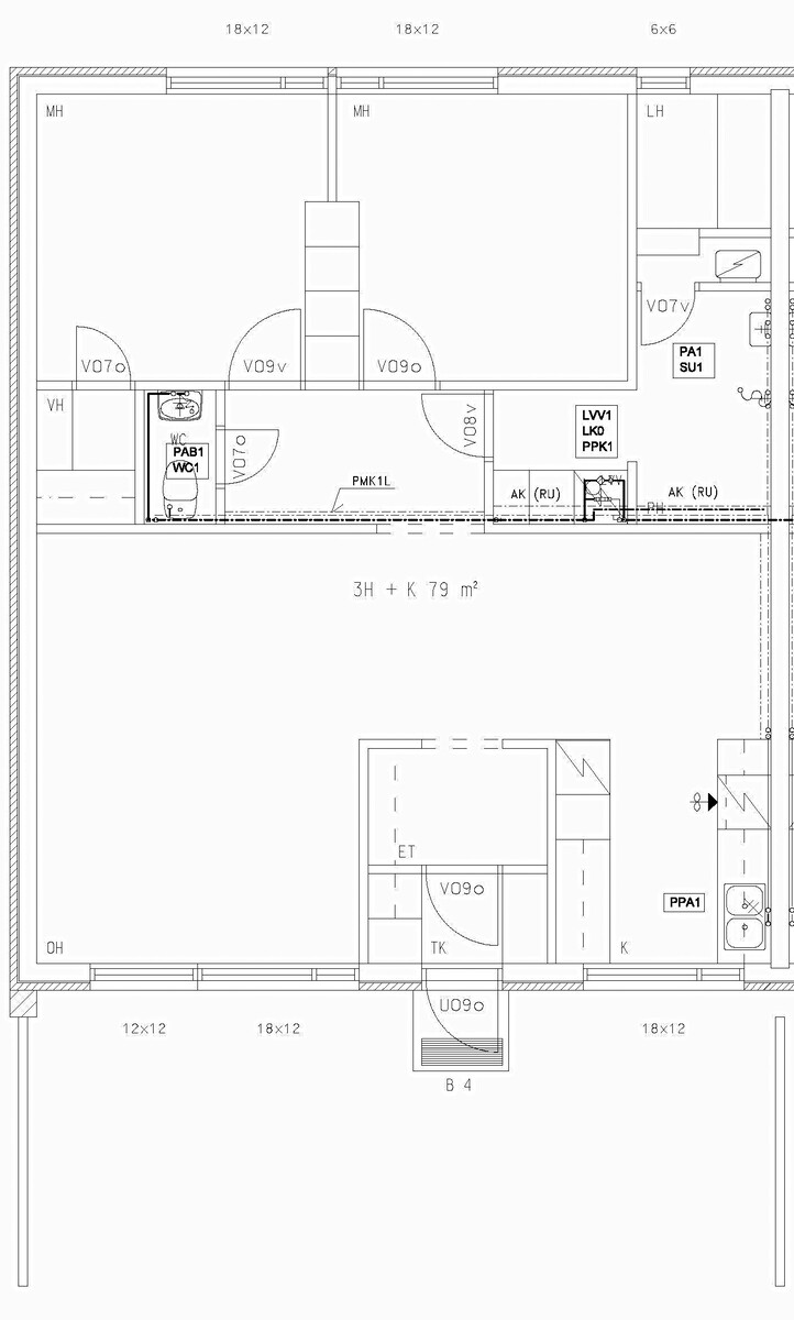
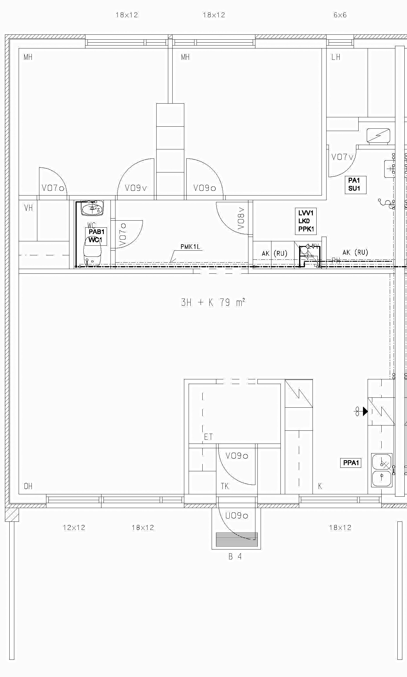
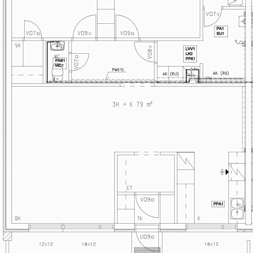
Huoneistossa todella hyvä ja selkeä pohjaratkaisu, tilavat makuuhuoneet ja reilunkokoinen keittiö-olohuoneyhteys.
Erillinen wc helpottaa kiireisen aamun sujumista. Makuuhuoneet ovat mukavan kokoisia ja toisessa niistä säilytys on ratkaistu vaatehuoneella.
Autotalli kuuluu hintaan, iso varasto on sisäänkäynnin yhteydessä sekä aurinkoinen terassi. Takapihalla on myös leikkimökki.
Nilonkoulu aivan vieressä palvelee päiväkotilapsia ja koululaisia. Alueella on hyvät harrastus – ja ulkoilumahdollisuudet.
Tervetuloa tutustumaan tähän viihtyisään kotiin!
Huoneisto myydään vuokrattuna, irtisanomisaika 6 kk.

Esittely
Perustiedot
Ruotukuja 3
93600 Kuusamo
Hinta ja kustannukset
Laskettu velattomasta myyntihinnasta.
Hoitovastike 221,20 € / kk
Rahoitusvastike 86,50 € / kk
Lisätiedot
Sähkökiuas
Jos osakas aikoo tehdä tai teettää huoneistoremontin, hänen tulee teettää asbestikartoitus purettaviin materiaaleihin. Uuden lain mukaan ennen vuotta 1994 rakennetutujen rakennusten purettavien materiaalien asbesti pitää kartoittaa ennen purkutyötä. Osakas maksaa karoituksen, ellei yhtiön kanssa muuta sovita.
Asunnon tilat ja materiaalit
Seinien pintamateriaali: maalattu
Lattian pintamateriaali: parketti
Keittiön tasot: laminaatti
Liesi: keraaminen
Lattian pintamateriaali: parketti
Lattian pintamateriaali: laminaatti
Makuuhuoneiden määrä: 2
Seinien pintamateriaali: kaakeli
Lattian pintamateriaali: laatta
Seinien pintamateriaali: kaakeli
Lattian pintamateriaali: laatta
WC-tilojen määrä: 1
Katon pintamateriaali: Huomakate, peltikate
Taloyhtiö
Puiden kaataminen C-talon päädystä 2024
Autotallien ovien huolto ja korjaus 2024
2 kpl Autonlämmitystolppien lisäys 2023
Palohälyttimet 10 vuoden akulla asentaminen kaikkiin huoneistoihin 2023
Käyttövesiputkistojen saneeraus 2022
Jätehuoltomääräysten mukaiset toimenpiteet 2021
Tiiliseinien halkeamien kartoitus 2020
A- ja B- talon lumiesteiden kiinnitysten korjausta 2020
Kattoluukkujen uusiminen ja lumiesteen kunnostus A-talossa 2019
Piha-aitojen kunnostaminen ja porttien uusiminen 2019
Pihapuiden kaatoa 2018-2019
Lumiesteiden vaihto ja sadevesikourujen puhdistus ja korjaus 2017
Käyttövesiputkiston kunnon selvitys 2017
Piha-alueen kokonaisvaltainen korjaustyö 2015
Pesuhuoneiden lattiakaivojen tarkistus sekä tiivistykset 2015
Huoneistojen vesikalusteiden tarkistus sekä huolto 2015
Huoneistojen välisten aitojen maalaus omana työnä 2014
Jätteiden syväkeräyssäiliöt hankittu 2013
Huoneistojen välisten aitojen ylälauta uusittu ja aidat korjattu 2013
Piha-alueen asfaltoinnin paikkausta 2011
Huoneistojen lämmityslaitteiden uusiminen 2011
Huoneistokohtaiset varastot uusittu huoneistot 84,B5,B6 2009
llmastointihormien puhdistus, tarkastus ja säätötyö tehty 2008
Leikkivälineitä hankittu 2007
Ulko-ovien ja terassin ovien uusiminen kaikkiin huoneistoihin 2007 2007
Antennijärjestelmän saneeraus digikuntoon 2005
Räystäskourut asennettu, tieto perustuu toimintakertomustietoihin 2003
Ullakon lisäeritys tehty, tieto perustuu toimintakertomustietoihin 1999
Lämminvesivaraajat uusittu, tieto perustuu toimintakertomustietoihin 1998
Vesikate uusittu, tieto perustuu toimintakertomustietoihin 1997
Sokkelin tarkistus ja korjaus 2025
Katon kuntotutkimus 2025
IV-kanavien nuohous-ja säätö 2029
Konelumityöt Kuusamon KTK
Muut lisätiedot
Autopistokepaikat: 9
Autotallit: 8













