Mökki tai huvila
Ronkaisenniementie 31C, Kuusamo, Ronkaisenniemi
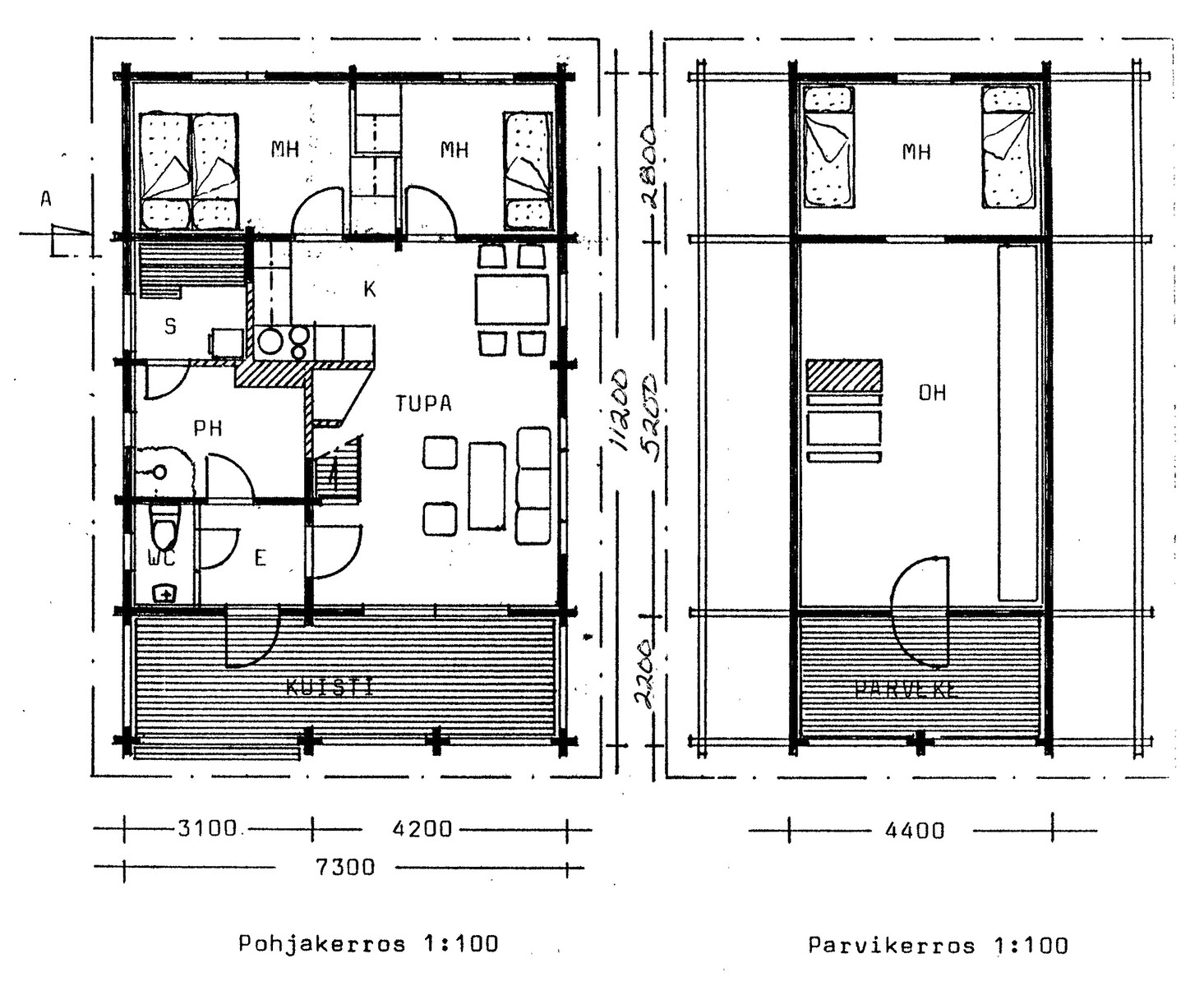
2 mh, tupak, ph,s ja parvi, 82 m²
85 000 €
Lähellä Kuusamon palveluja Ronkaisenniemellä, viihtyisä, ympärivuotiseen käyttöön soveltuva lomanviettopaikka omalla Kuusamojärveen rajoittuvalla tontilla.
Mökissä kaksi makuuhuonetta, avara tupakeittiö, pesuhuone, sauna sekä parvi, joka tarjoaa lisätilaa majoittumiseen. Pihapiirissä lisäksi autotalli/varastorakennus n. 20 kem².
Hyvä tukikohta esim. kalastajalle ja kelkkailijalle!
Ota yhteyttä ja varaa oma esittelyaikasi.

Esittely
Kohteen seuraavaa esittelyajankohtaa ei ole tiedossa
Perustiedot
1415896
21983732
Kuusamo, Ronkaisenniemi
Ronkaisenniementie 31 C
93700 Kuusamo
Ronkaisenniementie 31 C
93700 Kuusamo
Mökki tai huvila
Ei
Omistusasunto
2mh, tupak, ph,s ja parvi
82 m²
82 m²
Alakerran pinta-ala n. 66 k-m² ja yläkerran pinta-ala (korkeus > 1600 mm) n.16 m².
1/1
1997
1997
Sopimuksen mukaan
Hinta ja kustannukset
85 000 €
85 000 €
1 036,59 € / m²
Laskettu velattomasta myyntihinnasta.
Laskettu velattomasta myyntihinnasta.
0,30 € / v
Lisätiedot
Asunnossa on sauna
Heti valmis -sähkökiuas
Heti valmis -sähkökiuas
Hyvä
Huippuimuri uusittu 2024.
Alakerran lattia uusittu 2024, samalla tarkistettu alapohjan eristeet.
Terassin laudoitus uusittu 2024.
Kattojen huoltopesu 2025.
Alakerran lattia uusittu 2024, samalla tarkistettu alapohjan eristeet.
Terassin laudoitus uusittu 2024.
Kattojen huoltopesu 2025.
Kohteelle ei lain mukaan tarvita energiatodistusta.
Sähkö, ilmalämpöpumppu, muu, Takka
Lämmönjakotapa: sähköpatterilämmitys, uuni/takka, muu, lattialämmitys pesuhuone/sauna sekä eteinen ja wc
Lämmönjakotapa: sähköpatterilämmitys, uuni/takka, muu, lattialämmitys pesuhuone/sauna sekä eteinen ja wc
Vesiosuuskunta
Saostuskaivo, imeytyskenttä
Koneellinen poisto
Antenni
Asunnon tilat ja materiaalit
Pääasiallinen rakennusmateriaali: Hirsi
Varusteet: liesituuletin, mikroaaltouuni, astianpesukone
Seinien pintamateriaali: puu, osalaatoitus
Lattian pintamateriaali: laatta
Keittiön tasot: laminaatti
Liesi: keraaminen
Seinien pintamateriaali: puu, osalaatoitus
Lattian pintamateriaali: laatta
Keittiön tasot: laminaatti
Liesi: keraaminen
Seinien pintamateriaali: puu
Lattian pintamateriaali: lauta
Lattian pintamateriaali: lauta
Seinien pintamateriaali: puu
Lattian pintamateriaali: lauta
Makuuhuoneiden määrä: 2
Lattian pintamateriaali: lauta
Makuuhuoneiden määrä: 2
Varusteet: pesukone, lattialämmitys, wc-istuin, suihku, kylpyhuonekaapisto
Seinien pintamateriaali: kaakeli
Lattian pintamateriaali: laatta
Seinien pintamateriaali: kaakeli
Lattian pintamateriaali: laatta
Varusteet: peilikaappi, bidee-suihku
Seinien pintamateriaali: puu
Lattian pintamateriaali: laatta
WC-tilojen määrä: 1
Seinien pintamateriaali: puu
Lattian pintamateriaali: laatta
WC-tilojen määrä: 1
Parvi
Varusteet: sälekaihtimet/rullaverhot, kiinteät valaisimet, lämminvesivaraaja, ilmalämpöpumppu
Varusteet: sälekaihtimet/rullaverhot, kiinteät valaisimet, lämminvesivaraaja, ilmalämpöpumppu
Katto: Harja
Katon pintamateriaali: Huopa
Katon pintamateriaali: Huopa
Asunnon tontti
305-411-54-11
2 040 m²
Oma
Ranta
Järvi
Yleiskaava
Lisärakentaminen poikkeamisella Kuusamon kaupungin rakennusvalvonta.
Lisärakentaminen poikkeamisella Kuusamon kaupungin rakennusvalvonta.
Kyllä
Muut lisätiedot
Kuusamon Energia- ja vesiosuuskunnan liittymät






















